.
Eladó Ház 4034 Debrecen
132 000 000 Ft
4034 Debrecen
5 szoba
132 m²
450 m² telek
Törlesztőrészlet Ft/hó
THM %
1 megtekintés az elmúlt 7 napban
Leírás
Debrecen Szabadságtelepének csendes, kertvárosi részén, a Vámospércsi útból nyíló, aszfaltozott utcában eladó egy háromszintes ikerház,
amely ideális választás azoknak a családoknak, akik nyugodt környezetben, mégis jó infrastruktúrával szeretnének élni.
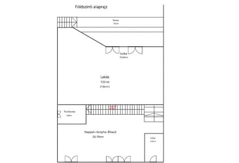
Az ingatlan 450 m²-es telken helyezkedik el, nettó 132 m² lakótérrel, valamint egy 71 m²-es, jól kihasználható pinceszinttel.
A házba belépve egy világos, tágas nappali–konyha–étkező tér fogad, amely a családi élet központja lehet.
Innen nyílik egy 10 m²-es fedett terasz, ahol a reggeli kávé vagy az esti beszélgetések igazán kellemesek.
A konyha minőségi beépített bútorokkal és gépekkel, gránit munkapulttal készült, az étkezőnél bőven van hely a közös étkezésekhez.

A földszinten található:
-Épített zuhanyzós fürdőszoba WC-vel
-Ajtóval leválasztott, praktikus előszoba beépített tárolókkal
-Padlófűtés, amely kellemes meleget biztosít a hidegebb napokon

Felújítások – amik a mindennapokat teszik kényelmesebbé:
-Korszerűsített fűtésrendszer, padlófűtéssel a földszinten és radiátoros fűtéssel a tetőtérben
-Fürdőszobák és földszint minőségi burkolatainak cseréje
-Laminált burkolatok cseréje a szobákban

A tetőtérben található:
-Három külön nyíló, világos hálószoba , ahol minden családtagnak jut saját tér
-A két szobából nyíló loggia csendes pihenést kínál
-Sarokkádas fürdőszoba és külön WC pedig segíti a reggeli készülődést

Sokoldalúan használható pinceszint:
-Kétállásos garázs
-Kazánház és kamra
-Külön WC és zuhanyzó
-Tökéletes tárolásra, hobbira vagy akár kisebb műhelynek is.

Gondozott kert, biztonságos környezet:
A füvesített, körbekerített kert automata öntözőrendszerrel ellátott, így könnyen karbantartható.
Az automata kaputechnika és a térkövezett kerítés előtti parkoló a mindennapi kényelmet szolgálja.

Elhelyezkedés, amit a család is szeretni fog:
-Iskola, óvoda a közelben
-Gyógyszertár, üzletek könnyen elérhetők
-Lidl, Aldi, Penny néhány percre
-Csendes, folyamatosan fejlődő városrész

Ez az ingatlan felújított, jól élhető családi otthon, ahol a tágas terek, a kert és a nyugodt környezet valódi életminőséget ad.

Ha olyan otthont keres, ahová jó hazatérni, hívjon bizalommal, és tekintse meg személyesen!

Az alaprajz tájékoztató jellegű.
Az ingatlan "Felező díjcsomagban" lett megkötve, kérem az Otthon Centrum oldalán tájékozódjon a részletekről!
Mutass többet
Általános adatok
Építés éve:
1989
Belső szintek száma:
Nincs megadva
Épület külső állapota:
4 - Jó
Épület belső állapota:
4 - Jó
Fényviszonyok:
Nincs megadva
Nézet:
Utca
Fűtés:
Gáz cirkó
Szerkezet:
Nincs megadva
Energetikai besorolás:
Nincs megadva
Víz:
Telken belül
Gáz:
Telken belül
Villany:
Telken belül
Csatorna:
Telken belül
Lakáshitel kalkulátor – Spórolj velünk!
Kalkulálj most, és keresd pénzügyi szakértőinket, akik ingyenes tanácsadással segítenek megtalálni a számodra legjobb megoldást!

Hasonló ingatlanok

4031 Debrecen Hatvani kertben családi ház eladó

HZ035001 | 6 szoba | 170 m²
108 900 000 Ft

4002 Debrecen

HZ035849 | 1 szoba | 36 m²
26 000 000 Ft

4002 Debrecen Pallag

PR084673/HZ/11446 | 5 szoba | 212 m²
201 600 000 Ft

4002 Debrecen Pallag

PR084673/HZ/11449 | 3 szoba | 212 m²
185 500 000 Ft

4002 Debrecen Debrecen

HZ069308 | 4 szoba | 100 m²
85 000 000 Ft

4002 Debrecen Pallag

PR084673/HZ/15745 | 4 szoba | 161 m²
160 125 000 Ft

4002 Debrecen Pallag

PR084673/HZ/15746 | 4 szoba | 160 m²
158 000 000 Ft

4030 Debrecen

HZ057031 | 4 szoba | 150 m²
73 000 000 Ft

4033 Debrecen Acsádi út közelében családi ház eladó

HZ089208 | 6 szoba | 240 m²
139 000 000 Ft

4002 Debrecen

HZ015174 | 4 szoba | 140 m²
150 000 000 Ft

4024 Debrecen Debrecen Fórum közelében

HZ046585 | 4 szoba | 96 m²
75 000 000 Ft

4225 Debrecen Józsa

PR099487/HZ/19414 | 5 szoba | 170 m²
139 900 000 Ft

4225 Debrecen Józsa

PR099487/HZ/19415 | 5 szoba | 180 m²
166 950 000 Ft

4225 Debrecen Józsa

PR099487/HZ/19417 | 5 szoba | 170 m²
139 900 000 Ft

4028 Debrecen Hüse vendéglő közelében

HZ075166 | 4 szoba | 69 m²
79 990 000 Ft

4032 Debrecen

HZ035399 | 7 szoba | 210 m²
220 000 000 Ft

4002 Debrecen Pallagon újépítésű modern iker családiházak

PR059154/HZ/21139 | 4 szoba | 142 m²
159 000 000 Ft

4002 Debrecen Pallagon újépítésű modern iker családiházak

PR059154/HZ/21140 | 5 szoba | 154 m²
159 000 000 Ft

4032 Debrecen Nyulasi prime minőségű családiházak

PR076832/HZ/21144 | 6 szoba | 163 m²
210 000 000 Ft

4032 Debrecen Nyulasi prime minőségű családiházak

PR076832/HZ/21145 | 6 szoba | 163 m²
210 000 000 Ft
Baraté Róbert
Arany fokozatú értékesítő
Kapcsolatfelvétel
Hívom
Kapcsolatfelvétel
Kérjen egy személyes megtekintést az ingatlanra a Duna House értékesítőjétől
Válassz egy időpontot