.
Eladó Lakás 1024 Budapest 2. kerület , Mammut mellett bruttó 409nm-es tetőtér
LK051953
Eladó
Társasház
Áresés
115 000 000 Ft
1024 Budapest 2. kerület , Mammut mellett bruttó 409nm-es tetőtér
1 szoba
409 m²
Tégla
Törlesztőrészlet Ft/hó
THM %
14 megtekintés az elmúlt 7 napban
Leírás
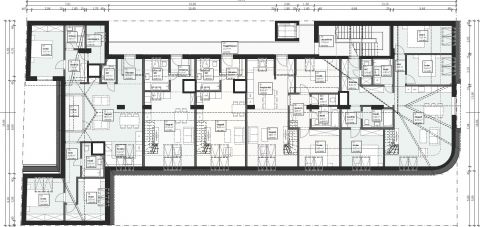
KONCEPCIÓ TERVVEL RENDELKEZŐ TETŐTÉR!

A magasabb tető adta lehetőségeket maximálisan kihasználva minden lakásban nagyvonalú nappalik, galériák és teraszok kerülnek kialakításra, amelyek világos, modern és különleges életteret biztosítanak a jövőbeli tulajdonosok számára.

A koncepció kialakítása során arra törekedtek, hogy a meglévő szerkezet és a helyi építési szabályzat adta kereteken belül minél több, változatos méretű lakás jöjjön létre.

Ennek eredményeként összesen 5 lakást terveznek: két kisebb, kétszobás és három tágas, négyszobás otthont. 

1-es lakás: 94.48nm

2-es lakás: 48.24nm

3-as lakás: 39.74nm

4-es lakás: 50.78nm

5-ös lakás: 100.23nm

2 ker. Mammut mellett, eladó egy bruttó 409nm-es tetőtér, mely befektetők számára sok lehetőséget tartogat magában, akár nagyméretű luxus lakásokban gondolkodik, akár kisebb 40-60nm-es lakások kialakításásban.
A jelenlegi tulajdonos magánszemély, 1/1-es tulajdonoban , tehermentes.

Jelenleg a házban nincs lift, így ezt a jövőbeni tulajdonosnak kell kiépítenie.
 Koncepció terv rendelkezésre áll, jogerős építési engedély nincs! Friss statikai szakvélemény rendelkezésre áll!
Mutass többet
Általános adatok
Ingatlan állapota:
2 - Felújítandó
Építés éve:
1910
Emelet:
Tetőtér
Emeletek száma:
3
Lift:
Nincs Lift
Épület külső állapota:
5 - Nagyon jó
Épület belső állapota:
4 - Jó
Fényviszonyok:
Napfényes
Parkolás:
Nincs
Erkély/Terasz:
Nincs
Nézet:
Utca
Tájolás:
DNY
Fűtés:
Nincs,Nincs,Nincs
Energetikai besorolás:
Nincs megadva
Lakáshitel kalkulátor – Spórolj velünk!
Kalkulálj most, és keresd pénzügyi szakértőinket, akik ingyenes tanácsadással segítenek megtalálni a számodra legjobb megoldást!

Hasonló ingatlanok

1025 Budapest 2. kerület

LK022664 | 2 szoba | 64 m²
187 000 000 Ft

1028 Budapest 2. kerület Vízmosás/Patakhegyi u.

LK062628 | 4 szoba | 158 m²
198 000 000 Ft

1026 Budapest 2. kerület Elegáns, letisztult design lakás Pasaréten!

LK080150 | 2 szoba | 54 m²
126 000 000 Ft

1021 Budapest 2. kerület

LK087746 | 6 szoba | 115 m²
199 990 000 Ft

1027 Budapest 2. kerület Erkélyes, luxus design lakás Buda szívében!

LK032007 | 2 szoba | 83 m²
164 000 000 Ft

1021 Budapest 2. kerület XII. KERÜLET FREKVENTÁLT RÉSZÉN FÖLDSZINTI LAKÁS

LK014481 | 4 szoba | 108 m²
162 000 000 Ft

1021 Budapest 2. kerület XII. KERÜLET KEDVELT RÉSZÉN LAKÓPARKI FÖLDSZINTI INGATLAN

LK063932 | 4 szoba | 127 m²
185 000 000 Ft

1026 Budapest 2. kerület A Torockó tér közelében

LK093311 | 3 szoba | 76 m²
212 000 000 Ft

1026 Budapest 2. kerület Rózsakert közelében

LK059543 | 3 szoba | 72 m²
160 000 000 Ft

1028 Budapest 2. kerület

LK019835 | 4 szoba | 124 m²
194 900 000 Ft

1027 Budapest 2. kerület

LK062824 | 1 szoba | 34 m²
90 000 000 Ft

1025 Budapest 2. kerület Szemlőhegy

LK052153 | 1 szoba | 35 m²
95 000 000 Ft

1026 Budapest 2. kerület Törökvészen design lakás teljes berendezéssel, autóbeállóval

LK075568 | 2 szoba | 57 m²
139 000 000 Ft

1029 Budapest 2. kerület ADYLIGET PANORÁMÁS UTCÁJÁBAN

LK071996 | 4 szoba | 116 m²
158 000 000 Ft

1025 Budapest 2. kerület Felújítandó,2 szobás,erkélyes lakás a Zöldlomb utcában!

LK096256 | 2 szoba | 60 m²
106 900 000 Ft

1023 Budapest 2. kerület

LK060442 | 4 szoba | 77 m²
184 900 000 Ft

1021 Budapest 2. kerület

LK074957 | 2 szoba | 58 m²
99 000 000 Ft

1023 Budapest 2. kerület

LK038446 | 1 szoba | 28 m²
39 000 000 Ft

1025 Budapest 2. kerület Kiváló lokáció-Sétatávolságra a Kolosy tér-Teraszos-Autóbeá

LK098496 | 1 szoba | 43 m²
77 900 000 Ft

1024 Budapest 2. kerület

LK082019 | 174 m²
220 000 000 Ft
Moldván Erika
Örökös tag értékesítő
Kapcsolatfelvétel
Hívom
Kapcsolatfelvétel
Kérjen egy személyes megtekintést az ingatlanra a Duna House értékesítőjétől
Válassz egy időpontot