.
Eladó Ház 8315 Gyenesdiás , Balatonhoz közeli ház
HZ090624
Eladó
Családi ház
285 000 000 Ft
8315 Gyenesdiás , Balatonhoz közeli ház
4 szoba
229 m²
862 m² telek
Törlesztőrészlet Ft/hó
THM %
3 megtekintés az elmúlt 7 napban
Leírás
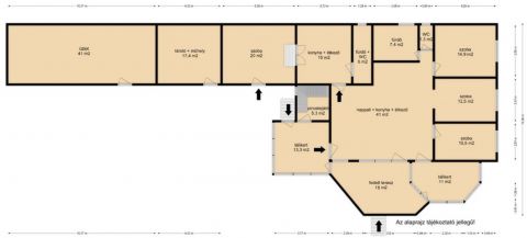
Gyenesdiáson eladó egy elbűvölő családi ház, csendes zsákutcában!

A 862 nm-es telken elhelyezkedő kétszintes ingatlan lakótere összesen 229 nm.

Alsó szintjén tágas nappali-étkező-konyha rész található (melyből egy 32 nm-es terasz és a kert is könnyen megközelíthető) a gardrób, háztartási helyiség, előszoba, vendég toalett és kétállásos garázs mellett. Ugyancsak ezen a szinten egy nagy hálószoba is helyet kapott a maga intim kis fürdőszobájával.
Emeleti részén 2 szoba, dolgozó sarok és fürdőszoba került kialakításra.

A ház belső enteriőrje egy, a már Lakáskultúra magazinból is ismert lakberendező munkáját dicséri. A burkolóanyagok rendkívül magas színvonalú, jó kopásállóságú, olasz alapanyagokból készültek. A hangulatos kandalló mellett a meleget radiátorok biztosítják gáz cirkó rendszeren keresztül. Gondolva a nyári melegre a házba hűtő-fűtő klíma is beszerelésre kerül. A 2017-ben megépített ingatlant napelemmel is ellátták.

A beépített bútorok a vételár, míg a többi, tárgyalás részét képezik. Az épített kertben fúrt kút és öntözőrendszer is kialakításra került, míg a felfrissülést egy nagy méretű jakuzzi biztosítja.

A ház rendkívül jó fekvésének köszönhetően minden megtalálható a közelében, strand, éttermek, boltok!
Ha szeretné megtekinteni ezt a nem mindennapi ingatlant, kérem keressen!

Mutass többet
Általános adatok
Építés éve:
2017
Belső szintek száma:
2
Épület külső állapota:
5 - Nagyon jó
Épület belső állapota:
5 - Nagyon jó
Fényviszonyok:
Napfényes
Nézet:
Kert/belső kert
Fűtés:
Gáz cirkó,Napelem,Klíma,Kandalló
Szerkezet:
Tégla
Energetikai besorolás:
Nincs megadva
Víz:
Ingatlanban
Gáz:
Ingatlanban
Villany:
Ingatlanban
Csatorna:
Ingatlanban
Lakáshitel kalkulátor – Spórolj velünk!
Kalkulálj most, és keresd pénzügyi szakértőinket, akik ingyenes tanácsadással segítenek megtalálni a számodra legjobb megoldást!

Hasonló ingatlanok

8315 Gyenesdiás Felső-gyenes

HZ085080 | 5 szoba | 210 m²
299 000 000 Ft

8315 Gyenesdiás Balaton közeli apartmanház

HZ074009 | 10 szoba | 230 m²
199 000 000 Ft

8315 Gyenesdiás Gyenesdiás központi részén

HZ088268 | 4 szoba | 180 m²
210 000 000 Ft

8315 Gyenesdiás Felső Gyenes központhoz közeli

HZ068971 | 4 szoba | 180 m²
230 000 000 Ft

8315 Gyenesdiás Nádas csárda közelében

HZ064133 | 5 szoba | 300 m²
128 000 000 Ft

8315 Gyenesdiás

IH021507 | 167 m²
87 538 000 Ft

8315 Gyenesdiás Felső Gyenes, központtól 3 percnyire

HZ018526 | 4 szoba | 178 m²
215 000 000 Ft

8315 Gyenesdiás Alsógyenes, Balatontól 800 m-re

HZ031286 | 1 szoba | 280 m²
260 000 000 Ft

8315 Gyenesdiás Alsógyenes, Balatontól 800 m-re

VL012847 | 1 szoba | 280 m²
290 000 000 Ft

8315 Gyenesdiás Gyenesdiás kiváló, panorámás lokációjában.

HZ099934 | 6 szoba | 200 m²
133 000 000 Ft

8315 Gyenesdiás Felsőgyenes

HZ049756 | 8 szoba | 240 m²
159 900 000 Ft

8315 Gyenesdiás

HZ071835 | 5 szoba | 174 m²
145 000 000 Ft

8315 Gyenesdiás Csendes utcában

HZ012162 | 7 szoba | 198 m²
140 000 000 Ft

8315 Gyenesdiás Felső-Gyenes

HZ063254 | 4 szoba | 227 m²
276 089 700 Ft

8315 Gyenesdiás madárcsicsergős

HZ060079 | 6 szoba | 228 m²
160 052 000 Ft

8315 Gyenesdiás Alsógyenes

HZ048428 | 4 szoba | 141 m²
114 590 600 Ft

8315 Gyenesdiás Központhoz közeli, Főút alatti rész

HZ076082 | 5 szoba | 232 m²
379 000 000 Ft

8315 Gyenesdiás

H505797 | 5 szoba | 221 m²
139 000 000 Ft

8315 Gyenesdiás

U0047961 | 5 szoba | 280 m²
550 000 000 Ft
Mácsainé Tischner Henriett
Briliáns fokozatú értékesítő
Kapcsolatfelvétel
Hívom
Kapcsolatfelvétel
Kérjen egy személyes megtekintést az ingatlanra a Duna House értékesítőjétől
Válassz egy időpontot