.
Eladó Lakás 1122 Budapest 12. kerület
H512634
Eladó
Lakás
Prémium
248 000 000 Ft
1122 Budapest 12. kerület
3 szoba
102 m²
Tégla
Törlesztőrészlet Ft/hó
THM %
11 megtekintés az elmúlt 7 napban
Leírás
Fényben élő terek, zöldre nyíló reggelek és egy otthon, amely egyszerre ad lendületet és nyugalmat. Üdv itthon!

RÖVID ÖSSZEFOGLALÓ
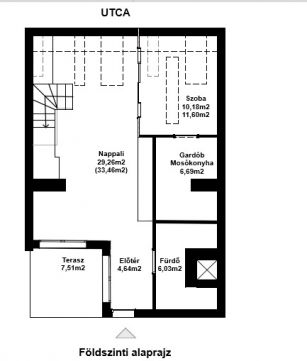
Budapesten, a XII. kerületben, a Városmajor mellett, az Ignotus utcában, egy felújított, liftes, klasszikus társasház felső szintjén található, 2018-ban ráépítéssel kialakított, 102 m²-es + 7 m² teraszos, kétszintes (duplex) lakás, praktikus pinceszinti tárolóval.

LOKÁCIÓ
A lakás Budapest XII. kerületében, a Városmajor közvetlen környezetében, az Ignotus utcában helyezkedik el – ott, ahol a városi infrastruktúra és a zöldfelületek ritka egyensúlyban vannak. A Városmajor Park néhány lépésre található, így a mindennapok üdítő része lehet a park közelsége, miközben a Széll Kálmán tér mindössze pár perc sétával elérhető.
A környék kiváló közlekedési kapcsolatokkal rendelkezik (M2 metró, villamos- és buszhálózat), a Mammut Bevásárlóközpont szolgáltatásai pedig szintén gyalogos távolságon belül vannak. A Budai Várnegyed közelsége tovább erősíti a lokáció hosszú távú értékállóságát és élhetőségét.

LAKÁS
Kétszintes (duplex) kialakításával, tágas és szellős lakótereivel, valamint teraszával ez az otthon 2018-ban, ráépítéssel készült, tudatos tervezéssel, világos struktúrával és jól működő térarányokkal. A nagy belmagasság és a nagyméretű nyílászárók természetes fényt engednek be egész nap, ami érzetben lendületet és átláthatóságot ad a lakás minden pontján – különösen az alsó szint nyitott nappali–étkező–konyha terében.

Az alsó szinten egy olyan élettér alakul ki, ahol könnyű mozogni, együtt lenni és döntéseket hozni. Logikusan kapcsolódik egymáshoz a modern, teljesen gépesített konyha, az étkező és a nappali, így a tér egyszerre hatékony és befogadó. Meleg hangulati fókuszpontként jelenik meg a fatüzelésű kandalló, amely karaktert ad a térnek, miközben a nappali továbbra is jól használható marad vendégfogadáshoz vagy egy csendesebb estére.

Üvegfallal leválasztott szoba szolgál vendégszobaként vagy dolgozótérként – elkülöníthető, mégis vizuálisan kapcsolódó megoldásként, amely rugalmasan alkalmazkodik az aktuális élethelyzethez. Ezen a szinten található a zuhanyzós fürdőszoba padlófűtéssel és bidével, valamint egy külön háztartási/tároló helyiség, amely rendet, kontrollt és kényelmet visz a mindennapokba.

Felül már egyértelműen a visszavonulás és a fókusz kap szerepet. A galériás dolgozótér után érkezünk a hálószobába, ahonnan panorámás kilátás nyílik a Városmajor zöldjére és a Budai-hegyekre – egyszerre inspiráló és megnyugtató perspektívát adva. A walk-in gardrób és a második, ablakos, zuhanyzós fürdőszoba tisztán elkülöníti a privát zónát, miközben a tér érzetében továbbra is nyitott marad.

Végig tölgyfa parketta ad természetes, időtálló alapot a belső tereknek, harmonikus összhangban a fürdőszobák letisztult, modern burkolataival.
A mindennapi komfortot gázos padlófűtés, szintenként 2-2 klímaberendezés, elektromos redőnyök és tetőtéri ablakok biztosítják – minden ott van, ami szükséges, felesleges túlzás nélkül.

Pinceszinti tároló, riasztórendszer és ajtónyitós kaputelefon gondoskodnak a biztonságról és a kiszámíthatóságról, miközben az otthon egységes rendszerként, magabiztosan működik.

FONTOS!
- A lakás hangulata, téraránya és valódi miliője videón keresztül érzékelhető igazán.
Érdemes megtekinteni a bemutatóvideót, mert sokkal pontosabban adja vissza a terek arányait, a fények játékát és azt az atmoszférát, amely élőben is meghatározza ezt az otthont.
- A vételár tartalma:
A vételár kizárólag a beépített bútorokat és beépített gépeket tartalmazza.
Az ingatlanban található egyéb berendezési és használati tárgyak – beleértve a nem beépített gépeket, lámpákat, bútorokat és dekorációs elemeket – külön megállapodás alapján megvásárolhatók.

Ha olyan otthont keres, amely élhető, átgondolt és hosszú távon is értékálló, érdemes ezt a lakást személyesen is megnézni – időpont-egyeztetésért keressen bizalommal.



------------------------------------------------------------
Díjmentes, bankfüggetlen hiteltanácsadással támogatjuk vevő ügyfeleinket a számukra legelőnyösebb finanszírozási döntések meghozatalában. Opcionálisan igénybe vehető kiegészítő szolgáltatásainkkal – mint ügyvédi közreműködés, energetikai tanúsítvány vagy villamos biztonsági felülvizsgálat – teljes körű szakmai támogatást nyújtunk az adásvétel folyamatának minden egyes lépésénél.
------------------------------------------------------------
A hirdetésben szereplő információk tájékoztató jellegűek. A tévedés és az árváltoztatás jogát fenntartjuk. Az esetleges elírásokért és technikai hibákért felelősséget nem vállalunk.
Mutass többet
Általános adatok
Ingatlan állapota:
5 - Nagyon jó
Építés éve:
2017
Emelet:
3
Emeletek száma:
2
Lift:
Hívó
Épület külső állapota:
5 - Nagyon jó
Épület belső állapota:
5 - Nagyon jó
Fényviszonyok:
Nincs megadva
Parkolás:
Nincs
Erkély/Terasz:
Van
Nézet:
Utca
Tájolás:
DK
Fűtés:
Gáz cirkó
Energetikai besorolás:
BB
Lakáshitel kalkulátor – Spórolj velünk!
Kalkulálj most, és keresd pénzügyi szakértőinket, akik ingyenes tanácsadással segítenek megtalálni a számodra legjobb megoldást!

Hasonló ingatlanok

1125 Budapest 12. kerület LUXUS OKOS OTTHONOK ZÖLD KÖRNYEZETBEN

PR071981/F/3 | 3 szoba | 105 m²
338 814 500 Ft

1125 Budapest 12. kerület LUXUS OKOS OTTHONOK ZÖLD KÖRNYEZETBEN

PR071981/F/4 | 3 szoba | 103 m²
340 576 000 Ft

1125 Budapest 12. kerület János kórház felett - F1

LK063950 | 4 szoba | 140 m²
383 914 000 Ft

1125 Budapest 12. kerület János kórház felett F_2

LK014273 | 5 szoba | 122 m²
359 923 000 Ft

1121 Budapest 12. kerület

LK066333 | 3 szoba | 99 m²
277 000 000 Ft

1121 Budapest 12. kerület

LK035825 | 3 szoba | 72 m²
203 000 000 Ft

1125 Budapest 12. kerület Buszmegállótól 200 m-re, parkosított környezetben

LK047086 | 2 szoba | 53 m²
93 000 000 Ft

1122 Budapest 12. kerület Kissvábhegyen teraszos, panorámás design lakás teljes berendezéssel

LK062569 | 3 szoba | 60 m²
138 000 000 Ft

1123 Budapest 12. kerület

UZ071194 | 64 m²
89 900 000 Ft

1121 Budapest 12. kerület

LK099425 | 2 szoba | 50 m²
96 000 000 Ft

1121 Budapest 12. kerület

HZ074952 | 14 szoba | 303 m²
395 000 000 Ft

1125 Budapest 12. kerület XII. KERÜLET CSENDES RÉSZÉN NÉGY HÁLÓSZOBÁS KERTKAPCSOLATOS LUXUS LAKÁS

LK048948 | 5 szoba | 240 m²
410 000 000 Ft

1121 Budapest 12. kerület

P4475-1-0G-FZ-002 | 3 szoba | 80 m²
232 127 000 Ft

1122 Budapest 12. kerület

LK098250 | 2 szoba | 57 m²
134 900 000 Ft

1121 Budapest 12. kerület Magas minőségű ingatlan, csendes, gyönyörű zöld környezetben

LK019133 | 4 szoba | 173 m²
299 000 000 Ft

1122 Budapest 12. kerület

LK081421 | 4 szoba | 66 m²
165 000 000 Ft

1121 Budapest 12. kerület Irhásárok

LK027366 | 3 szoba | 128 m²
236 405 500 Ft

1121 Budapest 12. kerület Irhásárok

LK051938 | 4 szoba | 170 m²
294 538 000 Ft

1121 Budapest 12. kerület Irhásárok

LK039515 | 4 szoba | 166 m²
318 566 100 Ft

1125 Budapest 12. kerület LUXUS OKOS OTTHONOK ZÖLD KÖRNYEZETBEN

PR071981/F/1 | 4 szoba | 172 m²
636 646 000 Ft
Laki Sarah Maria
Értékesítő
Kapcsolatfelvétel
Hívom
Kapcsolatfelvétel
Kérjen egy személyes megtekintést az ingatlanra a Duna House értékesítőjétől
Válassz egy időpontot