.
Eladó Ház 4002 Debrecen , Pallagon újépítésű modern iker családiházak
PR059154/HZ/25829
Eladó
Családi ház
Újépítésű
169 000 000 Ft
4002 Debrecen , Pallagon újépítésű modern iker családiházak
5 szoba
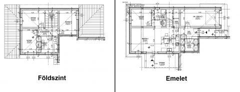
152 m²
570 m² telek
Törlesztőrészlet Ft/hó
THM %
1 megtekintés az elmúlt 7 napban
Leírás
Eladó újépítésű, modern minimalista családi házak a gyönyörű Pallagon. Ezek a napfényes lakások egy remek befektetési lehetőséget kínálnak kiváló elosztásukkal, terasszal és saját kertrészekkel. A lakások közel helyezkednek el a Nemzetközi Iskolához, ami ideálissá teszi őket családok számára.

Minden lakás magas minőségű anyagokkal, modern technológiával és energiatakarékos megoldásokkal rendelkezik, amelyek hosszú távú komfortot és alacsony fenntartási költségeket ígérnek az új tulajdonosok számára. A tervezők mindent megtettek annak érdekében, hogy ezek a lakások tökéletes otthonokká váljanak, ahol az élet minden pillanata élvezhető.
A házak tervezése során nagy hangsúlyt fektettek a modern, minimalista stílusra és a praktikus elrendezésre. A tágas, napfényes terek optimálisan kihasználják a természetes fényt, teremtve ezzel egy meleg légkört az otthonában. A saját kertkapcsolat biztosítja, hogy mindenki megtalálja a maga kis nyugalmi szigetét a város közelében, mégis távol annak nyüzsgésétől.

Néhány műszaki jellemző:
- Viablokk falazóelem a  teherhordó szerkezet
-  lakáson belül is Viablokk falazóelem válaszfalak
- fűtése, hűtése, hőszivattyús rendszerrel
- H tarifás elszámolással
- padlófűtés
- mennyezethűtés
- helységenkénti szabályozhatósággal
- rejtett redőnytokban aluredőnyök
- német típusú 7 légkamrás 3 rétegű ablakok
- hidegburkolatok 10.000. ft/ nm 
- melegburkolatok 8.000 ft/nm
- terasz és garázs burkolata 7.000 ft/nm 
- szaniterek 1. 000 000 ft értékben a vételár tartalmazza
-- kamerarendszer,
- riasztórendszer,
-  kaputelefon,
-  kerítés, parkosítás

További kérdéseivel kapcsolatban várom hívását, érdeklődését.


Mutass többet
Általános adatok
Építés éve:
2025
Belső szintek száma:
Nincs megadva
Épület külső állapota:
6 - Új. ép.
Épület belső állapota:
6 - Új. ép.
Fényviszonyok:
Nincs megadva
Nézet:
Nincs megadva
Fűtés:
Padlófűtés,Hőszivattyú
Szerkezet:
Tégla
Energetikai besorolás:
Nincs megadva
Víz:
Nincs megadva
Gáz:
Nincs megadva
Villany:
Nincs megadva
Csatorna:
Nincs megadva
Lakáshitel kalkulátor – Spórolj velünk!
Kalkulálj most, és keresd pénzügyi szakértőinket, akik ingyenes tanácsadással segítenek megtalálni a számodra legjobb megoldást!

Hasonló ingatlanok

4031 Debrecen Hatvani kertben családi ház eladó

HZ035001 | 6 szoba | 170 m²
112 900 000 Ft

4002 Debrecen

HZ035849 | 1 szoba | 36 m²
26 000 000 Ft

4002 Debrecen Pallag

PR084673/HZ/11446 | 5 szoba | 212 m²
201 600 000 Ft

4002 Debrecen Pallag

PR084673/HZ/11449 | 3 szoba | 212 m²
185 500 000 Ft

4002 Debrecen Debrecen

HZ069308 | 4 szoba | 100 m²
85 000 000 Ft

4002 Debrecen Pallag

PR084673/HZ/15745 | 4 szoba | 161 m²
160 125 000 Ft

4002 Debrecen Pallag

PR084673/HZ/15746 | 4 szoba | 160 m²
158 000 000 Ft

4032 Debrecen Debrecen, Nyulas

HZ056266 | 5 szoba | 285 m²
275 000 000 Ft

4030 Debrecen

HZ057031 | 4 szoba | 150 m²
73 000 000 Ft

4033 Debrecen Acsádi út közelében családi ház eladó

HZ089208 | 6 szoba | 240 m²
139 000 000 Ft

4024 Debrecen Debrecen Fórum közelében

HZ046585 | 4 szoba | 96 m²
75 000 000 Ft

4225 Debrecen Józsa

PR099487/HZ/19415 | 5 szoba | 180 m²
166 950 000 Ft

4225 Debrecen Józsa

PR099487/HZ/19417 | 5 szoba | 170 m²
141 900 000 Ft

4028 Debrecen Hüse vendéglő közelében

HZ075166 | 4 szoba | 69 m²
79 990 000 Ft

4028 Debrecen Nagyerdő alján

HZ054579 | 8 szoba | 310 m²
315 000 000 Ft

4032 Debrecen

HZ035399 | 7 szoba | 210 m²
220 000 000 Ft

4002 Debrecen Pallagon újépítésű modern iker családiházak

PR059154/HZ/21139 | 4 szoba | 142 m²
159 000 000 Ft

4002 Debrecen Pallagon újépítésű modern iker családiházak

PR059154/HZ/21140 | 5 szoba | 154 m²
159 000 000 Ft

4032 Debrecen Nyulasi prime minőségű családiházak

PR076832/HZ/21144 | 6 szoba | 163 m²
210 000 000 Ft

4032 Debrecen Nyulasi prime minőségű családiházak

PR076832/HZ/21145 | 6 szoba | 163 m²
210 000 000 Ft
Lévainé Julika
Örökös tag értékesítő
Kapcsolatfelvétel
Hívom
Kapcsolatfelvétel
Kérjen egy személyes megtekintést az ingatlanra a Duna House értékesítőjétől
Válassz egy időpontot