.
Eladó Lakás 1139 Budapest 13. kerület , Eladó lakás Angyalföldön, Budapest XIII. kerületében (C407)
LK052495
Eladó
Társasház
Hamarosan jön
Új
109 275 000 Ft
1139 Budapest 13. kerület , Eladó lakás Angyalföldön, Budapest XIII. kerületében (C407)
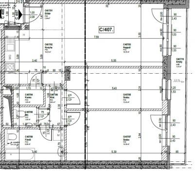
3 szoba
77 m²
Tégla
Törlesztőrészlet Ft/hó
THM %
4 megtekintés az elmúlt 7 napban
Leírás
Kiváló lokáció, közkedvelt lakópark, modern, fiatalos lakások!

Budapesten, a XIII. kerület Angyalföld városrészén, egy 2021-ben épült, modern, liftes lakóparkban eladó egy 73 nm-es, 4. emeleti lakás 8 nm-es erkéllyel.
A lakás amerikai konyhás nappalival, étkezővel és egy 2 hálószobával rendelkezik.
A környék kiváló tömegközlekedési lehetőségekkel rendelkezik!
A 14-es villamos, helyi autóbusz járatok, illetve akár az M3 metró megállója is csupán perc sétára található, így a belváros is könnyen megközelíthető.
A lakáshoz teremgarázsban parkolóhely vásárolható vagy bérelhető.

Találja meg nálunk leendő otthonát, aktuális befektetését!
Mutass többet
Általános adatok
Ingatlan állapota:
5 - Nagyon jó
Építés éve:
2021
Emelet:
4
Emeletek száma:
7
Lift:
Hívó
Épület külső állapota:
5 - Nagyon jó
Épület belső állapota:
5 - Nagyon jó
Fényviszonyok:
Napfényes
Parkolás:
Van
Erkély/Terasz:
Van
Nézet:
Utca
Tájolás:
K
Fűtés:
Távfűtés egyedi mérővel
Energetikai besorolás:
Nincs megadva
Hamarosan jön
A ”Hamarosan jön” státuszú ingatlanok esetében jelenleg még folyamatban vannak a jogi és egyéb ellenőrzési folyamatok, így azok még nem teljesültek maradéktalanul. A Duna House Franchise Kft. és annak hálózatában tevékenykedők nem vállalnak felelősséget azért, hogy az adott hirdetés mikor kerül ”aktív” státuszba, vagy aktív státuszba kerül-e végül. A részletekről érdeklődjenek az adott hirdetésnél található DH partner értékesítői elérhetőségeken.
Mutass többet
Lakáshitel kalkulátor – Spórolj velünk!
Kalkulálj most, és keresd pénzügyi szakértőinket, akik ingyenes tanácsadással segítenek megtalálni a számodra legjobb megoldást!

Hasonló ingatlanok

1133 Budapest 13. kerület ÚJLIPÓTVÁROS LEGEXKLUZÍVABB LAKÓPARKJÁBAN NAGY TERASZOS LAKÁS

LK049515 | 2 szoba | 48 m²
109 900 000 Ft

1137 Budapest 13. kerület

LK021420 | 4 szoba | 136 m²
199 000 000 Ft

1138 Budapest 13. kerület

PR014183/LK/10364 | 2 szoba | 50 m²
82 499 990 Ft

1138 Budapest 13. kerület

PR014183/LK/10367 | 39 m²
66 299 990 Ft

1138 Budapest 13. kerület

PR014183/LK/10373 | 2 szoba | 51 m²
84 199 990 Ft

1138 Budapest 13. kerület

PR014183/LK/10388 | 2 szoba | 51 m²
84 149 990 Ft

1138 Budapest 13. kerület

PR014183/LK/10389 | 1 szoba | 37 m²
62 899 990 Ft

1138 Budapest 13. kerület

PR014183/LK/10392 | 3 szoba | 63 m²
103 949 990 Ft

1138 Budapest 13. kerület

PR014183/LK/12870 | 1 szoba | 52 m²
85 799 990 Ft

1138 Budapest 13. kerület

PR014183/LK/12873 | 2 szoba | 64 m²
105 599 990 Ft

1134 Budapest 13. kerület Lőportárdülő

PR027158/LK/15496 | 3 szoba | 105 m²
147 200 000 Ft

1139 Budapest 13. kerület Angyalföld

PR088803/LK/15612 | 2 szoba | 88 m²
126 000 000 Ft

1139 Budapest 13. kerület Angyalföld

PR088803/LK/15681 | 2 szoba | 72 m²
112 200 000 Ft

1139 Budapest 13. kerület Angyalföld

PR088803/LK/15682 | 2 szoba | 85 m²
134 100 000 Ft

1138 Budapest 13. kerület

LK067215 | 2 szoba | 52 m²
109 900 000 Ft

1138 Budapest 13. kerület

LK027180 | 3 szoba | 76 m²
195 000 000 Ft

1133 Budapest 13. kerület Újlipótváros

LK081853 | 3 szoba | 97 m²
99 900 000 Ft

1131 Budapest 13. kerület

LK089890 | 3 szoba | 95 m²
94 100 000 Ft

1139 Budapest 13. kerület A Vasas pálya közelében csendes utcában

LK090971 | 3 szoba | 163 m²
162 592 500 Ft

1138 Budapest 13. kerület Danubius utca

LK010458 | 3 szoba | 105 m²
350 000 000 Ft
Lévainé Julika
Örökös tag értékesítő
Kapcsolatfelvétel
Hívom
Kapcsolatfelvétel
Kérjen egy személyes megtekintést az ingatlanra a Duna House értékesítőjétől
Válassz egy időpontot