.
Eladó Ház 1108 Budapest 10. kerület , Újhegy
HZ085582
Eladó
Családi ház
Új
180 000 000 Ft
1108 Budapest 10. kerület , Újhegy
4 szoba
122 m²
205 m² telek
Törlesztőrészlet Ft/hó
THM %
2 megtekintés az elmúlt 7 napban
Leírás
Modern, kétszintes újépítésű ikerház!

Budapest X.  kerület egyik legnyugodtabb területén, egy csendes mellékutcában, gyönyörű és minőségi családi otthon épül!

Az ingatlan a mai kor műszaki elvárásai szerint kerül felépítésre. Prémium minőségű gépészet és kiváló minőségű anyagok felhasználásával.

A telek adta lehetőségek a leg optimálisabban került kihasználásra, az ikerház felépítésére.

Belső terei megtervezésekor első számú szempont volt a XXI. századi modern kialakítás, a kényelmes és egyben praktikus tér elrendezés.

Az ingatlanhoz tartozik egy 231 m2-es kert, amely tökéletes egy nagyobb család számára is. A kert privát és nem látni be rá, megfelelő intimitást nyújt.

A csendes elhelyezkedés egyben egy remek infrastruktúrát jelent. A környéken minden megtalálható amire az embernek szüksége lehet, illetve a belváros is rendkívül gyorsan megközelíthető, autóval, és tömegközlekedéssel is.

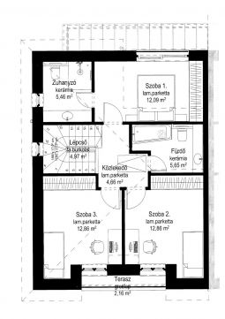
A ház helységei két szinten oszlanak meg, a hasznos alapterület 122 m2.



Az otthon szíve a, közel 33 m2-es amerikai konyhás nappali, ami terasz kapcsolatos, ezen a szinten még zuhanyzó+wc, háztartási helyiség kerül kialakításra.

Tartozik az ingatlanhoz egy fedett garázs is, ahova bőven be lehet parkolni egy nagyméretű autóval is, illetve a holmik tárolására is tökéletes.

A felső szinten további 3 db teljes értékű szoba várja új tulajdonosait, a lakók kényelmét még két db fürdőszoba szolgálja.

A vételár tartalmazza:

-    beépített gépesített konyabútort,

-    a teljes kertépítést,

-    a beépített gardróbszekrényeket.

MŰSZAKI TARTALOM:



-     Főfalak: 30 cm POROTHERM 30 N+F vázkerámia falazóblokk falazat ragasztva,

-     Válaszfalak: 10 cm vtg. kerámia válaszfallapból, speciális ragasztóval,

-    Koszorúk: monolit vasbeton szerkezet, külső oldalán 5 cm plusz kiegészítő hőszigeteléssel,

-    Födém: monolit vasbeton födém készül, statikai méretezés szerint, emelet felett fa fedélszék ,

-    Tető: hagyományos ácsszerkezetű magastető készül 25 fokos hajlásszöggel, dobozolt eresz kialakítással, Terrán Zenit Max Carbon szürke színben cserépfedéssel.

-    Műanyag nyílászárók fenyő színben, 3 rétegű hőszigetelő üvegezéssel és több ponton

záródó biztonsági bejárati ajtóval.

-    Burkolatok: hálószobákban laminált parketta melegburkolat, vizes helyiségeben kerámia-, és csempeburkolat készül. Kültéren a gépkocsi behajtó és járdák térkő burkolatúak.

-    Homlokzati hőszigetelés  expandált polisztirol hőszigetelő lemez 15 cm vtg-ban

-    Lábazati hőszigetelés extrudált polisztirol hőszigetelő lemez 12 cm vtg-ban

-    Koszorú külső hőszigetelés expandált polisztirol hőszigetelő lemez 5 cm vtg-ban

-    Hőszigetelés padlóban expandált polisztirol hőszigetelő lemez 10 cm vtg-ban

-    Födém feletti hőszigetelés EPS hőszigetelés, 20 cm vtg-ban,

-    hőszivattyús fűtés, mennyezeti fűtés, hútés.

EXTRÁK:

-    OKOS RENDSZER,

-    elektromos redőnyök,

-    kamera és riasztó rendszer kiépítés,

-    videó kaputelefon,

-    elektromos kapu,

-    öntöző rendszer,

-    elektromos autótöltő kiépítés,

-    Wpc kerítés,

-    3 rétegű üvegek,

-    rejtett világítások,

-    udvar világítások,

-    légtechnika.

Teljes átláthatóság az építkezés során digitálisan, kényelmesen, biztonságosan!

Az építkezés nálunk nem csak szakmai precizitásról szól, hanem valódi átláthatóságról is. A PlanRadar digitális projektkövető rendszerének köszönhetően Ön, mint leendő tulajdonos:

    Valós időben nyomon követheti az építkezés minden lépését akár mobilról is.

    Kéthetente részletes jelentést kap az aktuális állapotról, fotókkal, dokumentumokkal.

    A projekt végén digitálisan megkapja az összes hivatalos dokumentumot, beleértve a garanciákat, tervrajzokat, átadási jegyzőkönyveket mindezt egyetlen, biztonságos platformon.





FINANSZÍROZÁS: Hitelre megvásárolható, vevőink részére díjmentes hitel közvetítés, minden magyarországi bankból. Állami támogatások felvehetőek rá!



Átadás: 2026. III. NEGYEDÉV

Ne hagyja ki ezt a páratlan lehetőséget! Egy ilyen prémium ingatlan ritkán kerül piacra, és most Ön előtt áll a lehetőség, hogy a város egyik legvonzóbb helyén éljen. Tökéletes választás a modern, kényelmes és biztonságos életstílust keresők számára!

Várom megtisztelő hívását a hét minden napján!



Mutass többet
Általános adatok
Építés éve:
2026
Belső szintek száma:
2
Épület külső állapota:
6 - Új. ép.
Épület belső állapota:
6 - Új. ép.
Fényviszonyok:
Napfényes
Nézet:
Kert/belső kert
Fűtés:
Hőszivattyú,Mennyezeti hűtés-fűtés
Szerkezet:
Tégla
Energetikai besorolás:
Nincs megadva
Víz:
Ingatlanban
Gáz:
Ingatlanban
Villany:
Ingatlanban
Csatorna:
Ingatlanban
Lakáshitel kalkulátor – Spórolj velünk!
Kalkulálj most, és keresd pénzügyi szakértőinket, akik ingyenes tanácsadással segítenek megtalálni a számodra legjobb megoldást!

Hasonló ingatlanok

1106 Budapest 10. kerület

HZ507832 | 4 szoba | 100 m²
125 000 000 Ft

1104 Budapest 10. kerület Kőbánya Óhegyen

HZ074928 | 3 szoba | 74 m²
145 000 000 Ft

1108 Budapest 10. kerület

HZ018812 | 4 szoba | 180 m²
199 000 000 Ft

1106 Budapest 10. kerület

HZ074031 | 5 szoba | 190 m²
90 000 000 Ft

1103 Budapest 10. kerület Óhegy park közelében

HZ096268 | 6 szoba | 204 m²
160 000 000 Ft

1106 Budapest 10. kerület

HZ034061 | 2 szoba | 150 m²
150 000 000 Ft

1106 Budapest 10. kerület Kőbánya kertváros részén eladó bruttó 130 nm-es ikerfél

HZ054959 | 4 szoba | 129 m²
128 000 000 Ft

1103 Budapest 10. kerület Óhegy

HZ030097 | 4 szoba | 175 m²
170 000 000 Ft

1105 Budapest 10. kerület

HZ050885 | 3 szoba | 49 m²
62 900 000 Ft

1106 Budapest 10. kerület

H504344 | 5 szoba | 122 m²
105 000 000 Ft

1105 Budapest 10. kerület Kőbánya villanegyedében

HZ069981 | 9 szoba | 405 m²
310 000 000 Ft

1106 Budapest 10. kerület Kívül felújított, belül felújítandó, 5 szintes épület a Jászberényi úton- Munkásszállónak, irodaházn

IH029277 | 17 szoba | 2283 m²
330 750 000 Ft

1106 Budapest 10. kerület

TK035414 | 531 m²
24 900 000 Ft

1103 Budapest 10. kerület

H507553 | 5 szoba | 160 m²
145 000 000 Ft

1106 Budapest 10. kerület

H507908 | 3 szoba | 80 m²
55 000 000 Ft

1108 Budapest 10. kerület

HZ037022 | 7 szoba | 198 m²
265 000 000 Ft

1103 Budapest 10. kerület

H508506 | 7 szoba | 245 m²
289 000 000 Ft

1101 Budapest 10. kerület Pongrácz úti lakótelepen 36 nm-es lakás új konyhával eladó

LK036908 | 1 szoba | 36 m²
44 900 000 Ft

1108 Budapest 10. kerület Újhegy

HZ017893 | 4 szoba | 122 m²
180 000 000 Ft

1108 Budapest 10. kerület Újhegy

HZ086270 | 4 szoba | 122 m²
180 000 000 Ft
Zámbó Beatrix
Örökös tag értékesítő
Kapcsolatfelvétel
Hívom
Kapcsolatfelvétel
Kérjen egy személyes megtekintést az ingatlanra a Duna House értékesítőjétől
Válassz egy időpontot