.
Eladó Ház 1025 Budapest 2. kerület , Pál-völgyi barlangnál, költözhető, önálló, Modern Villa
HZ039702
Eladó
Családi ház
Áresés
1 490 000 000 Ft
1025 Budapest 2. kerület , Pál-völgyi barlangnál, költözhető, önálló, Modern Villa
5 szoba
402 m²
917 m² telek
Törlesztőrészlet Ft/hó
THM %
43 megtekintés az elmúlt 7 napban
Leírás
Panorámás, modern családi ház a Mátyáshegy lábánál exkluzív környezetben English description  below.

Budapest egyik legkeresettebb, zöldövezeti részén, a Mátyáshegy közelében, a Pál-völgyi-barlang szomszédságában kínálunk megvételre egy kivételes adottságokkal rendelkező, önálló modern családi házat.
Az ingatlan egy elegáns, csendes utcában, saroktelken helyezkedik el, minimális átmenő forgalommal, elvehetetlen panorámával és teljes intimitással. A környezet rendezett, magas presztízsű, modern családi házas övezet.
A sík, gondosan parkosított, 917 m²-es telken elhelyezkedő ingatlan nettó 402 m² alapterülettel rendelkezik, több teraszkapcsolattal és jól elkülönített privát élettérrel.
A ház kiváló műszaki és esztétikai állapotban van. Tégla szerkezet, vasbeton födém, korszerű hőszigetelés és modern gépészet biztosítja az időtállóságot és a komfortot.
A belső terek világosak, nagyvonalúak, letisztult dizájnnal és átgondolt térszervezéssel. A nappaliban található kandalló elegáns, otthonos atmoszférát teremt, miközben a ház egészét a funkcionalitás és a minőség jellemzi.

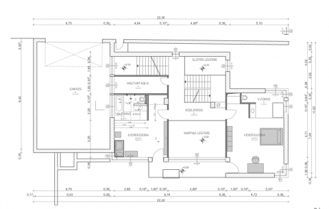
Háromszintes, jól elkülönített élettér
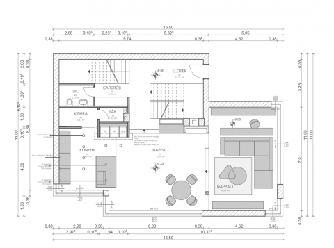
Földszint Közösségi tér
* elegáns előtér és gardrób
* vendég WC
* kamra és tároló
* külön konyha
* tágas étkezőnappali
* külön nappali kandallóval
* közvetlen terasz- és kertkapcsolat
Ideális családi élethez és reprezentatív vendégfogadáshoz.
Első emelet Családi és vendégszint
* gyerekszoba saját fürdővel
* vendégszoba külön fürdővel
* háztartási helyiség
* közlekedők
* nagyméretű, akár 4 autó befogadására alkalmas garázs
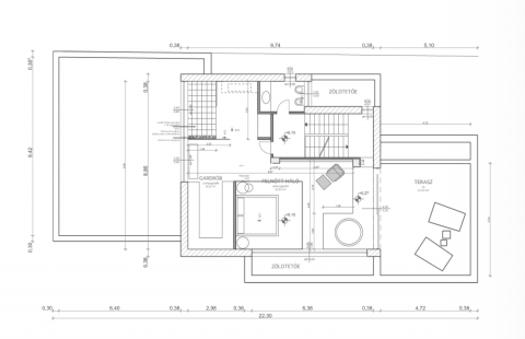
Második emelet Privát lakrész
* nagyméretű hálószoba
* gardrób
* külön WC
* előtér
* panorámás terasz
A felső szint nyugodt, elkülönített privát zónát biztosít.

Korszerű műszaki felszereltség
* napelemrendszer
* központi klímarendszer
* vízlágyító
* okosotthon rendszer
* riasztó
* kandalló
* kiváló energetikai hatékonyság

Életminőség és elhelyezkedés
A ház teljes mértékben szeparált, betekintésmentes, harmonikus környezetben található. A természet közelsége és a belváros gyors elérhetősége egyensúlyt teremt a nyugalom és a városi dinamika között.
Az ingatlan azonnal birtokba vehető és költözhető.

Prime Panoramic Family Residence at the Foot of Mátyás Hill

Located in one of Budapests most prestigious green residential areas, near Mátyáshegy and in the immediate vicinity of Pál-völgyi Cave, this exceptional detached family home is offered for sale in a refined and tranquil setting of Budapest.
Set on a quiet corner plot in an elegant street with minimal through traffic, the property enjoys unobstructed panoramic views, complete privacy, and a high-prestige residential environment.

Property Overview
* Plot : 917 m², flat and professionally landscaped
* Net living area: 402 m²
* Terraces: Multiple outdoor connections
* Structure: Brick construction with reinforced concrete slabs
* Condition: Excellent technical and aesthetic state
* Design: Contemporary architecture with timeless elegance
The residence combines durable construction, advanced insulation, and modern engineering systems to ensure long-term value, comfort, and energy efficiency.
Bright, generous interiors, clean architectural lines, and thoughtfully planned layouts define the home. The fireplace in the main living area creates a refined yet welcoming atmosphere, perfectly balancing luxury and everyday comfort.

Three-Level Layout with Distinct Living Zones
Ground Floor Social & Living Area
* Elegant entrance hall with walk-in wardrobe
* Guest WC
* Pantry and storage rooms
* Separate kitchen
* Spacious dining and living area
* Separate lounge with fireplace
* Direct access to terraces and garden
Ideal for family life and refined entertaining.
First Floor Family & Guest Level
* Childrens bedroom with en-suite bathroom
* Guest bedroom with private bathroom
* Utility / laundry room
* Internal corridors
* Large garage suitable for up to 4 vehicles
Second Floor Private Master Suite
* Spacious master bedroom
* Walk-in wardrobe
* Separate WC
* Private foyer
* Panoramic terrace
This upper level offers a calm, secluded private retreat.

Advanced Technical Features
* Solar panel system
* Central air-conditioning system
* Water softener
* Smart home system
* Alarm system
* Fireplace
* Outstanding energy efficiency
These features ensure sustainable operation, high comfort, and low long-term maintenance costs.

Lifestyle & Location
The property is fully secluded and shielded from external views, offering complete privacy in a harmonious natural environment. The proximity to nature, combined with fast access to the city center, creates a perfect balance between tranquility and urban convenience.
Shops, international schools, medical services, and major transport routes are all easily accessible.

Key Advantages
* Prime Buda hillside location
* Uninterrupted panoramic views
* High-end technical equipment
* Spacious, flexible layout
* Exceptional privacy
* Move-in ready condition

This outstanding residence is immediately available and represents a rare opportunity for buyers seeking a premium home in one of Budapests most sought-after residential districts.


Mutass többet
Általános adatok
Építés éve:
2016
Belső szintek száma:
2
Épület külső állapota:
5 - Nagyon jó
Épület belső állapota:
5 - Nagyon jó
Fényviszonyok:
Napfényes
Nézet:
Panoráma
Fűtés:
Gáz cirkó,Padlófűtés
Szerkezet:
Tégla
Energetikai besorolás:
Nincs megadva
Víz:
Ingatlanban
Gáz:
Ingatlanban
Villany:
Ingatlanban
Csatorna:
Ingatlanban
Lakáshitel kalkulátor – Spórolj velünk!
Kalkulálj most, és keresd pénzügyi szakértőinket, akik ingyenes tanácsadással segítenek megtalálni a számodra legjobb megoldást!

Hasonló ingatlanok

1022 Budapest 2. kerület Rózsadombon 1897-ben épített romantikus villa.

HZ068722 | 7 szoba | 544 m²
980 000 000 Ft

1029 Budapest 2. kerület Két önálló családi ház 3422 nm-es birtokon eladó Budaliget!

HZ085392 | 10 szoba | 550 m²
759 900 000 Ft

1029 Budapest 2. kerület Kertvárosi idill a Templomkertnél

HZ088802 | 5 szoba | 169 m²
248 000 000 Ft

1028 Budapest 2. kerület

HZ056939 | 9 szoba | 286 m²
240 000 000 Ft

1029 Budapest 2. kerület KÖRPANORÁMÁS KÉT LAKÁSOS CSALÁDIHÁZ

HZ051039 | 8 szoba | 392 m²
275 000 000 Ft

1029 Budapest 2. kerület Karbantartott IKERHÁZfél a Francia iskolától 3 percre

HZ013833 | 6 szoba | 195 m²
201 000 000 Ft

1029 Budapest 2. kerület Gyöngyvér u.

HZ012120 | 4 szoba | 130 m²
249 000 000 Ft

1029 Budapest 2. kerület 2010-ben épült 160 négyzetméteres családi ház eladó a Gustave Eiffel Francia Óvoda, Iskola közelébe

HZ037159 | 5 szoba | 160 m²
249 900 000 Ft

1026 Budapest 2. kerület Bimbó út

HZ083074 | 6 szoba | 390 m²
419 000 000 Ft

1029 Budapest 2. kerület Budaliget , Kálvária-hegyre panorámás 2010-ben épült 160 négyzetméteres ingatlan, duplatelken eladó

HZ063656 | 4 szoba | 160 m²
379 000 000 Ft

1021 Budapest 2. kerület

HZ468648 | 28 szoba | 1150 m²
1 650 000 000 Ft

1029 Budapest 2. kerület Budaligeten medencés ház (360nm) eladó 1043 nm-es, parkosított, panorámás telken

HZ025823 | 6 szoba | 385 m²
429 900 000 Ft

1021 Budapest 2. kerület Hűvösvölgy város felőli oldalán, ÉTTEREM és melléképület PAR

VL089214 | 1 szoba | 982 m²
499 000 000 Ft

1028 Budapest 2. kerület

HZ019550 | 5 szoba | 290 m²
580 000 000 Ft

1029 Budapest 2. kerület Náncsi Néni étteremhez közel, panorámás, gyönyörű ház!

HZ045711 | 7 szoba | 265 m²
350 000 000 Ft

1028 Budapest 2. kerület Vízmosás utca közelében

HZ011523 | 9 szoba | 311 m²
440 000 000 Ft

1029 Budapest 2. kerület

HZ082814 | 6 szoba | 300 m²
455 000 000 Ft

1025 Budapest 2. kerület PRÉMIUM MÍNŐSÉGŰ VILLAHÁZ, 12 AUTÓNAK PARKOLÁSI LEHETŐSÉGGEL

HZ043179 | 8 szoba | 550 m²
1 498 000 000 Ft

1029 Budapest 2. kerület

HZ020382 | 4 szoba | 250 m²
370 000 000 Ft

1029 Budapest 2. kerület II. Kerület Budaliget

HZ088979 | 9 szoba | 363 m²
334 191 000 Ft
Nidal Ádám
Briliáns fokozatú értékesítő
Kapcsolatfelvétel
Hívom
Kapcsolatfelvétel
Kérjen egy személyes megtekintést az ingatlanra a Duna House értékesítőjétől
Válassz egy időpontot