.
Eladó Ház 1155 Budapest 15. kerület , Rákospalota
HZ034029
Eladó
Családi ház
Hamarosan jön
Új
179 900 000 Ft
1155 Budapest 15. kerület , Rákospalota
8 szoba
270 m²
361 m² telek
Törlesztőrészlet Ft/hó
THM %
4 megtekintés az elmúlt 7 napban
Leírás
ELADÓ TÖBBGENERÁCIÓS CSALÁDI HÁZ A XV. KERÜLET ZUGLÓVAL HATÁROS RÉSZÉN VÁLLALKOZÁSRA IS KIVÁLÓ!

Budapest XV. kerületének Zuglóhoz közeli, jól megközelíthető részén kínálunk megvételre egy 361 m²-es telken elhelyezkedő, 3 szintes + tetőtérrel rendelkező, összesen 270 m² alapterületű családi házat. A tégla épület 1980. évben  épült. 
Az ingatlan egyik legnagyobb előnye a sokoldalú kihasználhatóság:
A félszuterén szinten külön bejáratú lakás került kialakításra, mely a földszintről, és az udvarról is megközelíthető, külön bejárattal rendelkezik.  
A ház jó állapotú, folyamatosan karbantartott,  ideális vállalkozás,  vagy többgenerációk  együttélése céljára is.

A ház elosztása praktikus, többféle  hasznosítási  formában működtetheti új tulajdonosa. 
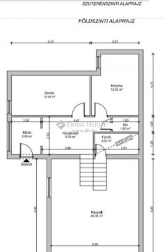
A félszuterén szinten 3 szoba, konyha fürdőszoba, kazánház, kamra, és közlekedő kapott helyet,  jelenleg lakásként funkcionál. 
A  földszinti részen található  a nappali,  két  hálószoba, gardrób, közlekedő, fürdőszoba, és wc.  
Szinteltolásos  megoldással épített ház harmadik szintjén található a tetőtérben kialakított gardrób szoba, amely jelenleg egy légtér, azonban a tetőablakok elhelyezésének köszönhetően két teljes értékű szoba  itt is kialakítható.  Vizesblokk ezen a szinten is van.   

Műszaki tartalom és felújítás:
Az elmúlt két évben az ingatlanban folyamatos felújítási munkák  voltak, a  viz-,  szennyvízcsatorna, elektromos hálózat. 
korszerűsítése is megtörtént. Az ingatlan összközműves!
A szigetelt homlokzat új színezést, a cserépfedésű tető  is új lemezes ereszalj burkolatot kapott.   Az ingatlan  fűtéséről gázkazán gondoskodik, radiátoros hőleadókkal, illetve padlófűtéssel.  A nappaliba, és a hűlószobába  klíma került felszerelésre. Háromfázisú, megnövelt teljesítményű elektromos hálózattal rendelkezik az ingatlan.  
Telek és udvar:
A térkővel burkolt udvarban lehetőség van 2-3 autó számára kényelmesen parkolni úgy, hogy marad hely az itt élők számára  szabadtéri családi összejövetelekhez is.   Az telek utcafronti része új lemez kerítést kapott.   

A környék infrastruktúrája kiváló, a közlekedés gyors és kényelmes, így a belváros is könnyen elérhető.

Ideális választás nagycsaládosoknak, összeköltözőknek, illetve azoknak, akik otthonukat vállalkozással kombinálják. 
Amennyiben az ingatlan felkeltette érdeklődését, és személyesen szeretné megtekinteni, vagy további információkra lenne szüksége várom hívását!
 


Mutass többet
Általános adatok
Építés éve:
1993
Belső szintek száma:
3
Épület külső állapota:
4 - Jó
Épület belső állapota:
4 - Jó
Fényviszonyok:
Nézet:
Udvar
Fűtés:
Gáz kazán,Klíma
Szerkezet:
Tégla
Energetikai besorolás:
Nincs megadva
Víz:
Ingatlanban
Gáz:
Ingatlanban
Villany:
Ingatlanban
Csatorna:
Ingatlanban
Hamarosan jön
A ”Hamarosan jön” státuszú ingatlanok esetében jelenleg még folyamatban vannak a jogi és egyéb ellenőrzési folyamatok, így azok még nem teljesültek maradéktalanul. A Duna House Franchise Kft. és annak hálózatában tevékenykedők nem vállalnak felelősséget azért, hogy az adott hirdetés mikor kerül ”aktív” státuszba, vagy aktív státuszba kerül-e végül. A részletekről érdeklődjenek az adott hirdetésnél található DH partner értékesítői elérhetőségeken.
Mutass többet
Lakáshitel kalkulátor – Spórolj velünk!
Kalkulálj most, és keresd pénzügyi szakértőinket, akik ingyenes tanácsadással segítenek megtalálni a számodra legjobb megoldást!

Hasonló ingatlanok

Szentesi Rozália
Platina fokozatú értékesítő
Kapcsolatfelvétel
Hívom
Kapcsolatfelvétel
Kérjen egy személyes megtekintést az ingatlanra a Duna House értékesítőjétől
Válassz egy időpontot