.
Eladó Ház 1173 Budapest 17. kerület
H513490
Eladó
Családi ház
244 990 000 Ft
1173 Budapest 17. kerület
6 szoba
206 m²
605 m² telek
Törlesztőrészlet Ft/hó
THM %
6 megtekintés az elmúlt 7 napban
Leírás
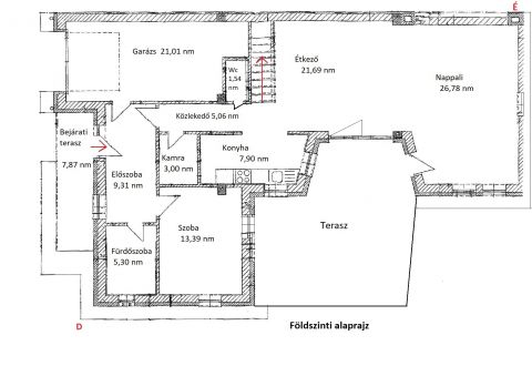
Medencés, szaunás, napelemes újszerű ház eladó a Pesti úti lakóparkban
XVII. kerületben a méltán kedvelt Pesti úti lakóparkban kínálunk megvásárlásra egy nappali+ 5 szobás, sok extrával felszerelt kiváló állapotú családi házat 605 nm-es telekkel. A lakóépület 2002-ben épült, azóta a Tulajdonosa esztétikailag és műszakilag is felújította, így a mai igényeknek maximálisan megfelel. A ház belső elosztása kiváló, nagyobb létszámú családnak, két generációnak is kényelmes Otthona lehet. A földszinten a tágas előszobából nyílik a felújított fürdőszoba, egy nagy méretű szoba, ez az egység külön lakrészként is funkcionálhat. A garázsból közvetlenül a lakásba jutunk. A ház központi része a közel 50 nm-es, napfényben úszó ( DK-i tájolás) nagyobb belmagasságú nappali az étkezővel, innen közvetlen kertkapcsolatunk van a nagy méretű teraszon keresztül. A konyhában új, gépesített (Bosch elektromos főzőlap, mosogatógép, sütő, mikró), német minőségi konyhabútor található, mely a vételár részét képezi. A nappaliban lévő fatüzelésű kandalló gondoskodik télen a meghitt hangulatról. Az emeletre kényelmes lépcső vezet, ahol négy tágas hálószoba, egy újszerű fürdőszoba és egy háztartási helyiség kapott helyet. Itt egy padlástéri helyiség még beépíthető, tárolásra kiválóan alkalmas. A mai energiaérzékeny világban fontos, hogy a rezsi ne legyen magas. Az ingatlan 10 KW-os napelemrendszerrel rendelkezik (még 7 évig szaldós), így a villanyszámla nulla. Elektromos autó töltő lett kiépítve, 5 db inverteres hűtő-fűtő klíma lett felszerelve, a fűtést és a használati melegvizet egy fiatal kondenzációs kazán biztosítja. Az ablakokban az üvegezés nemrég lett cserélve, továbbá a belső ajtókat is megújultak, modern, minőségi nyílászárók lettek beépítve. A hátsó, növényekkel körbeültetett intim kertben egy gépesített, épített medence került kialakításra napozóterasszal, a medence mérete 7,5 m x 4 m, hőszivattyú fűti a vizét.A medence mellett kapott helyet a 4 személyes finn szauna, továbbá kerti sütögető, bográcsozó is. A fűtött garázsban egy autó elfér, az előkertben további két autónak van hely, elektromos kapukon történik a bejutás, videós beléptető rendszer lett kialakítva. Az utcai kerítés cserélve lett porfestett alumínium kerítésre. A növényeket a 3 körös automata öntözőrendszer locsolja, a biztonságról riasztó gondoskodik. A környék kifejezetten szép, nívós, kulturált szomszédokkal, csendes kertvárosi környezet. Séta távolságra több bevásárlási lehetőség (Lidl, Spar), benzinkút, nagy játszótér, Home Centerben sok üzlet megtalálható, buszmegálló is rövid időn belül elérhető (97E, 202E).
Mutass többet
Általános adatok
Építés éve:
2002
Belső szintek száma:
Nincs megadva
Épület külső állapota:
5 - Nagyon jó
Épület belső állapota:
5 - Nagyon jó
Fényviszonyok:
Nincs megadva
Nézet:
Nincs megadva
Fűtés:
Gáz cirkó
Szerkezet:
Tégla
Energetikai besorolás:
Nincs megadva
Víz:
Telken belül
Gáz:
Telken belül
Villany:
Telken belül
Csatorna:
Telken belül
Lakáshitel kalkulátor – Spórolj velünk!
Kalkulálj most, és keresd pénzügyi szakértőinket, akik ingyenes tanácsadással segítenek megtalálni a számodra legjobb megoldást!

Hasonló ingatlanok

1174 Budapest 17. kerület

HZ514679 | 4 szoba | 212 m²
350 000 000 Ft

1172 Budapest 17. kerület Körpanorámás Villa Rákosliget legmagasabb pontján!

HZ074487 | 6 szoba | 300 m²
150 000 000 Ft

1174 Budapest 17. kerület Telephelynek! Boltnak! Üzletnek!

IP064719 | 150 m²
89 900 000 Ft

1172 Budapest 17. kerület

HZ057614 | 4 szoba | 135 m²
155 000 000 Ft

1172 Budapest 17. kerület

HZ015755 | 6 szoba | 197 m²
210 000 000 Ft

1173 Budapest 17. kerület

HZ035453 | 6 szoba | 260 m²
139 000 000 Ft

1172 Budapest 17. kerület 3 GENERÁCIÓS CSALÁDIHÁZ A 17. KERÜLET NÉPSZERŰ RÉSZÉN !

HZ049169 | 6 szoba | 240 m²
89 900 000 Ft

1171 Budapest 17. kerület Rákoscsaba

HZ039516 | 8 szoba | 214 m²
180 000 000 Ft

1174 Budapest 17. kerület Budapest 17. kerületében eladó egy impozáns udvarral rendelkező kétgeneráció számára is alkalmas ház

HZ019078 | 9 szoba | 270 m²
279 000 000 Ft

1171 Budapest 17. kerület

HZ084670 | 5 szoba | 196 m²
160 000 000 Ft

1171 Budapest 17. kerület Eladó luxus ingatlan Rákoscsabán

HZ057291 | 6 szoba | 396 m²
295 000 000 Ft

1174 Budapest 17. kerület

IP012815 | 2 szoba | 1740 m²
69 500 000 Ft

1172 Budapest 17. kerület Kopolya utca és a Tarcsai köz vonzáskörzetében

HZ039423 | 4 szoba | 83 m²
139 000 000 Ft

1173 Budapest 17. kerület Pesti úti lakópark

HZ094886 | 7 szoba | 260 m²
250 000 000 Ft

1171 Budapest 17. kerület Két generációs, napelemes, jó állapotú családi ház

HZ089018 | 9 szoba | 373 m²
249 000 000 Ft

1173 Budapest 17. kerület

HZ053292 | 8 szoba | 493 m²
449 000 000 Ft

1171 Budapest 17. kerület 3 lakásos családi ház

HZ099295 | 10 szoba | 317 m²
179 900 000 Ft

1172 Budapest 17. kerület A1 ÚJ ÉPÍTÉSŰ, 4 SZOBÁS, NAPELEMES HÁZ, GARÁZZSAL, SAJÁT KER

LK037318 | 4 szoba | 120 m²
134 900 000 Ft

1172 Budapest 17. kerület B1 ÚJ ÉPÍTÉSŰ HÁZ A NAPLÁS TÓNÁL, GARÁZZSAL, SAJÁT KERTTEL!

LK040105 | 4 szoba | 120 m²
139 000 000 Ft

1172 Budapest 17. kerület Három generáció együttélésére alkalmas családi ház

HZ041925 | 11 szoba | 250 m²
189 605 000 Ft
Horváth Bence
Értékesítő
Kapcsolatfelvétel
Hívom
Kapcsolatfelvétel
Kérjen egy személyes megtekintést az ingatlanra a Duna House értékesítőjétől
Válassz egy időpontot