.
Eladó Lakás 7624 Pécs
H512716
Eladó
Lakás
Prémium
79 900 000 Ft
7624 Pécs
4 szoba
69 m²
Tégla
Törlesztőrészlet Ft/hó
THM %
5 megtekintés az elmúlt 7 napban
Leírás
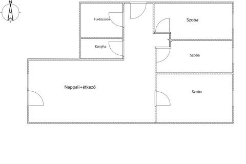
Pécs belvárosában, a HUNGÁRIA úton található ez a 69 négyzetméteres földszinti lakás, amely kiválóan alkalmas azok számára, akik értékelik a BELVÁROSI kényelmet.
Az ingatlan tágas nappalija világos, barátságos légkört teremt, amely méretét tekintve is tökéletes helyszín a családi összejövetelekhez vagy baráti találkozókhoz. Ehhez egy 20 négyzetméteres terasz is rendelkezésre áll.
A lakásban négy szoba található, így bőséges teret biztosít a lakók számára, legyen szó családról vagy akár kiadásról. A lakásban gáz (cirko) rendszerű fűtés van, melynek költségei nagyon gazdaságos a vastag falak hőtartó tulajdonsága miatt.
A környék ellátottsága kiváló, hiszen a közeli boltok, éttermek és szolgáltatások és a történelmi belváros mindössze néhány percnyi sétára találhatók.
Ez a kertkapcsolatos lakás nemcsak egy otthon, hanem egy lehetőség is a jövőbeli értéknövekedésre.
A nagy belmagasság és a modern kialakítás lehetővé teszi, hogy saját ízlésére formálja az ingatlant, miközben a belváros adta előnyöket élvezi.
Egy autó parkolására van lehetőség a zárt udvarban.
Amennyiben kérdései merülnének fel, vagy szeretné megtekinteni ezt a különleges ingatlant, bizalommal kereshet minket!


Regisztrációs szám: H512716
Mutass többet
Általános adatok
Ingatlan állapota:
4 - Jó
Építés éve:
1950
Emelet:
Földszint
Emeletek száma:
0
Lift:
Nincs Lift
Épület külső állapota:
3 - Lakható
Épület belső állapota:
3 - Lakható
Fényviszonyok:
Nincs megadva
Parkolás:
Nincs
Erkély/Terasz:
Nincs
Nézet:
Utca
Tájolás:
D
Fűtés:
Gáz cirkó
Energetikai besorolás:
Nincs megadva
Lakáshitel kalkulátor – Spórolj velünk!
Kalkulálj most, és keresd pénzügyi szakértőinket, akik ingyenes tanácsadással segítenek megtalálni a számodra legjobb megoldást!

Hasonló ingatlanok

7628 Pécs

HZ074000 | 1 szoba | 28 m²
16 000 000 Ft

7623 Pécs Rákóczi út

LK051857 | 2 szoba | 35 m²
69 900 000 Ft

7624 Pécs Egyetemvárosban PTE-ÁOK közelében lakások visszabérlési garanciával

PR017095/LK/16064 | 3 szoba | 72 m²
90 379 800 Ft

7624 Pécs Egyetemvárosban PTE-ÁOK közelében lakások visszabérlési garanciával

PR017095/LK/16069 | 2 szoba | 48 m²
60 895 800 Ft

7624 Pécs Egyetemvárosban PTE-ÁOK közelében lakások visszabérlési garanciával

PR017095/LK/16431 | 2 szoba | 53 m²
63 904 050 Ft

7624 Pécs Egyetemvárosban PTE-ÁOK közelében lakások visszabérlési garanciával

PR017095/LK/16432 | 2 szoba | 52 m²
63 588 000 Ft

7624 Pécs Egyetemvárosban PTE-ÁOK közelében lakások visszabérlési garanciával

PR017095/LK/16433 | 2 szoba | 53 m²
64 011 150 Ft

7624 Pécs Egyetemvárosban PTE-ÁOK közelében lakások visszabérlési garanciával

PR017095/LK/16435 | 3 szoba | 65 m²
74 763 150 Ft

7624 Pécs Egyetemvárosban PTE-ÁOK közelében lakások visszabérlési garanciával

PR017095/LK/16439 | 3 szoba | 74 m²
95 520 600 Ft

7624 Pécs Egyetemvárosban PTE-ÁOK közelében lakások visszabérlési garanciával

PR017095/LK/16441 | 2 szoba | 54 m²
70 005 600 Ft

7635 Pécs Tiborcz utca felett

PR043700/LK/10771 | 4 szoba | 164 m²
130 000 000 Ft

7635 Pécs Tiborcz utca felett

PR043700/LK/10772 | 3 szoba | 158 m²
105 000 000 Ft

7624 Pécs Egyetemvárosban PTE-ÁOK közelében lakások visszabérlési garanciával

PR017095/LK/16442 | 2 szoba | 54 m²
69 930 000 Ft

7624 Pécs Egyetemvárosban PTE-ÁOK közelében lakások visszabérlési garanciával

PR017095/LK/16443 | 2 szoba | 53 m²
68 594 400 Ft

7624 Pécs Egyetemvárosban PTE-ÁOK közelében lakások visszabérlési garanciával

PR017095/LK/16445 | 3 szoba | 74 m²
97 781 250 Ft

7624 Pécs

LK052009 | 1 szoba | 41 m²
29 900 000 Ft

7630 Pécs Prémium minőség - Újépítés - Belső kétszintes lakás !

LK084149 | 4 szoba | 96 m²
91 200 000 Ft

7630 Pécs Prémium minőségű - Újépítésű lakás !

LK093788 | 4 szoba | 86 m²
81 700 000 Ft

7630 Pécs Pécsett - Prémium Lakások!

LK076830 | 4 szoba | 86 m²
81 700 000 Ft

7691 Pécs

LK097280 | 1 szoba | 69 m²
4 900 000 Ft
Kovács Adrien
Briliáns fokozatú értékesítő
Kapcsolatfelvétel
Hívom
Kapcsolatfelvétel
Kérjen egy személyes megtekintést az ingatlanra a Duna House értékesítőjétől
Válassz egy időpontot