.
Eladó Lakás 1225 Budapest 22. kerület
H510006
Eladó
Lakás
Prémium
65 900 000 Ft
1225 Budapest 22. kerület
2 szoba
55 m²
Csúsztatott zsalu
Törlesztőrészlet Ft/hó
THM %
8 megtekintés az elmúlt 7 napban
Leírás
Világos, jó elrendezésű lakás remek lehetőségekkel!

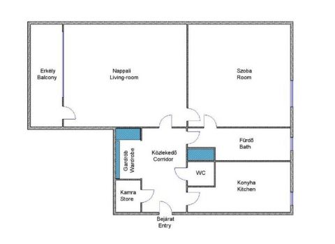
Eladásra kínálunk Nagytétényben egy 55 m²-es, erkélyes lakást, jó elrendezéssel és kedvező adottságokkal.
A ház rendezett, karbantartott, közepes állapotú, a lépcsőház tiszta.
Az erkély a nappaliból nyílik, tökéletes hely egy kávéhoz vagy pihenéshez. Nagyon jó adottságú, igény szerint könnyen otthonossá alakítható.
A lakás világos, jól tagolt, jó szerkezeti alapokkal rendelkező ingatlan, amely állapotából adódóan kiváló lehetőséget kínál az új tulajdonosnak, hogy saját ízlése szerint modern, otthonos életteret alakítson ki.

A nappali északnyugati, a hálószoba délkeleti tájolású, így a lakás egész nap természetes fényben fürdik.
A tágas, kádas fürdőszoba két bejárattal is megközelíthető (az előszobából és a hálóból), ami kényelmes és praktikus megoldás, a WC külön helyiségben van. A helyiségekhez látványtervek is készültek, amelyek segítenek könnyen elképzelni az új otthon leendő hangulatát és kialakítását.
Az ablakok korszerű műanyag nyílászárók, a fűtés konvektoros, a közös költség mindössze 15.900 Ft, és a lakáshoz közös tároló is tartozik.

Közlekedés szempontjából is kedvező elhelyezkedésű:
33, 133E és 973-as buszjáratok, valamint a Barosstelep és Kastélypark vasútállomások a közelben.
A parkolás ingyenes.

Az ingatlan per- és tehermentes, megfelel az Otthon Start feltételeinek, és hosszú távú kiadásra is kiváló befektetési lehetőséget kínál.
Mutass többet
Általános adatok
Ingatlan állapota:
3 - Lakható
Építés éve:
1978
Emelet:
2
Emeletek száma:
0
Lift:
Nincs Lift
Épület külső állapota:
3 - Lakható
Épület belső állapota:
3 - Lakható
Fényviszonyok:
Nincs megadva
Parkolás:
Nincs
Erkély/Terasz:
Van
Nézet:
Utca
Tájolás:
DK
Fűtés:
Gázkonvektor
Energetikai besorolás:
Nincs megadva
Lakáshitel kalkulátor – Spórolj velünk!
Kalkulálj most, és keresd pénzügyi szakértőinket, akik ingyenes tanácsadással segítenek megtalálni a számodra legjobb megoldást!

Hasonló ingatlanok

1225 Budapest 22. kerület 22.ker, frekventált zöldövezeti részén, 1,5szobás, erkélyes

LK078926 | 2 szoba | 44 m²
63 000 000 Ft

1223 Budapest 22. kerület

H507157 | 3 szoba | 60 m²
79 900 000 Ft

1221 Budapest 22. kerület Leányka utca

LK052752 | 3 szoba | 59 m²
74 900 000 Ft

1225 Budapest 22. kerület

H499785 | 2 szoba | 45 m²
59 990 000 Ft

1221 Budapest 22. kerület

H506151 | 2 szoba | 54 m²
73 651 563 Ft

1225 Budapest 22. kerület

H508914 | 2 szoba | 49 m²
57 900 000 Ft

1225 Budapest 22. kerület Budapest 22. kerület, Nagytétény

LK079843 | 3 szoba | 56 m²
71 900 000 Ft

1223 Budapest 22. kerület Panelprogramos kétszobás lakás

LK010035 | 2 szoba | 49 m²
59 900 000 Ft

1221 Budapest 22. kerület

H510073 | 3 szoba | 58 m²
66 900 000 Ft

1225 Budapest 22. kerület

H510805 | 2 szoba | 47 m²
67 000 000 Ft

1223 Budapest 22. kerület 1223 Budapest 22, Rózsakert

M318637 | 3 szoba | 59 m²
88 000 000 Ft

1223 Budapest 22. kerület 1223 Budapest 22, Rózsakert

M318699 | 3 szoba | 58 m²
75 000 000 Ft

1221 Budapest 22. kerület 1221 Budapest 22, Savoya Park

M318638 | 2 szoba | 53 m²
69 900 000 Ft

1224 Budapest 22. kerület

HZ047403 | 4 szoba | 96 m²
130 000 000 Ft

1224 Budapest 22. kerület

HZ081299 | 4 szoba | 96 m²
130 000 000 Ft

1221 Budapest 22. kerület Rózsavölgy 2 lakásos ház újszerű alsó szintje

HZ055614 | 5 szoba | 92 m²
177 500 000 Ft
Jordáki Bence
Értékesítő
Kapcsolatfelvétel
Hívom
Kapcsolatfelvétel
Kérjen egy személyes megtekintést az ingatlanra a Duna House értékesítőjétől
Válassz egy időpontot