.
Eladó Lakás 1221 Budapest 22. kerület
H512611
Eladó
Lakás
Áresés
59 900 000 Ft
1221 Budapest 22. kerület
2 szoba
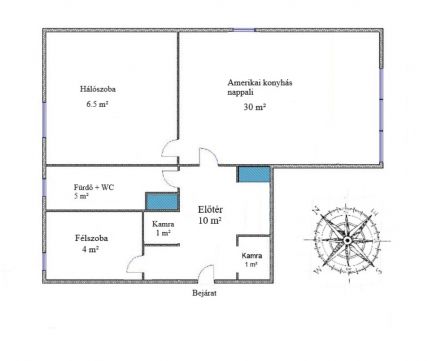
58 m²
Tégla
Törlesztőrészlet Ft/hó
THM %
2 megtekintés az elmúlt 7 napban
Leírás
KITŰNŐ ADOTTSÁGOKKAL, CSENDES, SZEPARÁLT LAKÁS ELADÓ…

Budafok Belvárosának szívében, 200 méterre a Dunától és a Budafoki vasútállomástól,
rendkívüli közlekedési adottságokkal, mégis csöndes részen, eladásra kínálok
egy 5 lakásos társasház 1. emeletén található, 58 nm-es, 2 szobás, felújítandó állapotú lakást,
terasszal, tárolóval és a rézsün elhelyezkedő kerti kiülővel…

A lakás minimális átalakításával, 2 db, 20 nm. feletti lakószoba is kialakítható…

•Junkers típusú gáz cirkó kazán, radiátoros hőleadókkal
•Felújítandó elektromos hálózat
•Dupla fa ablakok
•275 cm-es belmagasság
•4,5 nm. teraszrész
•10 nm. tároló
•6 nm zöld intim kertrész
•Központi elhelyezkedés
•Kitűnő infrastruktúra és közlekedési adottságok….

Sorolhatnám még az érveket, de jöjjön és válasszon Ön érveket magának,
hogy miért lesz ez az ingatlan az új Otthona!

Hívjon a nap bármely szakában!
Mutass többet
Általános adatok
Ingatlan állapota:
2 - Felújítandó
Építés éve:
1920
Emelet:
1
Emeletek száma:
1
Lift:
Nincs Lift
Épület külső állapota:
4 - Jó
Épület belső állapota:
4 - Jó
Fényviszonyok:
Nincs megadva
Parkolás:
Nincs
Erkély/Terasz:
Van
Nézet:
Nincs megadva
Tájolás:
ÉK
Fűtés:
Gáz cirkó
Energetikai besorolás:
Nincs megadva
Lakáshitel kalkulátor – Spórolj velünk!
Kalkulálj most, és keresd pénzügyi szakértőinket, akik ingyenes tanácsadással segítenek megtalálni a számodra legjobb megoldást!

Hasonló ingatlanok

1225 Budapest 22. kerület 22.ker, frekventált zöldövezeti részén, 1,5szobás, erkélyes

LK078926 | 2 szoba | 44 m²
63 000 000 Ft

1223 Budapest 22. kerület

H507157 | 3 szoba | 60 m²
94 000 000 Ft

1221 Budapest 22. kerület Leányka utca

LK052752 | 3 szoba | 59 m²
70 000 000 Ft

1225 Budapest 22. kerület

H499785 | 2 szoba | 45 m²
61 990 000 Ft

1221 Budapest 22. kerület

H506151 | 2 szoba | 54 m²
73 651 563 Ft

1225 Budapest 22. kerület Budapest 22. kerület, Nagytétény

LK079843 | 3 szoba | 56 m²
70 900 000 Ft

1221 Budapest 22. kerület

H510073 | 3 szoba | 58 m²
66 900 000 Ft

1225 Budapest 22. kerület

H510006 | 2 szoba | 55 m²
65 900 000 Ft

1225 Budapest 22. kerület

H510805 | 2 szoba | 47 m²
67 000 000 Ft

1223 Budapest 22. kerület 1223 Budapest 22, Rózsakert

M318637 | 3 szoba | 59 m²
88 000 000 Ft

1223 Budapest 22. kerület 1223 Budapest 22, Rózsakert

M318699 | 3 szoba | 58 m²
73 000 000 Ft

1221 Budapest 22. kerület 1221 Budapest 22, Savoya Park

M318638 | 2 szoba | 53 m²
69 900 000 Ft

1222 Budapest 22. kerület Csendes utcában

HZ013162 | 3 szoba | 60 m²
74 700 800 Ft

1223 Budapest 22. kerület

LK063973 | 1 szoba | 35 m²
69 900 000 Ft

1225 Budapest 22. kerület

H512149 | 3 szoba | 57 m²
67 900 000 Ft

1224 Budapest 22. kerület

HZ047403 | 4 szoba | 96 m²
130 000 000 Ft

1224 Budapest 22. kerület

HZ081299 | 4 szoba | 96 m²
130 000 000 Ft
Grélinger Réka
Arany fokozatú értékesítő
Kapcsolatfelvétel
Hívom
Kapcsolatfelvétel
Kérjen egy személyes megtekintést az ingatlanra a Duna House értékesítőjétől
Válassz egy időpontot