.
Eladó Lakás 1121 Budapest 12. kerület
H507188
Eladó
Lakás
Prémium
95 000 000 Ft
1121 Budapest 12. kerület
2 szoba
33 m²
Tégla
Törlesztőrészlet Ft/hó
THM %
5 megtekintés az elmúlt 7 napban
Leírás
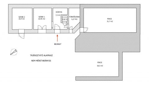
Eladó egy présház jellegű sváb falusi porta és pince együttes a XII. kerületben.

A Svábhegy szőlészeti és borászati hagyományainak egyik utolsó hírnökeként műemléki védelmet élvez.

A présházat lakóházzá alakították, de az eredeti építészeti forma és stílus jegyeket megőrizték.
Megmaradt a látványos pince és az egykori helyi szőlő művelési kultúrára jellemző támfalas-teraszos kert.

Az 1830-as években épült házban két társasházi lakás található külön lekerített kertrésszel. A hangulatos, ősfás, teraszos kert kb. 900 m2.

Az eladásra kerülő ingatlan:

- 33 m2-es 2 szobás lakás. (Az egyik szoba jelenleg az udvarról nyílik és teljesen felújítandó.)
- 2 db pince - összesen 50 m2 (Az egyik pince elölről nyitott és felújítást-helyreállítást igényel. Feltehetőleg ennek mérete a jelenleg láthatónál jóval nagyobb)
- kő és tégla falazat (60 cm vastag) 5 cm hungarocell szigeteléssel.
- elektromos fűtés
- buszmegálló 300 méteren belül található. (21, 21A, 212, 221)
- fogaskerekű megálló 400 méter
- bevásárlási lehetőség 400 méter

Alkalmas lehet idegenforgalmi - vendéglátási célra, borpincének, rendezvény helyszínnek.
Mutass többet
Általános adatok
Ingatlan állapota:
3 - Lakható
Építés éve:
1830
Emelet:
Földszint
Emeletek száma:
0
Lift:
Nincs Lift
Épület külső állapota:
3 - Lakható
Épület belső állapota:
3 - Lakható
Fényviszonyok:
Nincs megadva
Parkolás:
Nincs
Erkély/Terasz:
Nincs
Nézet:
Nincs megadva
Tájolás:
ÉK
Fűtés:
Energetikai besorolás:
Nincs megadva
Lakáshitel kalkulátor – Spórolj velünk!
Kalkulálj most, és keresd pénzügyi szakértőinket, akik ingyenes tanácsadással segítenek megtalálni a számodra legjobb megoldást!

Hasonló ingatlanok

1125 Budapest 12. kerület Buszmegállótól 200 m-re, parkosított környezetben

LK047086 | 2 szoba | 53 m²
93 000 000 Ft

1122 Budapest 12. kerület Kissvábhegyen teraszos, panorámás design lakás teljes berendezéssel

LK062569 | 3 szoba | 60 m²
138 000 000 Ft

1121 Budapest 12. kerület

LK099425 | 2 szoba | 50 m²
96 000 000 Ft

1124 Budapest 12. kerület Fodor utcában, teljes körűen felújított, erkélyes, világos

LK082271 | 2 szoba | 43 m²
88 000 000 Ft

1123 Budapest 12. kerület ****AMERIKAI KONYHÁS NAPPALI, 2 HÁLÓ, 2 FÜRDŐ****

LK098395 | 3 szoba | 60 m²
89 990 000 Ft

1122 Budapest 12. kerület

LK098250 | 2 szoba | 57 m²
129 900 000 Ft

1126 Budapest 12. kerület Beethoven utca

LK069016 | 2 szoba | 60 m²
79 900 000 Ft

1122 Budapest 12. kerület Városmajornál, Maros utcában, 3 szobás újszerű lakás

LK071450 | 3 szoba | 53 m²
109 900 000 Ft

1123 Budapest 12. kerület

LK012399 | 2 szoba | 54 m²
87 000 000 Ft

1122 Budapest 12. kerület Erkélyes, 2 szobás lakás a Kissvábhegyen Eladó

LK084503 | 2 szoba | 60 m²
109 990 000 Ft

1123 Budapest 12. kerület

UZ071194 | 64 m²
99 990 000 Ft

1125 Budapest 12. kerület

H500205 | 3 szoba | 109 m²
150 900 000 Ft

1122 Budapest 12. kerület

LK081421 | 4 szoba | 66 m²
165 000 000 Ft

1122 Budapest 12. kerület

H501140 | 4 szoba | 111 m²
174 900 000 Ft

1125 Budapest 12. kerület

H501370 | 4 szoba | 107 m²
144 900 000 Ft

1126 Budapest 12. kerület

LK076540 | 4 szoba | 80 m²
139 900 000 Ft

1122 Budapest 12. kerület Krisztinaváros szívében 102 m2 3 szobás 7,5 m2 terasszal

LK030408 | 3 szoba | 102 m²
148 900 000 Ft

1125 Budapest 12. kerület Kivételes panorámás ingatlan a Diana utcában!

LK022997 | 3 szoba | 73 m²
174 900 000 Ft

1122 Budapest 12. kerület

H504541 | 3 szoba | 68 m²
119 000 000 Ft

1125 Budapest 12. kerület Zöld oázis a 12.kerület szivében,eladó kertkapcsolatos lakás

LK099605 | 1 szoba | 41 m²
78 900 000 Ft
Menyhárt Zsolt
Ezüst fokozatú értékesítő
Kapcsolatfelvétel
Hívom
Kapcsolatfelvétel
Kérjen egy személyes megtekintést az ingatlanra a Duna House értékesítőjétől
Válassz egy időpontot