.
Eladó Üzlethelyiség 1201 Budapest 20. kerület , Kiváló lokáció, nagy- és kisker, irodaház egy épületben.
UZ088209
Eladó
Utcai bejárattal
1 200 000 000 Ft
1201 Budapest 20. kerület , Kiváló lokáció, nagy- és kisker, irodaház egy épületben.
3216 m²
2 megtekintés az elmúlt 7 napban
Leírás
Frekventált részen irodaépület, üzlethelyiséggel és nagykereskedelmi raktárral!

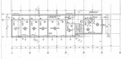
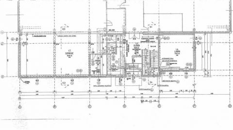
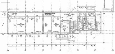
XX. kerületben főútvonal mellett kínálunk megvételre egy 6097 négyzetméteres telken elhelyezkedő, 3216 négyzetméter területű, 4 szintes irodaépületet, a hozzá tartozó nagy és kiskereskedelmi helyiségekkel, valamint 144 négyzetméteres külső raktárral együtt. Az ingatlan két utcáról megközelíthető.  

A földszinti nagykereskedelmi raktár, amely bemutatóteremként is, de többféle tevékenységre is hasznosítható 2628 négyzetméter területű.

Az irodák az emeleti szinteken helyezkednek el 3 szinten és 588 négyzetméteren.

Az ingatlan hűtését és fűtését, hűtő-fűtő klíma látja el, de rendelkezésre ál egy (használaton kívüli) gázkazán.

Extrák:

-    kamera rendszer

-    riasztó

-    recepció

-    hatalmas kültéri parkoló dolgozók és vendégek részére.

A nagykereskedelmi raktár jelenleg bérbe van adva, a bérlők maradnának és az irodaépület, valamint az üzlethelyiség is visszabérlésre kerülne értékesítés esetén, amennyiben befektető vásárolja meg.

Visszabérlés nélkül is eladó az ingatlan.
Az ingatlan össztömeg korlátozás nélkül megközelíthető zónában helyezkedik el.

Ha felkeltette az érdeklődését, további információkért, megtekintésért várom megkeresését elérhetőségeimen.

Mutass többet
Általános adatok
Üzlethelyiség állapota:
4 - Jó
Építés éve:
1980
Lift:
Nincs Lift
Épület külső állapota:
4 - Jó
Épület belső állapota:
4 - Jó
Parkolás:
Üzlethelyiség saját parkolójában
Portál szélessége:
40.00 m
Fűtés:
Egyéb,Klíma
Energetikai besorolás:
Nincs megadva
Keresd szakértőinket a legmegfelelőbb pénzügyi megoldásért!
A kapcsolatfelvétel nem jelent számodra semmilyen kötelezettséget.

Hasonló ingatlanok

Hortobágyi Zsuzsanna
Örökös tag értékesítő
Kapcsolatfelvétel
Hívom
Kapcsolatfelvétel
Kérjen egy személyes megtekintést az ingatlanra a Duna House értékesítőjétől
Válassz egy időpontot