Kivételes befektetési lehetőség Budapest III. kerületének közkedvelt, dinamikusan fejlődő részén: eladó egy 511 m²-es, teljesen közművesített, üres építési telek, kész tervdokumentációval és beadott engedélyezési eljárással.
A projekt elvi építési engedéllyel rendelkezik, a végleges engedély várhatóan 2026. március végéig megszerzésre kerül.
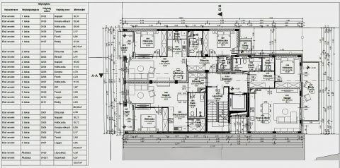
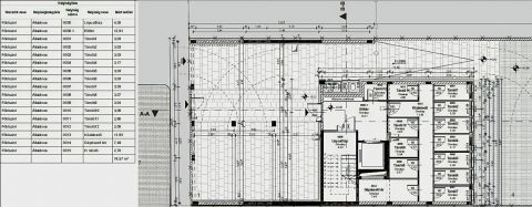
Tervezett fejlesztés főbb paraméterei:
- 5 szintes társasház
- 12 lakás
- Összes nettó lakóterület: 754 m²
- Összes teraszfelület: 100 m²
- 10 db gépkocsi-beálló
- 12 db tároló
A gondosan előkészített terv modern, piacképes lakásmixet biztosít, amely ideális mind értékesítési, mind hosszú távú bérbeadási célra. A környék infrastruktúrája kiváló, jól megközelíthető, keresett lakóövezet, amely stabil befektetési környezetet jelent.
A telek teljes közműellátottsággal rendelkezik, így a kivitelezés az engedély megszerzését követően rövid időn belül megkezdhető.
Ideális választás fejlesztők, beruházók számára, akik egy előkészített, engedélyezési fázisban lévő, azonnal továbbvihető projektet keresnek Budapest egyik legnépszerűbb kerületében.
További részletekért és a tervdokumentáció megismeréséért keressen bizalommal.
