.
Eladó Telek 1152 Budapest 15. kerület , Rákospalota
TK037120
Eladó
Lakóövezeti telek
Hamarosan jön
Új
75 000 000 Ft
1152 Budapest 15. kerület , Rákospalota
464 m²
Törlesztőrészlet Ft/hó
THM %
0 megtekintés az elmúlt 7 napban
Leírás
ÉPÍTÉSI TELEK TELJES TERVEZÉSI DOKUMENTÁCIÓVAL ELADÓ RÁKOSPALOTÁN! 

Rákospalota dinamikusan fejlődő, új építésű részén kínálom megvételre ezt a kivételes adottságú építési telket, komplett engedélyezett tervdokumentációval!

Itt nem kell hónapokat ügyintézéssel töltenie.
Nem kell tervezőt keresnie.
Nem kell engedélyek után futnia.

Már minden rendelkezésre áll Önnek csak el kell kezdenie az építkezést!

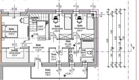
A tervezett építmény

Nagyon nagy előny,hogy a telek egy sarok telek így teljesen külön bejáratunk , építményünk házunk van senki nem zavar senkit!!


Ikerház egyik fele eladó (a teljes terv szerint kivitelezendő, attól eltérni nem lehet).
Kifejezetten előnyös, ha a két fél építkezése párhuzamosan halad.

Alapterület: 141 nm

Földszint:

-Tágas amerikai konyhás nappali + étkező

-Háztartási helyiség

-Fedett terasz

Emelet:

-3 külön nyíló hálószoba

-Kényelmes fürdőszoba

-Gardróbszoba

Extrák:

Saját, különálló garázs

A belső tér igény szerint alakítható a tervektől el lehet térni (falak elrendezése bizonyos keretek között, burkolatok, színek az új tulajdonos választása szerint)

A tervezésnél kiemelt szempont volt a privát szféra a lakások elszeparáltak, nem zavarják egymás életterét

Környezet és lokáció

A telek a Szilas-patak mentén található zöldövezeti, nyugodt, rendezett környezetben.
Kizárólag új építésű házak veszik körül.

Kiváló közlekedés:

Buszjárat a Régi Fóti út közelében

Gyors bejutás autóval a belvárosba

Az M3-as autópálya és az M0-s autóút percek alatt elérhető

Kinek ajánlom?

Családoknak, akik újépítésű, modern otthonra vágynak
Befektetőknek, akik értéknövekedő környéken gondolkodnak
Azoknak, akik időt és energiát szeretnének spórolni a teljes tervezési folyamat kihagyásával

Ez nem egy egyszerű telek ez egy előkészített lehetőség.

További információért és a tervdokumentáció megtekintéséért keressen bizalommal!
Független Hiteltanácsadás, Hitel Csok Babaváró ingyenes ügyintézése!
Mutass többet
Általános adatok
Víz:
Telekhatárnál
Gáz:
Telekhatárnál
Villany:
Telekhatárnál
Csatorna:
Telekhatárnál
Hamarosan jön
A ”Hamarosan jön” státuszú ingatlanok esetében jelenleg még folyamatban vannak a jogi és egyéb ellenőrzési folyamatok, így azok még nem teljesültek maradéktalanul. A Duna House Franchise Kft. és annak hálózatában tevékenykedők nem vállalnak felelősséget azért, hogy az adott hirdetés mikor kerül ”aktív” státuszba, vagy aktív státuszba kerül-e végül. A részletekről érdeklődjenek az adott hirdetésnél található DH partner értékesítői elérhetőségeken.
Mutass többet
Lakáshitel kalkulátor – Spórolj velünk!
Kalkulálj most, és keresd pénzügyi szakértőinket, akik ingyenes tanácsadással segítenek megtalálni a számodra legjobb megoldást!

Hasonló ingatlanok

1152 Budapest 15. kerület

TK041104 | 148 m²
25 900 000 Ft

1152 Budapest 15. kerület

TK069799 | 1279 m²
79 000 000 Ft

1152 Budapest 15. kerület

T040674 | 1427 m²
99 000 000 Ft
Czira Magdolna
Arany fokozatú értékesítő
Kapcsolatfelvétel
Hívom
Kapcsolatfelvétel
Kérjen egy személyes megtekintést az ingatlanra a Duna House értékesítőjétől
Válassz egy időpontot