.
Eladó Lakás 1022 Budapest 2. kerület
PR036046/LK/26165
Eladó
Lakás
Hamarosan jön
Újépítésű
359 125 000 Ft
1022 Budapest 2. kerület
3 szoba
93 m²
Tégla
Törlesztőrészlet Ft/hó
THM %
0 megtekintés az elmúlt 7 napban
Leírás
...

Eladó prémium kategóriás, panorámás lakás a II. kerületben

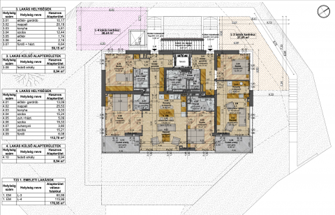
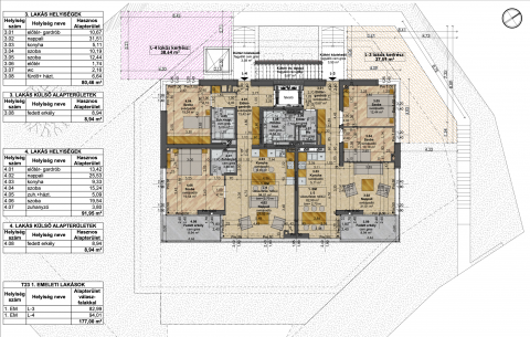
Budapest egyik legkedveltebb, csendes, zöldövezeti részén, a II. kerületben kínálunk eladásra egy 91 m²-es, első emeleti, DélNyugat tájolású, panorámás lakást, melyhez 9 m²-es fedett erkély, gépkocsibeálló és tároló is tartozik. Az ingatlan egy háromszintes, exkluzív, hétlakásos társasházban található, amely modern műszaki megoldásokkal és prémium anyaghasználattal készül.

Az épület
A Budapest II. kerületében, a Tulipán utcában található társasház magas műszaki és esztétikai színvonalon épül, A+ energetikai besorolású épület. A lakók kényelmét és biztonságát kamerarendszer, távfelügyelettel ellátott riasztórendszer, tűzjelző, valamint IP-alapú kamerás kaputelefon garantálja. Az épületet díszkert, automata öntözőrendszer, és kültéri világítás veszi körül, amely a természetközeli életérzést erősíti. Minden lakáshoz elektromos autótöltésre előkészített parkolóhely is tartozik.

A lakás leírása
A lakás átgondolt, praktikus elrendezésű: tágas amerikai konyhás nappali, két különálló hálószoba, két fürdőszoba, közlekedőgardróbfolyosó és egy 9 m²-es fedett erkély tartozik hozzá, ahonnan lenyűgöző panoráma nyílik a Budai-hegyekre.
A belső terekben prémium minőségű belső ajtók, szaniterek, valamint burkolatok kerülnek beépítésre. A padlófűtés és mennyezeti hűtésfűtés Daikin hőszivattyús rendszerrel működik, kiegészítve Viessmann kondenzációs kazánnal.
A helyiségek hőmérséklete helyiségenként egyedileg szabályozható az okostelefonról is vezérelhető NGBS termosztát rendszerrel. A lakásban okosotthon rendszer kerül előkészítésre.

A lakás a szinten található szomszédos, 80 m²-es lakással igény esetén közvetlenül egybenyitható, így összesen közel 171 m²-es, egyedi elrendezésű, tágas otthon alakítható ki. Az egybenyitott, együttesen megvásárolható lakások ideális választás akár nagyobb családoknak, kétgenerációs megoldásként, vagy befektetési célra.

Műszaki jellemzők

  • Hőszivattyú: Daikin központi rendszer, padló- és mennyezeti hőleadással
  • Kiegészítő fűtés: Viessmann kondenzációs kazán
  • Energiaosztály: A+
  • Hőszigetelés: Austrotherm XPS és PIR rétegek
  • Nyílászárók: alumínium Schüco rendszer, 4 rétegű, betörésálló üvegezéssel
  • Árnyékolás: alumínium zsaluzia/redőny, távirányítóval, automatikus vezérlés előkészítéssel
  • Burkolatok: Flaviker prémium greslapok, tölgy szalagparketta
  • Szaniterek: Duravit / Laufen
  • Csaptelepek: Grohe / Hansgrohe
  • Biztonság: riasztó, kamerarendszer, biztonsági bejárati ajtó
  • Okosvezérlés: helyiségenkénti termosztátok, mobilról vezérelhetők
  • Kert: díszkert automata locsolórendszerrel, kültéri világítással

A környék
A lakás kiváló közlekedésű, mégis zöldövezeti elhelyezkedésű: a környéket csendes utcák, elegáns családi házak és friss levegő jellemzik. Rövid sétatávolságban elérhetők iskolák, óvodák, bevásárlási lehetőségek és tömegközlekedés. A környék biztonságos, barátságos, és a Budai-hegyek természetközeli atmoszféráját kínálja a mindennapokban.

Érdeklődés esetén keressen bizalommal, akár hétvégén is!

Mutass többet
Általános adatok
Ingatlan állapota:
6 - Új. ép.
Építés éve:
2026
Emelet:
1
Emeletek száma:
3
Lift:
Hívó
Épület külső állapota:
6 - Új. ép.
Épület belső állapota:
6 - Új. ép.
Fényviszonyok:
Nincs megadva
Parkolás:
Nincs
Erkély/Terasz:
Van
Nézet:
Nincs megadva
Tájolás:
DNY
Fűtés:
Mennyezeti hűtés-fűtés,Padlófűtés,Hőszivattyú
Energetikai besorolás:
A+
Hamarosan jön
A ”Hamarosan jön” státuszú ingatlanok esetében jelenleg még folyamatban vannak a jogi és egyéb ellenőrzési folyamatok, így azok még nem teljesültek maradéktalanul. A Duna House Franchise Kft. és annak hálózatában tevékenykedők nem vállalnak felelősséget azért, hogy az adott hirdetés mikor kerül ”aktív” státuszba, vagy aktív státuszba kerül-e végül. A részletekről érdeklődjenek az adott hirdetésnél található DH partner értékesítői elérhetőségeken.
Mutass többet
Lakáshitel kalkulátor – Spórolj velünk!
Kalkulálj most, és keresd pénzügyi szakértőinket, akik ingyenes tanácsadással segítenek megtalálni a számodra legjobb megoldást!

Hasonló ingatlanok

1025 Budapest 2. kerület

LK022664 | 2 szoba | 64 m²
187 000 000 Ft

1024 Budapest 2. kerület

LK082019 | 174 m²
220 000 000 Ft

1028 Budapest 2. kerület Vízmosás/Patakhegyi u.

LK062628 | 4 szoba | 158 m²
198 000 000 Ft

1028 Budapest 2. kerület Vízmosás u./Patakhegyi u.

LK017634 | 4 szoba | 153 m²
239 000 000 Ft

1023 Budapest 2. kerület Rózsadomb lábánál

PR096917/LK/18170 | 3 szoba | 108 m²
425 000 000 Ft

1022 Budapest 2. kerület Rózsakert közelében

LK023330 | 5 szoba | 123 m²
299 000 000 Ft

1023 Budapest 2. kerület

LK023881 | 5 szoba | 155 m²
542 000 000 Ft

1026 Budapest 2. kerület Elegáns, letisztult design lakás Pasaréten!

LK080150 | 2 szoba | 54 m²
129 900 000 Ft

1021 Budapest 2. kerület Hárshegyen prémium újépítésű teraszos lakás!

LK012767 | 4 szoba | 145 m²
450 000 000 Ft

1021 Budapest 2. kerület Hárshegyen prémium újépítésű teraszos ,KERTKAPCSOLATOS lakás!

LK087344 | 3 szoba | 138 m²
560 000 000 Ft

1021 Budapest 2. kerület Hárshegyen prémium újépítésű teraszos ,KERTKAPCSOLATOS lakás!

LK075321 | 4 szoba | 104 m²
470 000 000 Ft

1021 Budapest 2. kerület Lipótmező- Hűvösvölgy határán új építésű lakások!

HZ074191 | 5 szoba | 147 m²
447 200 000 Ft

1021 Budapest 2. kerület Lipótmező-Hűvösvölgy határán új építésű lakások

LK020518 | 4 szoba | 97 m²
296 400 000 Ft

1021 Budapest 2. kerület Lipótmező határán új építésű lakások.

LK099841 | 3 szoba | 83 m²
247 500 000 Ft

1025 Budapest 2. kerület

LK032111 | 4 szoba | 136 m²
225 000 000 Ft

1028 Budapest 2. kerület

HZ056761 | 5 szoba | 157 m²
249 000 000 Ft

1021 Budapest 2. kerület

LK087746 | 6 szoba | 115 m²
199 990 000 Ft

1027 Budapest 2. kerület Erkélyes, luxus design lakás Buda szívében!

LK032007 | 2 szoba | 83 m²
164 000 000 Ft

1025 Budapest 2. kerület Eladó egy Luxus lakás a 2.kerületben,belső lifttel!!

HZ065449 | 5 szoba | 398 m²
674 000 000 Ft

1021 Budapest 2. kerület XII. KERÜLET FREKVENTÁLT RÉSZÉN FÖLDSZINTI LAKÁS

LK014481 | 4 szoba | 108 m²
162 000 000 Ft
Szieben Katica
Örökös tag értékesítő
Kapcsolatfelvétel
Hívom
Kapcsolatfelvétel
Kérjen egy személyes megtekintést az ingatlanra a Duna House értékesítőjétől
Válassz egy időpontot