.
Eladó Ház 7011 Alap , 7011 Alap, Alap
M326027
Eladó
Családi ház
Prémium
20 000 000 Ft
7011 Alap , 7011 Alap, Alap
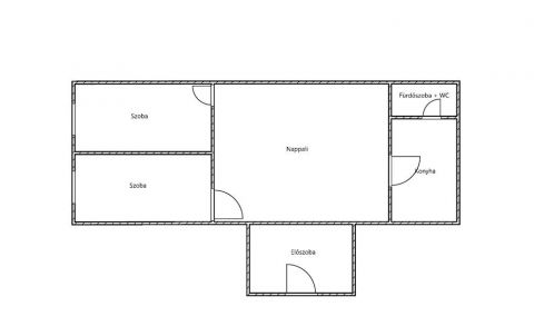
3 szoba
69 m²
1903 m² telek
Törlesztőrészlet Ft/hó
THM %
6 megtekintés az elmúlt 7 napban
Leírás
Fejér vármegyében, Alapon eladóvá vált egy 69 m2-es vegyes falazatú, cseréptetővel ellátott családi ház. Az ingatlan jogilag rendezett, teher- és tartozásmentes.
A házban az ablakok illetve ajtók cserélve lettek. Az ingatlan felújítást igényel. Víz, villany és szennyvíz akna van.
A házhoz tartozik egy melléképület is.
A telek 1903 m2-es.
Székesfehérvár csupán 50 km, a Balaton legközelebbi pontja pedig mindössze 40 km távolságra érhető el.  Amennyiben megtetszett Önnek a hirdetés és bármi kérdése lenne, kérem keressen bizalommal. Köszönöm!
Mutass többet
Általános adatok
Építés éve:
1950
Belső szintek száma:
Nincs megadva
Épület külső állapota:
2 - Felújítandó
Épület belső állapota:
Nincs megadva
Fényviszonyok:
Napfényes
Nézet:
Nincs megadva
Fűtés:
Egyéb
Szerkezet:
Egyéb
Energetikai besorolás:
Nincs megadva
Víz:
Nincs megadva
Gáz:
Nincs megadva
Villany:
Nincs megadva
Csatorna:
Nincs megadva
Lakáshitel kalkulátor – Spórolj velünk!
Kalkulálj most, és keresd pénzügyi szakértőinket, akik ingyenes tanácsadással segítenek megtalálni a számodra legjobb megoldást!

Hasonló ingatlanok

7011 Alap központban

HZ062964 | 2 szoba | 76 m²
11 500 000 Ft

7011 Alap 7011 Alap, Csendes

M315960 | 2 szoba | 96 m²
22 000 000 Ft

7011 Alap

HZ058594 | 4 szoba | 75 m²
21 900 000 Ft

7011 Alap kétgenerációs ház

HZ025503 | 4 szoba | 97 m²
39 990 000 Ft
Vincze Sándorné Ágnes
Briliáns fokozatú értékesítő
Kapcsolatfelvétel
Hívom
Kapcsolatfelvétel
Kérjen egy személyes megtekintést az ingatlanra a Duna House értékesítőjétől
Válassz egy időpontot