.
Eladó Lakás 1152 Budapest 15. kerület , ÚJÉPÍTÉSŰ lakás, 4 lakásos társasházban, XV. kerületben!
LK062363
Eladó
Társasház
104 900 000 Ft
1152 Budapest 15. kerület , ÚJÉPÍTÉSŰ lakás, 4 lakásos társasházban, XV. kerületben!
3 szoba
77 m²
Tégla
Törlesztőrészlet Ft/hó
THM %
6 megtekintés az elmúlt 7 napban
Leírás
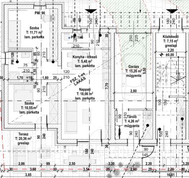
A 15. kerületben, kítűnő közlekedéssel, közel az M3 bevezetőhöz, de mégis csendes, nyugodt, frissen alakított újépítésű részen épül ez a 4 lakásos társasház, két emeleti és két földszinti lakás kialakításával.

A földszinti lakásokhoz kertkapcsolat tartozik és az ingatlanon belül kialakított garázs, az emeleti lakásokhoz felszíni beálló kapcsolódik majd. A földszinti lakásokhoz fedett terasz, míg az emeleti lakásokhoz lakásonként egy tágas erkély és egy loggia is kialakításra kerül. A földszinti lakások nappali + 2 szobás kialakításúak, az emeleti lakások pedig nappali + 3 szoba kínálta tágas terekkel várják leendő lakóikat. Az energetikai besorolása A+-os, a fűtés hőszívattyús rendszerrel lesz kialakítva, padlófűtéssel.

A tetőtérben 4 tároló kerül megépítésre, melyek darabonként 2,5 MFt-ért lesznek megvásárolhatóak igény esetén.

Otthon Start hitellel is megvásárolhatóak a lakások!

Ez a lakás a földszinten helyezkedik el, nappali + 2 hálós, nagy teraszos kialakítással, saját garázzsal az ingatlanon belül és tartozik hozzá egy közel 100 nm-es kizárólagos használatú kert is.

Az építkezés 2026. márciusában kezdődik el, már most minden engedély rendelkezésre áll.

A lakások átadása 2027. szeptemberében várható.
Mutass többet
Általános adatok
Ingatlan állapota:
6 - Új. ép.
Építés éve:
2026
Emelet:
Földszint
Emeletek száma:
1
Lift:
Nincs Lift
Épület külső állapota:
6 - Új. ép.
Épület belső állapota:
6 - Új. ép.
Fényviszonyok:
Napfényes
Parkolás:
Van
Erkély/Terasz:
Van
Nézet:
Kert/belső kert
Tájolás:
DNY
Fűtés:
Hőszivattyú,Padlófűtés
Energetikai besorolás:
A+
Lakáshitel kalkulátor – Spórolj velünk!
Kalkulálj most, és keresd pénzügyi szakértőinket, akik ingyenes tanácsadással segítenek megtalálni a számodra legjobb megoldást!

Hasonló ingatlanok

1153 Budapest 15. kerület

HZ084433 | 2 szoba | 53 m²
49 900 000 Ft

1155 Budapest 15. kerület KERTVÁROSI KÖRNYEZETBEN CSODÁS PANORÁMA

LK081849 | 2 szoba | 45 m²
69 500 000 Ft

1151 Budapest 15. kerület Rákospalotán eladó tégla lakás

LK070294 | 3 szoba | 45 m²
39 900 000 Ft

1152 Budapest 15. kerület SORHÁZI LAKÁS SAJÁT KERTRÉSSZEL!

HZ097087 | 1 szoba | 40 m²
32 900 000 Ft

1158 Budapest 15. kerület Hermina

LK042947 | 3 szoba | 71 m²
79 900 000 Ft

1157 Budapest 15. kerület

LK062248 | 3 szoba | 71 m²
69 900 000 Ft

1157 Budapest 15. kerület Páskom park

LK055225 | 3 szoba | 64 m²
72 300 000 Ft

1154 Budapest 15. kerület

LK079417 | 2 szoba | 44 m²
48 000 000 Ft

1152 Budapest 15. kerület

H505209 | 3 szoba | 84 m²
99 500 000 Ft

1153 Budapest 15. kerület 1153 Budapest 15, kertváros

M313516 | 2 szoba | 89 m²
73 000 000 Ft

1153 Budapest 15. kerület 1153 Budapest 15, kertváros

M313732 | 2 szoba | 72 m²
59 000 000 Ft

1153 Budapest 15. kerület 1153 Budapest 15, kertváros

M313816 | 3 szoba | 149 m²
79 000 000 Ft

1158 Budapest 15. kerület

H508350 | 3 szoba | 57 m²
66 900 000 Ft

1158 Budapest 15. kerület Madách utca Lidl Közelében

LK039555 | 2 szoba | 35 m²
54 900 000 Ft

1158 Budapest 15. kerület Pestújhely csendes utcájában, Otthon Start hitelre alkalmas

LK072979 | 3 szoba | 48 m²
63 000 000 Ft

1156 Budapest 15. kerület

LK024204 | 2 szoba | 47 m²
63 500 000 Ft

1152 Budapest 15. kerület Rákospalotán, 3 lakásos udvar, nappali + 4 szoba, saját kert

HZ031770 | 5 szoba | 75 m²
75 000 000 Ft

1153 Budapest 15. kerület ERKÉLYES 3 SZOBÁS LAKÁS AKÁR 3%-OS HITELRE!!

LK069924 | 3 szoba | 70 m²
89 990 000 Ft

1152 Budapest 15. kerület

H510560 | 3 szoba | 87 m²
74 900 000 Ft

1157 Budapest 15. kerület Panelprogramos, panorámás, 4 szoba, jó állapot!

LK031465 | 4 szoba | 69 m²
76 490 000 Ft
Domjánné Puskás Margit
Örökös tag franchise partner
Kapcsolatfelvétel
Hívom
Kapcsolatfelvétel
Kérjen egy személyes megtekintést az ingatlanra a Duna House értékesítőjétől
Válassz egy időpontot