.
Eladó Lakás 1153 Budapest 15. kerület
H514338
Eladó
Lakás
Prémium
115 000 000 Ft
1153 Budapest 15. kerület
3 szoba
86 m²
Tégla
Törlesztőrészlet Ft/hó
THM %
9 megtekintés az elmúlt 7 napban
Leírás
Fedezd fel ezt a kivételes lehetőséget, amely ideális választás fiatalok és családosok számára, akik egy tágas, kényelmes otthont keresnek Budapest 15. kerületében, Rákospalotán!
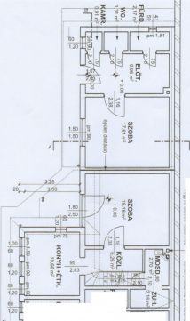
Ez a 86 nm-es lakás nemcsak a méretével, hanem a hangulatos kertkapcsolatos kialakításával is elvarázsol. A három szobás ingatlanban két fürdőszoba található, így a család minden tagja számára kényelmes és praktikus megoldást kínál. A 16 nm-es terasz pedig a nyári estéken a pihenés és a szórakozás tökéletes helyszíne lehet, ahol baráti összejöveteleket rendezhetsz vagy csak élvezheted a csendet és a friss levegőt. A lakás állapota nagyon jó, a gáz (cirko) fűtés és a klíma biztosítja a kellemes hőmérsékletet télen-nyáron. Az ingatlan elhelyezkedése is kiemelkedő, hiszen a környék csendes, biztonságos, és remek közlekedési lehetőségekkel rendelkezik.
A közelben található buszmegállók gyors hozzáférést biztosítanak Budapest belvárosához.
A környék rengeteg előnyt kínál. Az infrastruktúra is kiváló, hiszen boltok, iskolák, óvodák és orvosi rendelők mind megtalálhatók a közelben, így minden szükséges szolgáltatás könnyen elérhető.
A környék barátságos lakókkal és családias légkörrel rendelkezik, ami még inkább vonzóvá teszi ezt az ingatlant. Ez a lakás nemcsak egy új otthon lehet számodra, hanem egy remek befektetés is, hiszen a kertkapcsolatos kialakítás és a kiváló lokáció miatt a jövőbeli értéknövekedés biztosított. Ne habozz, lépj kapcsolatba velem bizalommal, ha kérdéseid lennének vagy szeretnéd megtekinteni ezt a fantasztikus ingatlant!
Mutass többet
Általános adatok
Ingatlan állapota:
4 - Jó
Építés éve:
1960
Emelet:
Földszint
Emeletek száma:
0
Lift:
Nincs Lift
Épület külső állapota:
4 - Jó
Épület belső állapota:
4 - Jó
Fényviszonyok:
Nincs megadva
Parkolás:
Nincs
Erkély/Terasz:
Van
Nézet:
Panoráma
Tájolás:
D
Fűtés:
Gáz cirkó
Energetikai besorolás:
Nincs megadva
Lakáshitel kalkulátor – Spórolj velünk!
Kalkulálj most, és keresd pénzügyi szakértőinket, akik ingyenes tanácsadással segítenek megtalálni a számodra legjobb megoldást!

Hasonló ingatlanok

1153 Budapest 15. kerület

HZ084433 | 2 szoba | 53 m²
49 900 000 Ft

1155 Budapest 15. kerület KERTVÁROSI KÖRNYEZETBEN CSODÁS PANORÁMA

LK081849 | 2 szoba | 45 m²
69 500 000 Ft

1151 Budapest 15. kerület Rákospalotán eladó tégla lakás

LK070294 | 3 szoba | 45 m²
39 900 000 Ft

1152 Budapest 15. kerület SORHÁZI LAKÁS SAJÁT KERTRÉSSZEL!

HZ097087 | 1 szoba | 40 m²
32 900 000 Ft

1158 Budapest 15. kerület Hermina

LK042947 | 3 szoba | 71 m²
79 900 000 Ft

1157 Budapest 15. kerület

LK062248 | 3 szoba | 71 m²
69 900 000 Ft

1157 Budapest 15. kerület Páskom park

LK055225 | 3 szoba | 64 m²
72 300 000 Ft

1154 Budapest 15. kerület

LK079417 | 2 szoba | 44 m²
48 000 000 Ft

1152 Budapest 15. kerület

H505209 | 3 szoba | 84 m²
99 500 000 Ft

1153 Budapest 15. kerület 1153 Budapest 15, kertváros

M313516 | 2 szoba | 89 m²
73 000 000 Ft

1153 Budapest 15. kerület 1153 Budapest 15, kertváros

M313732 | 2 szoba | 72 m²
59 000 000 Ft

1153 Budapest 15. kerület 1153 Budapest 15, kertváros

M313816 | 3 szoba | 149 m²
79 000 000 Ft

1158 Budapest 15. kerület

H508350 | 3 szoba | 57 m²
66 900 000 Ft

1158 Budapest 15. kerület Madách utca Lidl Közelében

LK039555 | 2 szoba | 35 m²
54 900 000 Ft

1158 Budapest 15. kerület Pestújhely csendes utcájában, Otthon Start hitelre alkalmas

LK072979 | 3 szoba | 48 m²
63 000 000 Ft

1156 Budapest 15. kerület

LK024204 | 2 szoba | 47 m²
63 500 000 Ft

1152 Budapest 15. kerület Rákospalotán, 3 lakásos udvar, nappali + 4 szoba, saját kert

HZ031770 | 5 szoba | 75 m²
75 000 000 Ft

1153 Budapest 15. kerület ERKÉLYES 3 SZOBÁS LAKÁS AKÁR 3%-OS HITELRE!!

LK069924 | 3 szoba | 70 m²
89 990 000 Ft

1152 Budapest 15. kerület

H510560 | 3 szoba | 87 m²
74 900 000 Ft

1157 Budapest 15. kerület Panelprogramos, panorámás, 4 szoba, jó állapot!

LK031465 | 4 szoba | 69 m²
76 490 000 Ft
Székely György.
Platina fokozatú franchise partner
Kapcsolatfelvétel
Hívom
Kapcsolatfelvétel
Kérjen egy személyes megtekintést az ingatlanra a Duna House értékesítőjétől
Válassz egy időpontot