.
Eladó Lakás 1096 Budapest 9. kerület , Egyetemeknél nappali+2 hálós, újépítésű, loggiás lakás
LK041352
Eladó
Társasház
Új
133 410 900 Ft
1096 Budapest 9. kerület , Egyetemeknél nappali+2 hálós, újépítésű, loggiás lakás
3 szoba
68 m²
Tégla
Törlesztőrészlet Ft/hó
THM %
6 megtekintés az elmúlt 7 napban
Leírás
DIÁKOKNAK, CSALÁDOKNAK, de BEFEKTETŐKNEK is a könnyű HASZNOSÍTHATÓSÁGA miatt.

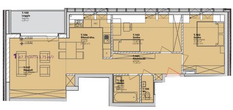
Egyetemek közelében költözhető, nappali+2 hálós, loggiás lakás eladó

2025-ös építésű társasház legfelső, 6. emeletén eladó ez az amerikai konyhás nappali + 2 hálós elosztású, 10 m2 loggiás lakás.
Jól bútorozható terek jellemzik.
DK-i tájolásának és magas elhelyezkedésének köszönhetően napfényes, csendes.
Hőszivattyú és külön páramentesítő is növeli a komfortérzetet.
Azonnal költözhető, a használatba vételi engedély folyamatban van,hamarosan meglesz (2026.03.)
Teremgarázshely, tároló még elérhető!
Mutass többet
Általános adatok
Ingatlan állapota:
6 - Új. ép.
Építés éve:
2025
Emelet:
6
Emeletek száma:
6
Lift:
Hívó
Épület külső állapota:
6 - Új. ép.
Épület belső állapota:
6 - Új. ép.
Fényviszonyok:
Napfényes
Parkolás:
Van
Erkély/Terasz:
Van
Nézet:
Kert/belső kert
Tájolás:
DK
Fűtés:
Hőszivattyú
Energetikai besorolás:
A+
Lakáshitel kalkulátor – Spórolj velünk!
Kalkulálj most, és keresd pénzügyi szakértőinket, akik ingyenes tanácsadással segítenek megtalálni a számodra legjobb megoldást!

Hasonló ingatlanok

1092 Budapest 9. kerület

LK077189 | 4 szoba | 83 m²
109 900 000 Ft

1095 Budapest 9. kerület Corvin negyed közelében iroda és lakótérként is funkcionáló üzlethelyiség eladó

UZ016321 | 3 szoba | 46 m²
55 900 000 Ft

1091 Budapest 9. kerület

UZ051991 | 125 m²
34 990 000 Ft

1093 Budapest 9. kerület AIRBNB KÉPES 121 NÉGYZETMÉTERES LAKÁS ERKÉLLYEL A BÁLNA MELLETT

LK018251 | 5 szoba | 121 m²
239 000 000 Ft

1095 Budapest 9. kerület Luxus környezetben, kiemelt fittness szolgáltatásokat nyújtó társasházban, magasemeleti, panorámás

LK012675 | 2 szoba | 57 m²
120 000 000 Ft

1091 Budapest 9. kerület

LK037234 | 3 szoba | 89 m²
95 500 000 Ft

1093 Budapest 9. kerület Bakáts tér

LK090599 | 4 szoba | 112 m²
239 900 000 Ft

1093 Budapest 9. kerület

LK088469 | 2 szoba | 57 m²
76 900 000 Ft

1097 Budapest 9. kerület

LK094026 | 2 szoba | 69 m²
70 000 000 Ft

1092 Budapest 9. kerület

LK032720 | 2 szoba | 55 m²
90 000 000 Ft

1094 Budapest 9. kerület

LK074200 | 2 szoba | 31 m²
51 000 000 Ft

1095 Budapest 9. kerület Szuper kis lakás frekventált helyen

LK011027 | 2 szoba | 47 m²
63 400 000 Ft

1093 Budapest 9. kerület 2 LAKÁS VAGY IRODA a BELVÁROSBAN

LK045350 | 3 szoba | 110 m²
139 000 000 Ft

1097 Budapest 9. kerület 3 SZOBÁS SORHÁZI LAKÁS KERTTEL A 9. KERÜLETBEN!

HZ040613 | 3 szoba | 50 m²
49 800 000 Ft

1092 Budapest 9. kerület Magas minőségben felújított lakás a Ráday utca csendes részé

LK037780 | 3 szoba | 91 m²
179 900 000 Ft

1097 Budapest 9. kerület Allure Residence, 3 szoba, 42nm terasz!

LK025589 | 3 szoba | 111 m²
179 900 000 Ft

1097 Budapest 9. kerület

H502277 | 3 szoba | 87 m²
141 896 019 Ft

1091 Budapest 9. kerület Kálvin térnél 2 felújított erkélyes lakás

LK043382 | 3 szoba | 73 m²
125 000 000 Ft

1096 Budapest 9. kerület Egyetemeknél nagyerkélyes, Nappali+2 hálós, újépítésű lakás

LK093426 | 3 szoba | 68 m²
136 616 340 Ft

1094 Budapest 9. kerület

H505004 | 2 szoba | 45 m²
97 900 000 Ft
Surányi László
Örökös tag értékesítő
Kapcsolatfelvétel
Hívom
Kapcsolatfelvétel
Kérjen egy személyes megtekintést az ingatlanra a Duna House értékesítőjétől
Válassz egy időpontot