.
Eladó Lakás 1013 Budapest 1. kerület
LK037988
Eladó
Lakás
Áresés
Prémium
146 000 000 Ft
1013 Budapest 1. kerület
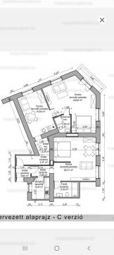
3 szoba
92 m²
Tégla
Törlesztőrészlet Ft/hó
THM %
16 megtekintés az elmúlt 7 napban
Leírás
Két világ egy ajtón belül. Otthon, ami nem csak tér, hanem életérzés
Van egy hely Budán, a Várnegyed lábánál, ahol minden nap egy kicsit másképp indul.
Ahol reggel a fény beszűrődik a tágas terekbe, és az erkélyről a Horváth-kert zöldje nyugtatja meg a gondolatokat.
Ez a 92 nm-es, erkélyes otthon nem csupán egy lakás hanem egy ritka lehetőség, 
két különálló élettérré alakítva. Egy közös előtérből nyílva adja meg azt a szabadságot, amit ma egyre többen keresnek: együtt lenni, mégis külön élni.
Az egyik oldalon egy világos, nagyvonalú sarokszobás apartman erkéllyel, ahol a reggeli kávé valódi pillanattá válik.
A másik oldalon egy másik önálló lakrész, amely tökéletes egy családtagnak, vendégnek, vagy akár egy stabil bevételi forrásnak.
És ami igazán különlegessé teszi:
a város egyik legkeresettebb pontján van mégis elég kilépni az ajtón, és máris a természet ölel körül.
A Horváth-kert hatalmas, zöld tere hív egy sétára, egy kis feltöltődésre, vagy csak egy nyugodt kávéra a közeli hangulatos cukrászdában.
Itt a város zaja háttérbe húzódik, és helyét átveszi az élhető, nyugodt ritmus.
A 1869-ben épült, karakteres ház múltja és hangulata találkozik a jelen kényelmével: új cirkó, klimatizált helyiségek, azonnal használható állapot.
Ez az a lakás, ahol nem kell választanod:
lehet otthon, lehet befektetés és lehet mindkettő egyszerre.
Az ilyen adottságú ingatlanok ritkán kerülnek piacra.
És amikor igen, gyorsan gazdára találnak.





Mutass többet
Általános adatok
Ingatlan állapota:
4 - Jó
Építés éve:
1869
Emelet:
2
Emeletek száma:
3
Lift:
Nincs Lift
Épület külső állapota:
5 - Nagyon jó
Épület belső állapota:
5 - Nagyon jó
Fényviszonyok:
Parkolás:
Nincs
Erkély/Terasz:
Van
Nézet:
Panoráma
Tájolás:
ÉNY
Fűtés:
Gáz cirkó
Energetikai besorolás:
G
Lakáshitel kalkulátor – Spórolj velünk!
Kalkulálj most, és keresd pénzügyi szakértőinket, akik ingyenes tanácsadással segítenek megtalálni a számodra legjobb megoldást!

Hasonló ingatlanok

1013 Budapest 1. kerület

LK493228 | 4 szoba | 89 m²
99 000 000 Ft

1015 Budapest 1. kerület

LK089098 | 3 szoba | 59 m²
118 000 000 Ft

1011 Budapest 1. kerület

LK042447 | 2 szoba | 67 m²
114 900 000 Ft

1012 Budapest 1. kerület Teljes körűen felújított lakás a VÁR alatt

LK059978 | 5 szoba | 128 m²
199 000 000 Ft

1016 Budapest 1. kerület

VL093531 | 170 m²
200 000 000 Ft

1015 Budapest 1. kerület

LK013654 | 3 szoba | 59 m²
118 000 000 Ft

1016 Budapest 1. kerület Gellérthegy, Orom utcai kertkapcsolatos szép lakás eladó

LK036128 | 3 szoba | 80 m²
239 900 000 Ft

1012 Budapest 1. kerület

H500200 | 5 szoba | 128 m²
199 000 000 Ft

1011 Budapest 1. kerület

LK063170 | 3 szoba | 96 m²
231 510 000 Ft

1016 Budapest 1. kerület BUDAI VÁRRA ÖRÖKPANORÁMÁS, DUPLEX PENTHOUSE LAKÁS

LK049790 | 2 szoba | 107 m²
209 000 000 Ft

1013 Budapest 1. kerület

H504270 | 3 szoba | 89 m²
104 900 000 Ft

1016 Budapest 1. kerület

LK041582 | 3 szoba | 81 m²
229 000 000 Ft

1012 Budapest 1. kerület Logodi utca

LK063962 | 4 szoba | 82 m²
149 700 000 Ft

1012 Budapest 1. kerület Logodi utca

LK024172 | 4 szoba | 75 m²
139 700 000 Ft

1011 Budapest 1. kerület

LK017344 | 2 szoba | 40 m²
74 900 000 Ft

1013 Budapest 1. kerület

H507154 | 2 szoba | 72 m²
85 900 000 Ft

1013 Budapest 1. kerület

LK092965 | 2 szoba | 84 m²
169 900 000 Ft

1015 Budapest 1. kerület Hattyú- házban kertre néző akér két egységgé alakítható

LK078927 | 3 szoba | 123 m²
245 000 000 Ft

1016 Budapest 1. kerület Krisztinaváros

LK057291 | 4 szoba | 108 m²
159 000 000 Ft

1011 Budapest 1. kerület PARLAMENTRE ÖRÖK PANORÁMÁS LAKÁS A BEM RAKPARTON

LK089054 | 4 szoba | 133 m²
305 000 000 Ft
Glazov Judit
Briliáns fokozatú értékesítő
Kapcsolatfelvétel
Hívom
Kapcsolatfelvétel
Kérjen egy személyes megtekintést az ingatlanra a Duna House értékesítőjétől
Válassz egy időpontot