.
Eladó Ház 2735 Dánszentmiklós
HZ088459
Eladó
Ikerház
Hamarosan jön
Új
65 000 000 Ft
2735 Dánszentmiklós
4 szoba
71 m²
400 m² telek
Törlesztőrészlet Ft/hó
THM %
3 megtekintés az elmúlt 7 napban
Leírás
PRÉMIUM MINŐSÉGŰ ÚJ ÉPÍTÉSŰ IKERHÁZ FELEK DÁNSZENTMIKLÓS LEGÚJABB LAKÓPARKJÁBAN



Megbízható kivitelezőtől



Várható átadás: 2026. szeptember



Ha olyan új otthont keresel, ahol nemcsak a megjelenés, hanem a műszaki tartalom is valódi értéket képvisel, akkor ez a Dánszentmiklósi lakópark kiváló választás.



A képek látványtervek, melyek a tervezett épületek stílusát és megjelenését mutatják be.

A képek között referencia képek is láthatóak.



A kivitelezést több mint 20 éves szakmai tapasztalattal rendelkező, profi kivitelező végzi, aki hosszú távon is megbízható, minőségi otthonokat épít.







Elérhető ingatlanok



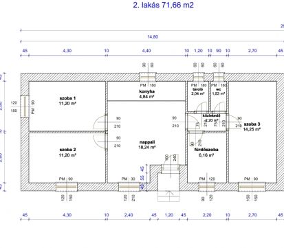
71 nm -es ikerház fél



nappali + 3 hálószoba



400 m² saját telekrész



fedett autóbeálló



Ideális választás fiatal pároknak, kisebb családnak vagy befektetésnek.

PRÉMIUM MŰSZAKI TARTALOM AMI VALÓBAN SZÁMÍT
30 cm vastag téglafalazat
15 cm-es homlokzati hőszigetelés, nemesvakolat záróréteggel
Fa födém
BRAMAC tetőcserép időtálló, minőségi fedés
Hőszivattyús fűtési rendszer
Padlófűtés az egész házban
Burkolatok 8.000 Ft/m²-ig szabadon választhatók
Modern nyílászárók
Energiahatékony kialakítás, alacsony rezsiköltség

Ami nagyon fontos nincsenek közös falak és közösen használt kert részek



Ez az otthon nem kompromisszum, hanem tudatos választás.







Lokáció Dánszentmiklós



Dánszentmiklós egy nyugodt, családbarát, folyamatosan fejlődő település Pest megyében.



Budapest kb. 30 perc alatt elérhető autóval



Helyben elérhető: iskola, óvoda, bölcsőde



Orvosi ellátás biztosított



Zöld környezet, tiszta levegő, barátságos közösség







Új építésű otthon masszív szerkezettel, korszerű technológiával, saját 400 nm  telekkel biztos alapokon.



Ne maradj le, az ilyen műszaki tartalmú ingatlanok ritkák ebben az árkategóriában!



Érdeklődj bizalommal, és foglald le időben!
Mutass többet
Általános adatok
Építés éve:
2026
Belső szintek száma:
1
Épület külső állapota:
6 - Új. ép.
Épület belső állapota:
6 - Új. ép.
Fényviszonyok:
Napfényes
Nézet:
Kert/belső kert
Fűtés:
Hőszivattyú
Szerkezet:
Tégla
Energetikai besorolás:
A+
Víz:
Ingatlanban
Gáz:
Utcában
Villany:
Ingatlanban
Csatorna:
Ingatlanban
Hamarosan jön
A ”Hamarosan jön” státuszú ingatlanok esetében jelenleg még folyamatban vannak a jogi és egyéb ellenőrzési folyamatok, így azok még nem teljesültek maradéktalanul. A Duna House Franchise Kft. és annak hálózatában tevékenykedők nem vállalnak felelősséget azért, hogy az adott hirdetés mikor kerül ”aktív” státuszba, vagy aktív státuszba kerül-e végül. A részletekről érdeklődjenek az adott hirdetésnél található DH partner értékesítői elérhetőségeken.
Mutass többet
Lakáshitel kalkulátor – Spórolj velünk!
Kalkulálj most, és keresd pénzügyi szakértőinket, akik ingyenes tanácsadással segítenek megtalálni a számodra legjobb megoldást!

Hasonló ingatlanok

2735 Dánszentmiklós

HZ040402 | 4 szoba | 107 m²
52 000 000 Ft

2735 Dánszentmiklós Központban

HZ038312 | 3 szoba | 86 m²
36 000 000 Ft

2735 Dánszentmiklós Dózsa György utca

HZ094524 | 4 szoba | 67 m²
56 900 000 Ft

2735 Dánszentmiklós Rákócz Ferenc 10

HZ013911 | 3 szoba | 62 m²
55 500 000 Ft

2735 Dánszentmiklós

HZ033751 | 4 szoba | 108 m²
89 900 000 Ft

2735 Dánszentmiklós

HZ085298 | 3 szoba | 80 m²
66 500 000 Ft

2735 Dánszentmiklós Iskolához közel

HZ069128 | 3 szoba | 78 m²
58 500 000 Ft

2735 Dánszentmiklós Iskolához közel

HZ077468 | 4 szoba | 86 m²
64 000 000 Ft

2735 Dánszentmiklós

HZ084078 | 3 szoba | 45 m²
42 900 000 Ft

2735 Dánszentmiklós Akácfa utca

HZ041294 | 4 szoba | 108 m²
89 900 000 Ft

2735 Dánszentmiklós

HZ079605 | 3 szoba | 60 m²
55 000 000 Ft

2735 Dánszentmiklós

HZ047033 | 4 szoba | 71 m²
65 000 000 Ft

2735 Dánszentmiklós

HZ019246 | 3 szoba | 60 m²
55 000 000 Ft

2735 Dánszentmiklós

HZ087074 | 3 szoba | 60 m²
55 000 000 Ft

2735 Dánszentmiklós

HZ052781 | 4 szoba | 71 m²
65 000 000 Ft

2735 Dánszentmiklós

HZ040208 | 3 szoba | 60 m²
55 000 000 Ft

2735 Dánszentmiklós

HZ074636 | 4 szoba | 71 m²
65 000 000 Ft
Csobai Lászlóné
Örökös tag értékesítő
Kapcsolatfelvétel
Hívom
Kapcsolatfelvétel
Kérjen egy személyes megtekintést az ingatlanra a Duna House értékesítőjétől
Válassz egy időpontot