.
Eladó Ház 2735 Dánszentmiklós
HZ079605
Eladó
Ikerház
Hamarosan jön
Új
55 000 000 Ft
2735 Dánszentmiklós
3 szoba
60 m²
400 m² telek
Törlesztőrészlet Ft/hó
THM %
1 megtekintés az elmúlt 7 napban
Leírás
Budapest határától 50 km  távolságra !



Több mint 20 éves tapasztalattal rendelkező profi kivitelezőtől kínálok megvételre Pest megyén belül , Dánszentmiklóson egy praktikus elrendezésű 60,25 nm fűtött lakótérrel rendelkező ikerház felet

.Az ingatlanok a fedett autó beállóknál csatlakoznak, így közös fal nincs az iker féllel.

Tartozik a lakáshoz 400 nm privát  telek terület is .

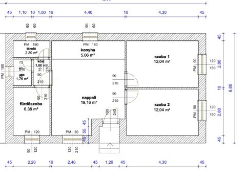
Az ingatlan kialakítása :

-Amerikai konyhás nappali

-2 db hálószoba

-Háztartási helység

-Fürdőszoba

-Wc

-Előtér

-Nyitott terasz

-Fedett autó beálló



Műszaki leírás:

-Monolit beton sáv alapzat

-B 30 -as PTH tégla fal ( válaszfalak 10 cm PTH fal)

-15 cm polisztirol hőszigetelés

-10 cm  polisztirol lábazat szigetelés

-Záró réteg : tört fehér nemes vakolat,

-aljzaton sötétbarna műgyanta lábazati vakolattal ellátva



Tető:

15*15.ös gerendázat

-2,5*15-ös szarufa

-10*15-ös ellen lécezéssel

-3*5-ös tető lécekkel ellátva

-Barna szinű tetőcseréppel fedve

A tető szigetelése 30 cm kőzetgyapottal ellátva.



Nyílászárók  Fehér színű 3 rétegű műanyag ablakok



Az ingatlan fűtése Hőszivattyús fűtés padlón keresztül történő hőleadással.

Az ár tartalmaz egy darab   Hűtő-Fűtő klímát.



Hideg meleg burkolatok 8000 Ft / nm  árig választhatóak



Várható átadás 2026. Szeptember



Amennyiben hirdetésem felkeltette érdeklődését, várom megtisztelő hívását.























































































Mutass többet
Általános adatok
Építés éve:
2026
Belső szintek száma:
1
Épület külső állapota:
6 - Új. ép.
Épület belső állapota:
6 - Új. ép.
Fényviszonyok:
Napfényes
Nézet:
Kert/belső kert
Fűtés:
Hőszivattyú
Szerkezet:
Tégla
Energetikai besorolás:
A+
Víz:
Ingatlanban
Gáz:
Utcában
Villany:
Ingatlanban
Csatorna:
Ingatlanban
Hamarosan jön
A ”Hamarosan jön” státuszú ingatlanok esetében jelenleg még folyamatban vannak a jogi és egyéb ellenőrzési folyamatok, így azok még nem teljesültek maradéktalanul. A Duna House Franchise Kft. és annak hálózatában tevékenykedők nem vállalnak felelősséget azért, hogy az adott hirdetés mikor kerül ”aktív” státuszba, vagy aktív státuszba kerül-e végül. A részletekről érdeklődjenek az adott hirdetésnél található DH partner értékesítői elérhetőségeken.
Mutass többet
Lakáshitel kalkulátor – Spórolj velünk!
Kalkulálj most, és keresd pénzügyi szakértőinket, akik ingyenes tanácsadással segítenek megtalálni a számodra legjobb megoldást!

Hasonló ingatlanok

2735 Dánszentmiklós

HZ040402 | 4 szoba | 107 m²
52 000 000 Ft

2735 Dánszentmiklós Központban

HZ038312 | 3 szoba | 86 m²
36 000 000 Ft

2735 Dánszentmiklós Dózsa György utca

HZ094524 | 4 szoba | 67 m²
56 900 000 Ft

2735 Dánszentmiklós Rákócz Ferenc 10

HZ013911 | 3 szoba | 62 m²
55 500 000 Ft

2735 Dánszentmiklós

HZ033751 | 4 szoba | 108 m²
89 900 000 Ft

2735 Dánszentmiklós

HZ085298 | 3 szoba | 80 m²
66 500 000 Ft

2735 Dánszentmiklós Iskolához közel

HZ069128 | 3 szoba | 78 m²
58 500 000 Ft

2735 Dánszentmiklós Iskolához közel

HZ077468 | 4 szoba | 86 m²
64 000 000 Ft

2735 Dánszentmiklós

HZ084078 | 3 szoba | 45 m²
42 900 000 Ft

2735 Dánszentmiklós Akácfa utca

HZ041294 | 4 szoba | 108 m²
89 900 000 Ft
Csobai Lászlóné
Örökös tag értékesítő
Kapcsolatfelvétel
Hívom
Kapcsolatfelvétel
Kérjen egy személyes megtekintést az ingatlanra a Duna House értékesítőjétől
Válassz egy időpontot