.
Eladó Ház 1025 Budapest 2. kerület , Pálvölgyen , csendes kertvárosi utcában sorház 150nm kerttel
HZ086076
Eladó
Sorház
Új
390 000 000 Ft
1025 Budapest 2. kerület , Pálvölgyen , csendes kertvárosi utcában sorház 150nm kerttel
7 szoba
215 m²
100 m² telek
Törlesztőrészlet Ft/hó
THM %
30 megtekintés az elmúlt 7 napban
Leírás
Pálvölgy egyik kedvelt részén eladó kiváló állapotú sorházi otthon kerttel és garázzsal!

Pávölgy nyugodt, zöldövezeti környezetében kínálunk eladásra egy 1995-ben épült, háromszintes, nagyon jó állapotú, 5 szobás sorházi ingatlant (6 szobássá alakítható), amely ideális választás családok számára.

Az ingatlan tulajdoni lap szerint 171 m², ugyanakkor a valós, átmért alapterület a 16 m²-es garázzsal együtt megközelítőleg 215 m², így a terek a mindennapokban is igazán tágas érzetet nyújtanak.

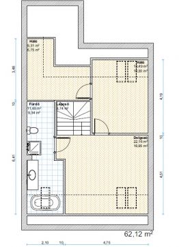
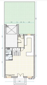
SZINTENKÉNT:
ALSÓSZINT: 76,98 m2
KÖZÉPSŐ SZINT: 76,98 m2 
FELSŐ SZINT: 62,12 m2

A házhoz 16 m²-es garázs tartozik, a garázs előtt pedig további beállási lehetőség biztosított.
A kényelmet és biztonságot motoros kapu szolgálja.

A kertkapcsolat kiemelkedő: 50 m²-es előkert fogadja az érkezőket, míg a ház mögött egy 100 m²-es, intim hátsó kert helyezkedik el, amely kiválóan alkalmas pihenésre, kertészkedésre vagy családi összejövetelekre.

A háromszintes elrendezés jól szeparálja a közösségi és a privát tereket, a világos helyiségek és a praktikus alaprajz kényelmes otthont biztosítanak. Az ingatlan  karbantartott, jó állapotú.

Nyugodt környezet, kert, garázs, kiváló állapot értékálló, szerethető otthon Pálvölgyben.
Mutass többet
Általános adatok
Építés éve:
1995
Belső szintek száma:
3
Épület külső állapota:
4 - Jó
Épület belső állapota:
4 - Jó
Fényviszonyok:
Napfényes
Nézet:
Kert/belső kert
Fűtés:
Gáz cirkó
Szerkezet:
Tégla
Energetikai besorolás:
Nincs megadva
Víz:
Ingatlanban
Gáz:
Ingatlanban
Villany:
Ingatlanban
Csatorna:
Ingatlanban
Lakáshitel kalkulátor – Spórolj velünk!
Kalkulálj most, és keresd pénzügyi szakértőinket, akik ingyenes tanácsadással segítenek megtalálni a számodra legjobb megoldást!

Hasonló ingatlanok

1028 Budapest 2. kerület

UZ095555 | 248 m²
150 000 000 Ft

1029 Budapest 2. kerület Kertvárosi idill a Templomkertnél

HZ088802 | 5 szoba | 169 m²
248 000 000 Ft

1028 Budapest 2. kerület

HZ056939 | 9 szoba | 286 m²
250 000 000 Ft

1029 Budapest 2. kerület KÖRPANORÁMÁS KÉT LAKÁSOS CSALÁDIHÁZ

HZ051039 | 8 szoba | 392 m²
275 000 000 Ft

1029 Budapest 2. kerület Karbantartott IKERHÁZfél a Francia iskolától 3 percre

HZ013833 | 6 szoba | 195 m²
201 000 000 Ft

1029 Budapest 2. kerület Gyöngyvér u.

HZ012120 | 4 szoba | 130 m²
249 000 000 Ft

1029 Budapest 2. kerület 2010-ben épült 160 négyzetméteres családi ház eladó a Gustave Eiffel Francia Óvoda, Iskola közelébe

HZ037159 | 5 szoba | 160 m²
249 900 000 Ft

1026 Budapest 2. kerület Bimbó út

HZ083074 | 6 szoba | 390 m²
419 000 000 Ft

1029 Budapest 2. kerület Budaliget , Kálvária-hegyre panorámás 2010-ben épült 160 négyzetméteres ingatlan, duplatelken eladó

HZ063656 | 4 szoba | 160 m²
379 000 000 Ft

1029 Budapest 2. kerület Budaligeten medencés ház (360nm) eladó 1043 nm-es, parkosított, panorámás telken

HZ025823 | 6 szoba | 385 m²
429 900 000 Ft

1021 Budapest 2. kerület Hűvösvölgy város felőli oldalán, ÉTTEREM és melléképület PARKOLÓVAL saját telken eladó!

VL089214 | 1 szoba | 982 m²
499 000 000 Ft

1028 Budapest 2. kerület

HZ019550 | 5 szoba | 290 m²
580 000 000 Ft

1029 Budapest 2. kerület Náncsi Néni étteremhez közel, panorámás, gyönyörű ház!

HZ045711 | 7 szoba | 265 m²
350 000 000 Ft

1028 Budapest 2. kerület Vízmosás utca közelében

HZ011523 | 9 szoba | 311 m²
440 000 000 Ft

1029 Budapest 2. kerület

HZ082814 | 6 szoba | 300 m²
455 000 000 Ft

1029 Budapest 2. kerület

HZ020382 | 4 szoba | 250 m²
370 000 000 Ft

1029 Budapest 2. kerület II. Kerület Budaliget

HZ088979 | 9 szoba | 363 m²
349 000 000 Ft

1029 Budapest 2. kerület Zrínyi Miklós út

HZ091214 | 5 szoba | 463 m²
420 000 000 Ft

1029 Budapest 2. kerület Zrínyi Miklós út

HZ093746 | 6 szoba | 597 m²
580 000 000 Ft

1028 Budapest 2. kerület

HZ040553 | 6 szoba | 290 m²
239 900 000 Ft
Moldván Erika
Örökös tag értékesítő
Kapcsolatfelvétel
Hívom
Kapcsolatfelvétel
Kérjen egy személyes megtekintést az ingatlanra a Duna House értékesítőjétől
Válassz egy időpontot