.
Eladó Ház 1182 Budapest 18. kerület , Amerikai konyhás nappali + 2 hálószobás új építésű ikerház
HZ072766
Eladó
Ikerház
Új
130 000 000 Ft
1182 Budapest 18. kerület , Amerikai konyhás nappali + 2 hálószobás új építésű ikerház
3 szoba
110 m²
1310 m² telek
Törlesztőrészlet Ft/hó
THM %
4 megtekintés az elmúlt 7 napban
Leírás
Új építésű, amerikai konyhás nappali + 2 szobás, napelemes, erkélyes ikerházfél Ganzkertvárosban

Eladó Budapest 18. kerületében, Ganzkertváros csendes, új építésű részén egy nettó 110 nm - es, amerikai konyhás nappali + 2 szobás ikerházfél 255 nm - es telekkel.

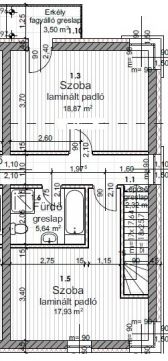
Az ingatlan földszinti helyiségei: amerikai konyhás nappali, kamra, gardrób, előszoba, fürdőszoba, terasz.
A lakás nettó földszinti alapterület: 51 nm.

Az ingatlan emeleti helyiségei: 2 db tágas hálószoba, közlekedő, fürdőszoba, erkély.
A lakás nettó emeleti alapterület: 51,5 nm

Műszaki leírás:
- 30 - as phorotherm tégla
- 10 cm szigetelés
- hideg- és melegburkolatok 6.000 / nm-ig
- beton födém
- műanyag nyílászárók
- műanyag bejárati ajtó, garázskapu
- infra film fűtés
- napelem 5 kWh

10% önerővel megvásárolható, birtokbaadás akár 1 hónapon belül!

Teljes műszaki leírás, méretarányos tervrajz, teljes dokumentáció irodánkban megtekinthető.

A Duna House teljes kínálatával kapcsolatban forduljon hozzám bizalommal. Hitel ügyintézés garantáltan a legjobb feltételekkel és a leggyorsabban. Eladás és vétel teljes körű ügyintézése, ingyenes tanácsadás, értékbecslés, megbízható ügyvédi háttér biztosítása.IGÉNY ESETÉN - ÉLŐ SKYPEVIDEO LAKÁSBEMUTATÁS, TELJES KÖRŰ ONLINE ÜGYINTÉZÉS!
Mutass többet
Általános adatok
Építés éve:
2026
Belső szintek száma:
2
Épület külső állapota:
6 - Új. ép.
Épület belső állapota:
6 - Új. ép.
Fényviszonyok:
Napfényes
Nézet:
Kert/belső kert
Fűtés:
Elektromos,Napelem
Szerkezet:
Tégla
Energetikai besorolás:
A+
Víz:
Ingatlanban
Gáz:
Utcában
Villany:
Ingatlanban
Csatorna:
Ingatlanban
Lakáshitel kalkulátor – Spórolj velünk!
Kalkulálj most, és keresd pénzügyi szakértőinket, akik ingyenes tanácsadással segítenek megtalálni a számodra legjobb megoldást!

Hasonló ingatlanok

1185 Budapest 18. kerület

HZ030591 | 4 szoba | 156 m²
160 000 000 Ft

1183 Budapest 18. kerület

HZ031142 | 4 szoba | 128 m²
94 900 000 Ft

1182 Budapest 18. kerület 3 szintes 200 nm-es körbejárható családi ház 4000 nm telken Ganzkertvárosban

HZ050245 | 4 szoba | 200 m²
220 000 000 Ft

1182 Budapest 18. kerület Szent Imre-kertvárosban, 3 generációs, önálló családi ház

HZ022802 | 6 szoba | 180 m²
105 000 000 Ft

1182 Budapest 18. kerület Szent Imre-kertváros

HZ055068 | 3 szoba | 109 m²
115 000 000 Ft

1188 Budapest 18. kerület Újpéteritelepen 2 generációs kiváló állapotú családi ház

HZ080895 | 6 szoba | 193 m²
140 000 000 Ft

1188 Budapest 18. kerület

HZ083996 | 4 szoba | 130 m²
125 990 000 Ft

1182 Budapest 18. kerület Gloriett-telep

HZ062081 | 4 szoba | 130 m²
145 800 000 Ft

1186 Budapest 18. kerület

HZ041101 | 4 szoba | 110 m²
99 900 000 Ft

1186 Budapest 18. kerület

HZ010444 | 2 szoba | 70 m²
49 900 000 Ft

1185 Budapest 18. kerület

HZ050043 | 5 szoba | 220 m²
160 000 000 Ft

1188 Budapest 18. kerület Pestszentimre központ közelében

HZ047381 | 7 szoba | 300 m²
134 990 000 Ft

1182 Budapest 18. kerület

HZ064159 | 3 szoba | 285 m²
170 000 000 Ft

1183 Budapest 18. kerület Budapest XVIII.kerületének Impozáns utcája

HZ054867 | 8 szoba | 304 m²
209 600 000 Ft

1181 Budapest 18. kerület

HZ032340 | 4 szoba | 510 m²
199 900 000 Ft

1186 Budapest 18. kerület

HZ072428 | 2 szoba | 40 m²
49 900 000 Ft

1183 Budapest 18. kerület Tünde utca

HZ050194 | 4 szoba | 110 m²
74 500 000 Ft

1188 Budapest 18. kerület Bp.XVIII.HZ

HZ024971 | 4 szoba | 295 m²
197 900 000 Ft

1185 Budapest 18. kerület Amerikai konyhás nappali + 2 hálószobás új építésű ház

HZ075483 | 3 szoba | 114 m²
133 000 000 Ft

1188 Budapest 18. kerület Közkedvelt Almáskertben nívós családi ház eladó

HZ075715 | 4 szoba | 165 m²
249 000 000 Ft
Zöldi Norbert
Briliáns fokozatú értékesítő
Kapcsolatfelvétel
Hívom
Kapcsolatfelvétel
Kérjen egy személyes megtekintést az ingatlanra a Duna House értékesítőjétől
Válassz egy időpontot