.
Eladó Ház 1224 Budapest 22. kerület , Budafokon eladó új építésű ikerház
HZ044862
Eladó
Ikerház
Hamarosan jön
Új
169 000 000 Ft
1224 Budapest 22. kerület , Budafokon eladó új építésű ikerház
5 szoba
135 m²
135 m² telek
Törlesztőrészlet Ft/hó
THM %
3 megtekintés az elmúlt 7 napban
Leírás
MODERN, ENERGIAHATÉKONY CSALÁDI OTTHONOK ÓHEGYEN PRÉMIUM KIVITEL, KERTVÁROSI NYUGALOM

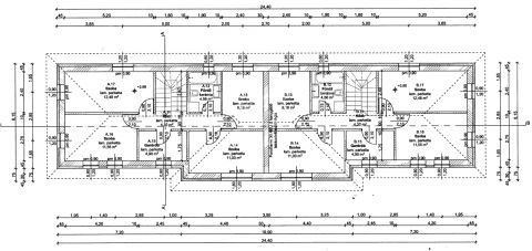
Budapest XXII. kerületének Óhegy városrészében, csendes, kertvárosias környezetben kínálunk megvételre egy 788 m²-es telken épülő, két darab A és B jelű nettó 135 m²-es, nappali + 4 szobás, saját garázsos, nagy teraszos, kulcsrakész ikerház-felet.

Mindkét ingatlan azonos műszaki tartalommal, alaprajzzal és telekmérettel készül

FŐBB PARAMÉTEREK

- 135 m² hasznos alapterület

- 394 m² saját, szeparált telekrész

- Nappali + 4 külön nyíló szoba + gardrób

- 15 m² kertkapcsolatos terasz

- Saját, 16 m²-es garázs + térkövezett beálló

- Hőszivattyús fűtés + padlófűtés minden helyiségben

Új építés várható átadás: 2026. szeptember 30.

ÁTGONDOLT, CSALÁDBARÁT ELRENDEZÉS

Földszint:
Tágas, közel 35 m²-es amerikai konyhás nappali közvetlen terasz- és kertkapcsolattal, fürdőszoba, előszoba, valamint garázs.

Emelet:
4 külön nyíló hálószoba, gardrób és egy második fürdőszoba ideális nagyobb család számára is.

A praktikus térszervezés biztosítja a közös életterek és a privát zónák tökéletes egyensúlyát.

MODERN MŰSZAKI TARTALOM ALACSONY FENNTARTÁSI KÖLTSÉG

- Porotherm 30 cm falazat + 15 cm homlokzati szigetelés

- 3 rétegű üvegezésű nyílászárók

- Elektromos alumínium redőnyök szúnyoghálóval

- 10 kW-os hőszivattyú

- Helyiségenként szabályozható padlófűtés

- 2 db hűtő-fűtő klíma

- H-tarifás mérőóra

- Elektromos kapu

- Dupla komfort


Az ingatlanok önálló mérőórákkal, használatbavételi engedéllyel és társasházi alapító okirattal kerülnek átadásra.

KIVÁLÓ LOKÁCIÓ

Nyugodt, zöldövezeti környezet, mégis kiváló infrastruktúra:

Iskola, óvoda, bölcsőde a közelben

510 perc autóval: ALDI, Lidl, valamint a Campona Bevásárlóközpont

Buszmegállók sétatávolságra (213, 114, 214, 287)

A Kelenföldi pályaudvar kb. 25 perc alatt elérhető

KINEK AJÁNLJUK?


Azoknak, akik:
új építésű, modern otthont keresnek
fontos számukra az energiahatékonyság
csendes, kertvárosi környezetben szeretnének élni
mégis gyorsan elérnék a várost

Részletes műszaki dokumentáció rendelkezésre áll.
Megtekintés előre egyeztetett időpontban lehetséges.

Amennyiben egy értékálló, prémium minőségű, családbarát otthont keres a XXII. kerület egyik legkedveltebb részén, várom megtisztelő jelentkezését!
Mutass többet
Általános adatok
Építés éve:
2026
Belső szintek száma:
2
Épület külső állapota:
6 - Új. ép.
Épület belső állapota:
6 - Új. ép.
Fényviszonyok:
Napfényes
Nézet:
Kert/belső kert
Fűtés:
Hőszivattyú
Szerkezet:
Tégla
Energetikai besorolás:
Nincs megadva
Víz:
Ingatlanban
Gáz:
Ingatlanban
Villany:
Ingatlanban
Csatorna:
Ingatlanban
Hamarosan jön
A ”Hamarosan jön” státuszú ingatlanok esetében jelenleg még folyamatban vannak a jogi és egyéb ellenőrzési folyamatok, így azok még nem teljesültek maradéktalanul. A Duna House Franchise Kft. és annak hálózatában tevékenykedők nem vállalnak felelősséget azért, hogy az adott hirdetés mikor kerül ”aktív” státuszba, vagy aktív státuszba kerül-e végül. A részletekről érdeklődjenek az adott hirdetésnél található DH partner értékesítői elérhetőségeken.
Mutass többet
Lakáshitel kalkulátor – Spórolj velünk!
Kalkulálj most, és keresd pénzügyi szakértőinket, akik ingyenes tanácsadással segítenek megtalálni a számodra legjobb megoldást!

Hasonló ingatlanok

1221 Budapest 22. kerület Budafok legnívósabb részén

HZ049206 | 4 szoba | 191 m²
266 750 000 Ft

1225 Budapest 22. kerület

HZ041747 | 3 szoba | 75 m²
60 000 000 Ft

1224 Budapest 22. kerület

HZ028835 | 2 szoba | 35 m²
45 000 000 Ft

1223 Budapest 22. kerület BUDATÉTÉNYBEN panorámás 4 szobás, ÚJÉPÍTÉSŰ ikerfél DUPLA GARÁZZSAL, extra műszaki tartalommal

HZ089368 | 4 szoba | 184 m²
232 700 000 Ft

1223 Budapest 22. kerület BUDATÉTÉNYBEN panorámás 4 szobás, ÚJÉPÍTÉSŰ ikerfél DUPLA GARÁZZSAL, extra műszaki tartalommal

HZ062577 | 4 szoba | 173 m²
223 600 000 Ft

1224 Budapest 22. kerület

HZ067556 | 4 szoba | 104 m²
119 000 000 Ft

1222 Budapest 22. kerület

IP018352 | 106 m²
199 999 000 Ft

1221 Budapest 22. kerület

HZ073781 | 1 szoba | 44 m²
46 300 000 Ft

1222 Budapest 22. kerület Budafokon panorámás utcában

HZ078517 | 4 szoba | 151 m²
249 990 000 Ft

1224 Budapest 22. kerület

HZ047524 | 3 szoba | 130 m²
164 000 000 Ft

1224 Budapest 22. kerület

TK067946 | 5365 m²
74 000 000 Ft

1221 Budapest 22. kerület Ady Endre útról nyíló zsákutca

HZ085296 | 9 szoba | 355 m²
295 000 000 Ft

1222 Budapest 22. kerület AZONNAL KÖLTÖZHETŐ, CSENDES UTCA, MEDENCÉS HÁZ

HZ067069 | 6 szoba | 260 m²
204 900 000 Ft

1222 Budapest 22. kerület Nagytétény

HZ073999 | 6 szoba | 306 m²
229 000 000 Ft

1221 Budapest 22. kerület

HZ093472 | 10 szoba | 370 m²
220 000 000 Ft

1221 Budapest 22. kerület Kálváriahegy utcában csendes 2 generációs ház

HZ092699 | 8 szoba | 327 m²
230 000 000 Ft

1221 Budapest 22. kerület Tegzes utca

HZ010183 | 6 szoba | 205 m²
169 000 000 Ft

1224 Budapest 22. kerület 22. kerület kervárosi részén

HZ034967 | 7 szoba | 150 m²
137 000 000 Ft

1224 Budapest 22. kerület Budapest Kakukkhegy

HZ064434 | 5 szoba | 145 m²
110 000 000 Ft

1221 Budapest 22. kerület Nincs utca

HZ089332 | 6 szoba | 220 m²
250 000 000 Ft
Szenyán Anita
Értékesítő
Kapcsolatfelvétel
Hívom
Kapcsolatfelvétel
Kérjen egy személyes megtekintést az ingatlanra a Duna House értékesítőjétől
Válassz egy időpontot