.
Eladó Ház 1028 Budapest 2. kerület , 2/A PESTHIDEGKÚT- IKERHÁZFÉL, CSENDES, MÉGIS KÖZPONTI HELYEN
HZ044559
Eladó
Ikerház
Hamarosan jön
Új
165 000 000 Ft
1028 Budapest 2. kerület , 2/A PESTHIDEGKÚT- IKERHÁZFÉL, CSENDES, MÉGIS KÖZPONTI HELYEN
3 szoba
93 m²
501 m² telek
Törlesztőrészlet Ft/hó
THM %
4 megtekintés az elmúlt 7 napban
Leírás
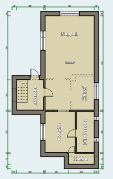
Budapest II/A kerület PESTHIDEGKÚT Széphalom városrészében, zöldövezeti környezetben eladó egy, D_DNY-i fekvésű, 98 m²-es ikerház, amely ideális választás azoknak, akik nyugodt, természetközeli életre vágynak, viszont nem szeretnének távol maradni a város által nyújtott kényelmi szolgáltatásoktól sem.

Az otthonban két hálószoba, tágas nappali, étkező, konyha és két fürdőszoba található, valamint egy hangulatos terasz, amely tavasztól télig alkalmat nyújt a meghitt családi és baráti együttlétekre.

A 501 m²-es telek árnyékos kertje tökéletes családi programokhoz, nyáron pedig medence is felállítható.

A fedett autóbeálló és a szerszámoskamra praktikus kényelmet nyújt, míg a 25 m²-es pince extra tárolóhelyet biztosít.

Külső felújítás és hőszigetelés 2020-ban történt, a belső részek nagy felújítása pedig 2009-ben.

A kert osztatlan közös tulajdon, de ügyvéd által ellenjegyzett használati megállapodás garantálja a zavartalan használatot. A kert teljesen elszeparált, kerítéssel elválasztva, és a háznak nincs utcafrontja, így többszörösen is biztosított a privát tér.

A környék különlegessége a közeli nagy játszótér, valamint több iskola és óvoda, sportpálya, orvosi rendelő, uszoda és a Széphalom Üzletház minden adott a kényelmes családi élethez néhány 100 méteres körzetben, séta távolságra.

Ha szeretne csendes, zöld környezetben élni, mégis közel maradni a városhoz, ez az otthon Önre vár, várom megtisztelő hívását.

Mutass többet
Általános adatok
Építés éve:
1986
Belső szintek száma:
2
Épület külső állapota:
4 - Jó
Épület belső állapota:
4 - Jó
Fényviszonyok:
Napfényes
Nézet:
Kert/belső kert
Fűtés:
Gáz cirkó
Szerkezet:
Tégla
Energetikai besorolás:
Nincs megadva
Víz:
Ingatlanban
Gáz:
Ingatlanban
Villany:
Ingatlanban
Csatorna:
Ingatlanban
Hamarosan jön
A ”Hamarosan jön” státuszú ingatlanok esetében jelenleg még folyamatban vannak a jogi és egyéb ellenőrzési folyamatok, így azok még nem teljesültek maradéktalanul. A Duna House Franchise Kft. és annak hálózatában tevékenykedők nem vállalnak felelősséget azért, hogy az adott hirdetés mikor kerül ”aktív” státuszba, vagy aktív státuszba kerül-e végül. A részletekről érdeklődjenek az adott hirdetésnél található DH partner értékesítői elérhetőségeken.
Mutass többet
Lakáshitel kalkulátor – Spórolj velünk!
Kalkulálj most, és keresd pénzügyi szakértőinket, akik ingyenes tanácsadással segítenek megtalálni a számodra legjobb megoldást!

Hasonló ingatlanok

1029 Budapest 2. kerület Kertvárosi idill a Templomkertnél

HZ088802 | 5 szoba | 169 m²
248 000 000 Ft

1029 Budapest 2. kerület Gyöngyvér u.

HZ012120 | 4 szoba | 130 m²
249 000 000 Ft

1029 Budapest 2. kerület 2010-ben épült 160 négyzetméteres családi ház eladó a Gustave Eiffel Francia Óvoda, Iskola közelébe

HZ037159 | 5 szoba | 160 m²
249 900 000 Ft

1029 Budapest 2. kerület Örökpanorámás 137 nm-es családiház, 662 nm-es telken!

HZ070176 | 3 szoba | 112 m²
180 000 000 Ft

1025 Budapest 2. kerület Rózsadomb Center közelében

HZ042949 | 4 szoba | 145 m²
210 000 000 Ft

1029 Budapest 2. kerület ADYLIGET PANORÁMÁS UTCÁJÁBAN

LK071996 | 4 szoba | 116 m²
158 000 000 Ft

1028 Budapest 2. kerület Remetekertváros, 450 méterre a Hűvösvölgy villamos megálló

HZ072276 | 4 szoba | 147 m²
240 000 000 Ft

1028 Budapest 2. kerület

HZ089001 | 4 szoba | 145 m²
220 000 000 Ft

1028 Budapest 2. kerület

H503257 | 2 szoba | 76 m²
135 000 000 Ft

1028 Budapest 2. kerület

HZ079160 | 4 szoba | 145 m²
220 000 000 Ft

1028 Budapest 2. kerület

HZ056939 | 9 szoba | 286 m²
250 000 000 Ft

1029 Budapest 2. kerület KÖRPANORÁMÁS KÉT LAKÁSOS CSALÁDIHÁZ

HZ051039 | 8 szoba | 392 m²
275 000 000 Ft

1029 Budapest 2. kerület Karbantartott IKERHÁZfél a Francia iskolától 3 percre

HZ013833 | 6 szoba | 195 m²
201 000 000 Ft

1028 Budapest 2. kerület

HZ040553 | 6 szoba | 290 m²
239 900 000 Ft

1029 Budapest 2. kerület

HZ082350 | 7 szoba | 386 m²
299 000 000 Ft

1029 Budapest 2. kerület

HZ038495 | 5 szoba | 190 m²
230 000 000 Ft

1028 Budapest 2. kerület HIDEGKÚTON KOMPLETT HÁZ-ÜZLETEKKEL ÉS LAKÁSSAL

HZ068947 | 3 szoba | 270 m²
210 000 000 Ft

1028 Budapest 2. kerület Széphalom városrészben, csendes utcában építési telek Eladó

TK057974 | 666 m²
99 000 000 Ft

1028 Budapest 2. kerület

HZ080409 | 9 szoba | 367 m²
295 000 000 Ft

1029 Budapest 2. kerület Budaliget , Kálvária-hegyre panorámás 2010-ben épült 160 négyzetméteres ingatlan, duplatelken eladó

HZ063656 | 4 szoba | 160 m²
379 000 000 Ft
Szikra Judit
Örökös tag értékesítő
Kapcsolatfelvétel
Hívom
Kapcsolatfelvétel
Kérjen egy személyes megtekintést az ingatlanra a Duna House értékesítőjétől
Válassz egy időpontot