.
Eladó Ház 2118 Dány , Önálló, újépítésű, 4 szobás családi ház, 966 nm-es telekkel!
HZ035861
Eladó
Családi ház
Új
79 900 000 Ft
2118 Dány , Önálló, újépítésű, 4 szobás családi ház, 966 nm-es telekkel!
5 szoba
116 m²
966 m² telek
Törlesztőrészlet Ft/hó
THM %
3 megtekintés az elmúlt 7 napban
Leírás
Dányban eladó, újépítésű, 4 szoba + nappalis, önálló családi ház, dupla fürdőszobával, hőszivattyús fűtéssel, 966 nm-es telekkel!

Belső nettó hasznos élhető tér 116.39 nm! + fedett terasz 10.81 nm

Telek területe 966 m2, 17 méter széles és 56 méter hosszú.

Várható átadás : 2026.10 hó

10 % önerővel szerződhető!

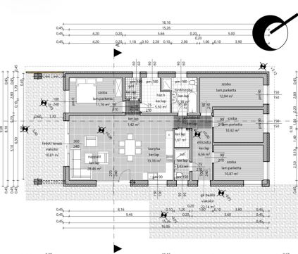
Helyiségeit tekintve nagyon jó elosztással rendelkezik, alábbiakban sorolom fel négyzetméterek megjelölésével:

- előszoba (6.56 nm)

- 4 önálló bejáratú szoba  (11.76 nm, 12.04 nm, 10.32 nm, 10.87 nm)

- teraszkapcsolatos nagy nappali étkezővel, konyhával (41.62 nm)

- közlekedő (4.52 nm)

- háztartási helyiség (5.50 nm)

- fürdőszoba + wc (6.39 nm)

- zuhanyzó + wc (3.02 nm)

- kamra (1.67 nm)

- gardrób (2.12 nm)


Műszaki leírás:

- hőszivattyús fűtés, padlófűtéssel

- klíma a nappaliban

- burkolat 6000 ft / nm (hideg, meleg)

- 15 cm homlokzati hőszigetelés 

- 10 cm lábazati hőszigetelés

- 30 cm üveggyapot tető hőszigetelés

- nyílászárók: típus műanyag szerkezetek, 3 rtg.hőszig.üveggel

- festés: belsőben páraáteresztő falfestékkel, színezve igény szerint

- csaptelepek 15 000 ft / db

- beltéri ajtók 60 000 ft / db

- alföldi márkájú szaniterek választhatóak

Dány egy csendes, barátságos település Pest vármegyében, a Gödöllői-dombság lankái között. A község ideális választás mindazok számára, akik nyugodt, vidéki környezetben szeretnének élni, ugyanakkor fontos számukra a főváros közelsége Budapest autóval körülbelül 4050 perc alatt elérhető.

A település rendezett, folyamatosan fejlődő infrastruktúrával rendelkezik: megtalálható óvoda, iskola, orvosi rendelő, valamint alapvető kereskedelmi és szolgáltató egységek. A közösségi élet aktív, a helyi rendezvények és hagyományőrző programok erősítik az összetartó lakóközösséget.

Dány különösen vonzó lehet családok számára, hiszen a nyugodt környezet, a tiszta levegő és a zöldterületek kiváló életminőséget biztosítanak. A természet közelsége kirándulási és kikapcsolódási lehetőségeket kínál, miközben a mindennapi élethez szükséges szolgáltatások könnyen elérhetők.

Összességében Dány ideális választás azoknak, akik a város zajától távol, mégis jól megközelíthető helyen keresnek otthont.

Amennyiben felkeltettem érdeklődésed keress nyugodtan, és gyere, nézd meg velem az ingatlant!

Hitel ügyintézés, eladás és vétel teljes körű ügyintézése, ingyenes tanácsadás, értékbecslés, megbízható ügyvédi háttér biztosítása.


Mutass többet
Általános adatok
Építés éve:
2026
Belső szintek száma:
1
Épület külső állapota:
6 - Új. ép.
Épület belső állapota:
6 - Új. ép.
Fényviszonyok:
Nézet:
Udvar
Fűtés:
Hőszivattyú
Szerkezet:
Tégla
Energetikai besorolás:
Nincs megadva
Víz:
Ingatlanban
Gáz:
Utcában
Villany:
Ingatlanban
Csatorna:
Ingatlanban
Lakáshitel kalkulátor – Spórolj velünk!
Kalkulálj most, és keresd pénzügyi szakértőinket, akik ingyenes tanácsadással segítenek megtalálni a számodra legjobb megoldást!

Hasonló ingatlanok

2118 Dány

HZ068994 | 4 szoba | 110 m²
70 000 000 Ft

2118 Dány Tóparti ingatlan

HZ060035 | 3 szoba | 114 m²
44 000 000 Ft

2118 Dány Dány családi ház

HZ083055 | 3 szoba | 45 m²
46 000 000 Ft
Lénárd László
Örökös tag csoportvezető
Kapcsolatfelvétel
Hívom
Kapcsolatfelvétel
Kérjen egy személyes megtekintést az ingatlanra a Duna House értékesítőjétől
Válassz egy időpontot