.
Eladó Ház 2370 Dabas , Kertváros! Család! Új építés!
HZ024683
Eladó
Ikerház
Új
109 900 000 Ft
2370 Dabas , Kertváros! Család! Új építés!
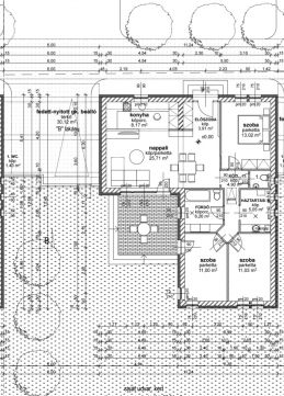
4 szoba
90 m²
500 m² telek
Törlesztőrészlet Ft/hó
THM %
5 megtekintés az elmúlt 7 napban
Leírás
Új építésű ikerház saját kertrésszel eladó!!!

Dabason, kertvárosi környezetben mégis központhoz közel, nettó 90,51 nm-es, amerikai konyha nappalis, 3 hálószobás otthon, 500 nm-es telken várja leendő tulajdonosát!
Várható kulcsrakész átadás: 2026 ősz!

Műszaki tartalom:
- 30-as Porotherm tégla
- 15 cm-es homlokzati szigetelés
- 30 cm födém szigetelés
- Bramac betoncserép
- 3 rétegű hőszigetelt üveggel ellátott műanyag nyílászárók
- hőszivattyú
- mindenhol padlófűtés
- inverteres klíma
- Hideg/meleg burkolatok 6500 Ft/nm áron választhatók

Budapest autóval, 30 percen belül elérhető, volánbusszal a Népliget 40-45 perc. Bölcsőde, óvoda, gimnázium, egészségügyi központ, szépségszalon.., és minden igényt kielégítő vásárlási lehetőségek adottak!

Igen ez lehet az Ön otthona! Jöjjön, nézzük meg együtt és tegyen rá ajánlatot!

Amennyiben ajánlatom megfelelne az elvárásainak, de nem rendelkezik a kiválasztott ingatlan vételárával, a Credipass hitelügyintéző munkatársai díjmentesen biztosítják a legkedvezőbb, személyre szabott hitelkonstrukciót a kedves vevők számára.
Keressen bizalommal a hét bármely napján hétvégén és ünnepnapokon is!
Mutass többet
Általános adatok
Építés éve:
2026
Belső szintek száma:
1
Épület külső állapota:
6 - Új. ép.
Épület belső állapota:
6 - Új. ép.
Fényviszonyok:
Napfényes
Nézet:
Udvar
Fűtés:
Hőszivattyú
Szerkezet:
Tégla
Energetikai besorolás:
Nincs megadva
Víz:
Ingatlanban
Gáz:
Telken belül
Villany:
Ingatlanban
Csatorna:
Ingatlanban
Lakáshitel kalkulátor – Spórolj velünk!
Kalkulálj most, és keresd pénzügyi szakértőinket, akik ingyenes tanácsadással segítenek megtalálni a számodra legjobb megoldást!

Hasonló ingatlanok

2370 Dabas

HZ056064 | 3 szoba | 157 m²
125 000 000 Ft

2370 Dabas Dabas - Dabasiszőlők nyugodt utcájában

HZ030159 | 4 szoba | 83 m²
64 000 000 Ft

2373 Dabas Kertvárosi,csendes,nyugodt környezet.

HZ038732 | 4 szoba | 95 m²
89 900 000 Ft

2373 Dabas Kertvárosi csendes nyugodt környezet

HZ019013 | 4 szoba | 96 m²
89 900 000 Ft

2370 Dabas A Vitafort közelében

HZ035621 | 6 szoba | 100 m²
195 000 000 Ft

2370 Dabas

HZ080046 | 4 szoba | 160 m²
186 000 000 Ft

2371 Dabas Dabas-Sári Új Építésű Ikerház első lakása

HZ087756 | 4 szoba | 84 m²
77 000 000 Ft

2371 Dabas Dabas-Sáriban újépítésű ikerház, 3 szoba + nappali

HZ079953 | 4 szoba | 84 m²
79 000 000 Ft

2373 Dabas

HZ054475 | 3 szoba | 48 m²
29 990 000 Ft

2373 Dabas Csendes nyugodt környezet

HZ077308 | 4 szoba | 110 m²
57 900 000 Ft

2373 Dabas PÁRATLAN BEFEKTETÉSI LEHETŐSÉG ,VENDÉGHÁZ- WELNESS

HZ077520 | 8 szoba | 400 m²
110 000 000 Ft

2370 Dabas Központban

TK021387 | 6270 m²
99 900 000 Ft

2370 Dabas Fiatal építésű, modern minimál ház eladó!

HZ094914 | 4 szoba | 270 m²
199 000 000 Ft

2373 Dabas Felújított ingatlan Dabason

HZ087197 | 4 szoba | 181 m²
119 900 000 Ft

2370 Dabas Családi Otthon! Csendes környék!

HZ052065 | 5 szoba | 200 m²
79 900 000 Ft

2373 Dabas Teljesen felújított, családi ház Dabason

HZ059912 | 3 szoba | 97 m²
74 990 000 Ft

2370 Dabas Kiváló elhelyezkedésű, bővíthető családi ház

HZ049376 | 2 szoba | 70 m²
65 000 000 Ft

2370 Dabas Több generáció együtt élésére is alkalmas családi ház

HZ068846 | 6 szoba | 308 m²
160 000 000 Ft

2370 Dabas Dabas Wesselényi utca

HZ076273 | 6 szoba | 180 m²
64 990 000 Ft

2371 Dabas Dabas-Sáriban központhoz közel!

HZ096059 | 4 szoba | 92 m²
59 900 000 Ft
Kristóf Beáta
Platina fokozatú csoportvezető
Kapcsolatfelvétel
Hívom
Kapcsolatfelvétel
Kérjen egy személyes megtekintést az ingatlanra a Duna House értékesítőjétől
Válassz egy időpontot