.
Eladó Ház 1038 Budapest 3. kerület , Józsefhegy
HZ015967
Eladó
Családi ház
Hamarosan jön
Új
260 000 000 Ft
1038 Budapest 3. kerület , Józsefhegy
4 szoba
161 m²
615 m² telek
Törlesztőrészlet Ft/hó
THM %
5 megtekintés az elmúlt 7 napban
Leírás

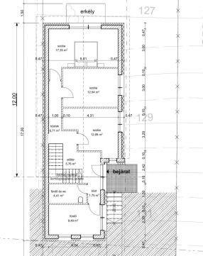
Eladó III.Kerület Óbor utca elvehetetlen örök panorámás most épülő duplakomfortos Családi ház.

615 nm.-es telken 161 nm.-es önálló 2 szintes családi családi ház jó elosztással.

A parkolást önálló garázs és udvari kocsibeálló biztosítja.

A teleknek 2 utcáról van bejárata. A terület adottságaihoz pontosan megtervezett és kivitelezett szerkezeti megoldásokkal, az abszolút biztonság és tartósság jegyéban.

A szerkezet magas minőségű anyagokkal profin szigetelt.
Falazat 30cm.-es Porotherm klímatégla+15cm.-es grafitos szigetelés.

A fűtést és hűtésről hőszivattyú gondoskodik, padlófűtéssel és felület hűtéssel.
Napelemek gondoskodnak a mindig alacsony rezsiről.

A ház belső kialakításánál lehetőség van a vevő igényeinek megfelelően tervezni-kivitelezni. Választható burkolatok,  beltéri ajtók és szaniterek.

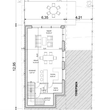
A földszinten
-Nappali+étkező+konyha a hozzá tartozó kamrával
-külön gépészeti helyiség
-külön mellékhelyiség

Az emeleten
-3 szoba a szülői hálóhoz saját fürdőszoba és gardrób tartozik
-A közlekedőből nyílik egy fürdőszoba ami Master fürdő infrakabinnal, és masszázs káddal, 1.5nm-es zuhanyzóval nagy ablakokkal van felszerelve
-Erkély

 A ház 40%-ban van elkészűlve. Megegyezés után 7-8 hónap van a kulcsátadásig.

Hívjon bizalommal akár hétvégén is! 0630 074 4740

Mutass többet
Általános adatok
Építés éve:
2026
Belső szintek száma:
2
Épület külső állapota:
6 - Új. ép.
Épület belső állapota:
6 - Új. ép.
Fényviszonyok:
Napfényes
Nézet:
Kert/belső kert
Fűtés:
Hőszivattyú,Hőszivattyú,Napelem,Klíma
Szerkezet:
Tégla
Energetikai besorolás:
A+
Víz:
Ingatlanban
Gáz:
Utcában
Villany:
Ingatlanban
Csatorna:
Ingatlanban
Hamarosan jön
A ”Hamarosan jön” státuszú ingatlanok esetében jelenleg még folyamatban vannak a jogi és egyéb ellenőrzési folyamatok, így azok még nem teljesültek maradéktalanul. A Duna House Franchise Kft. és annak hálózatában tevékenykedők nem vállalnak felelősséget azért, hogy az adott hirdetés mikor kerül ”aktív” státuszba, vagy aktív státuszba kerül-e végül. A részletekről érdeklődjenek az adott hirdetésnél található DH partner értékesítői elérhetőségeken.
Mutass többet
Lakáshitel kalkulátor – Spórolj velünk!
Kalkulálj most, és keresd pénzügyi szakértőinket, akik ingyenes tanácsadással segítenek megtalálni a számodra legjobb megoldást!

Hasonló ingatlanok

1037 Budapest 3. kerület tetőteraszos, örökpanorámás minimál stílusú ház Testvérhegyen!

PR054679/HZ/10190 | 1 szoba | 188 m²
285 000 000 Ft

1037 Budapest 3. kerület tetőteraszos, örökpanorámás minimál stílusú ház Testvérhegyen!

PR054679/HZ/10191 | 1 szoba | 187 m²
345 000 000 Ft

1038 Budapest 3. kerület 3.kerület Józsefhegyen

HZ014582 | 4 szoba | 155 m²
279 000 000 Ft

1037 Budapest 3. kerület Eladó a 3.kerületben Aranyhegyen egy ikerház fél !!

HZ065960 | 4 szoba | 209 m²
288 000 000 Ft

1037 Budapest 3. kerület Eladó a 3.kerületben Aranyhegyen egy Családi ház!!

HZ060714 | 5 szoba | 241 m²
388 000 000 Ft

1031 Budapest 3. kerület

UZ075892 | 5 szoba | 260 m²
290 000 000 Ft

1039 Budapest 3. kerület

HZ029474 | 8 szoba | 214 m²
179 900 000 Ft

1038 Budapest 3. kerület III. kerület, Rókahegy legszebb részén

PR028777/HZ/21199 | 5 szoba | 149 m²
242 500 000 Ft

1038 Budapest 3. kerület III. kerület, Rókahegy legszebb részén

PR028777/HZ/21206 | 4 szoba | 151 m²
253 575 000 Ft

1038 Budapest 3. kerület III. kerület, Rókahegy legszebb részén

PR028777/HZ/21208 | 3 szoba | 151 m²
264 600 000 Ft

1039 Budapest 3. kerület Üdülő övezeti telek, üdülő épület a Római parton

HZ011153 | 1 szoba | 950 m²
410 000 000 Ft

1037 Budapest 3. kerület

HZ037189 | 7 szoba | 433 m²
429 000 000 Ft

1038 Budapest 3. kerület Rókahegy lábánál

HZ014335 | 6 szoba | 342 m²
249 000 000 Ft

1039 Budapest 3. kerület Csillaghegy Dunai oldalán , ÖNÁLLÓ családi ház

HZ072860 | 3 szoba | 200 m²
198 000 000 Ft

1038 Budapest 3. kerület Róka-hegy

HZ098095 | 6 szoba | 180 m²
161 500 000 Ft

1037 Budapest 3. kerület

HZ054482 | 5 szoba | 193 m²
265 000 000 Ft

1037 Budapest 3. kerület

HZ019504 | 5 szoba | 193 m²
265 000 000 Ft

1037 Budapest 3. kerület

HZ080023 | 5 szoba | 340 m²
457 000 000 Ft

1031 Budapest 3. kerület Keve utca

HZ014165 | 6 szoba | 220 m²
399 000 000 Ft

1031 Budapest 3. kerület Rámhegy utca

HZ023469 | 5 szoba | 300 m²
330 000 000 Ft
Tóth Beáta
Értékesítő
Kapcsolatfelvétel
Hívom
Kapcsolatfelvétel
Kérjen egy személyes megtekintést az ingatlanra a Duna House értékesítőjétől
Válassz egy időpontot