LIGETEN! FENYŐFÁK ÖLELÉSÉBEN! ÚJ ÉPÍTÉS!
Eladó Diósdliget romantikus részén egy új építésű ikerház kb. 500 nm-es saját használatú kerttel.
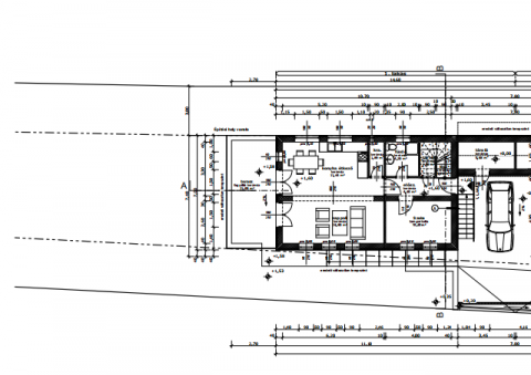
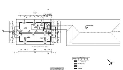
A ház belső kétszintes, a lakóterülete 121,89 nm, ehhez kapcsolódik a 21 nm-es terasz és a két emeleti erkély egyenként 5,36 nm-rel.
Az elrendezés rendkívül élhető, az alsó szinten a teraszkapcsolatos amerikai konyhás nappali mellett fürdőszoba, tároló és egy hálószoba kerül kialakításra, míg az emeleten 3 hálószoba (mindegyik erkélyes), fürdőszoba és háztartási helyiség lesz
Parkolni autóbeállón lehet majd. Az ingatlanhoz tartozik továbbá egy külső tároló is (5,68 nm).
Műszaki paraméterek: 30-as falak 15 cm-es külső szigeteléssel, hőszivattyús padlófűtés, rejtett redőnytokok, klíma kiállások, riasztó vezetékelése.
Az ikerház felek társasházi lakásként fognak egymástól különülni.
Tervezett átadás: legkorábban 2026. őszének eleje, legkésőbb 2026. év vége. A kivitelező több évtizede épít ingatlanokat a budai agglomerációban.
