.
Eladó Ház 2049 Diósd
H516042
Eladó
Családi ház
74 990 000 Ft
2049 Diósd
2 szoba
70 m²
1045 m² telek
Törlesztőrészlet Ft/hó
THM %
0 megtekintés az elmúlt 7 napban
Leírás
Álmai otthona várja Diósdon legkeresettebb helyén Felsőgazdag dűlő város részén, ahol a természet közelsége és a városi élet előnyei harmonikusan találkoznak.

Ez a nettó 70,3 négyzetméteres (Bruttó 85 m2), jelenleg hétvégi ház besorolású ingatlan ideális választás fiatal felnőttek számára, akik szeretnék élvezni a csendes, barátságos környezetet, miközben könnyedén elérhetik a város nyújtotta lehetőségeket. Az ingatlan 1045 m2 telken helyezkedik el, amely bőséges teret biztosít a szabadidős tevékenységekhez, kertészkedéshez, vagy akár egy kis medence kialakításához is.

Helyiségei:

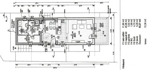
Földszint:
-Nappali - konyha 26,96 m2
-Előszoba 11,6 m2
-Fürdőszoba 4,72 m2
-WC 1,69 m2
-Közlekedő 6,71 m2
-Tároló 5,28m2
-Gardobe 1,69 m2
-Terasz 12,36 m2
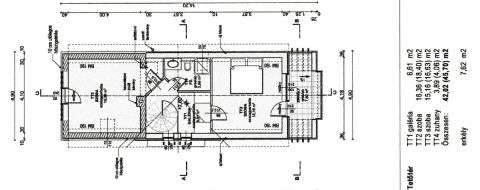
Emelet:
-Szoba 16,36 m2
-Közlekedő 2,0 m2

Az ingatlan állapota jó, jelenleg is lakott. Elindult a családi házzá való átépítése, aminek minden engedélye magvan. Így Önnek csak a személyes ízlésének megfelelően kell befejeznie, amennyiben lát benne fantáziát
3 db klímaberendezés gondoskodik a fűtésről és a nyári melegben a hűtésről.

Diósd Felsőgazdagdűlő városrészének előnye, hogy csendes, mégis közel van a főbb közlekedési csomópontokhoz. A környék biztonságos, családbarát, és számos zöld területet kínál, ahol a szabadban való kikapcsolódásra van lehetőség.

Az iskolák, boltok és szolgáltatások mind a közelben találhatóak, így a mindennapi élet könnyedén megoldható.

Ez az ingatlan nem csupán egy ház, hanem egy lehetőség a jövőjére, amelyben megvalósíthatja álmait. Legyen szó saját otthonról vagy befektetési céllal történő vásárlásról, ez a kiváló elhelyezkedés és a környék adottságai garantálják, hogy jó döntést hoz.

Amennyiben felkeltette érdeklődését ez a remek lehetőség, kérem, ne habozzon kérdéseivel keresni! Bizalommal állok rendelkezésére a hét bármely napján, hogy segítsek Önnek a legjobb döntés meghozatalában.
Mutass többet
Általános adatok
Építés éve:
1970
Belső szintek száma:
Nincs megadva
Épület külső állapota:
3 - Lakható
Épület belső állapota:
3 - Lakható
Fényviszonyok:
Nincs megadva
Nézet:
Panoráma
Fűtés:
Szerkezet:
Tégla
Energetikai besorolás:
Nincs megadva
Víz:
Telken belül
Gáz:
Utcában
Villany:
Telken belül
Csatorna:
Telken belül
Lakáshitel kalkulátor – Spórolj velünk!
Kalkulálj most, és keresd pénzügyi szakértőinket, akik ingyenes tanácsadással segítenek megtalálni a számodra legjobb megoldást!

Hasonló ingatlanok

2049 Diósd

HZ014221 | 4 szoba | 90 m²
120 000 000 Ft

2049 Diósd

HZ068150 | 1 szoba | 30 m²
130 000 000 Ft

2049 Diósd 2049 Diósd, Angeli út környéke

M319396 | 3 szoba | 38 m²
65 000 000 Ft

2049 Diósd Homokos utca közelében.

HZ053697 | 4 szoba | 85 m²
100 000 000 Ft

2049 Diósd

H513135 | 3 szoba | 73 m²
94 900 000 Ft

2049 Diósd

H513141 | 2 szoba | 44 m²
54 990 000 Ft

2049 Diósd Újépítésű modern ikerházfél garázzsal Diósd központi részén

HZ032020 | 4 szoba | 125 m²
134 900 000 Ft

2049 Diósd Diósd, Sashegy

HZ075249 | 2 szoba | 40 m²
35 000 000 Ft

2049 Diósd

HZ058566 | 4 szoba | 181 m²
139 000 000 Ft

2049 Diósd

HZ069089 | 4 szoba | 233 m²
89 900 000 Ft

2049 Diósd Letisztult formák és színek

HZ011623 | 5 szoba | 121 m²
165 000 000 Ft

2049 Diósd

H512868 | 3 szoba | 125 m²
185 900 000 Ft

2049 Diósd

H513132 | 5 szoba | 129 m²
144 900 000 Ft
Bucalics Roxána
Örökös tag csoportvezető
Kapcsolatfelvétel
Hívom
Kapcsolatfelvétel
Kérjen egy személyes megtekintést az ingatlanra a Duna House értékesítőjétől
Válassz egy időpontot