.
Eladó Ház 9751 Vép
H515320
Eladó
Családi ház
Prémium
81 400 000 Ft
9751 Vép
5 szoba
150 m²
975 m² telek
Törlesztőrészlet Ft/hó
THM %
15 megtekintés az elmúlt 7 napban
Leírás
Szeretne Szombathely közvetlen szomszédságában, egy tágas és minden igényt kielégítő otthonban élni? Vépen vált eladóvá ez a kiváló adottságokkal rendelkező, 150 nm-es, kétszintes téglaépítésű családi ház, amely ideális választás nagycsaládosoknak, vagy összeköltözőknek.

Miért ez az ingatlan az álmai otthona?

Hatalmas élettér: Az összesen 150 nm-es lakótér két szinten oszlik el. A földszinten a közösségi életé a főszerep: egy impozáns, 25 nm-es konyha-étkező, egy világos nappali (24 nm) és egy hálószoba (17 nm) várja Önt.
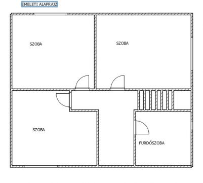
Ideális emeleti elosztás: Az emeleten további 3 tágas, napfényes szoba (25, 18 és 13 nm) és egy külön zuhanyzós fürdőszoba biztosítja a család minden tagjának a privát szférát.
Háromféle fűtési opció: A rezsi miatt sem kell aggódnia! A ház gázcirkóval, vegyestüzelésű kazánnal, vagy a hangulatos vízteres kandallóval is fűthető – Ön dönt, melyik a leggazdaságosabb.
Karbantartott állapot: Az 1990-ben épült ház folyamatosan gondozott, a nyílászárókat már korszerűbbre cserélték, a terasz pedig új burkolatot kapott. Az épület teljes egésze alatt pince található, így a tárolás sem okoz gondot.

Kert és környék:
A 975 nm-es telek tökéletes méretű: elég tágas egy játszótérnek, konyhakertnek, vagy baráti sütögetésekhez, de nem igényel egész embert a fenntartása.

Kiváló lokáció:
Vép infrastruktúrája remek: iskola, óvoda, orvosi rendelő, pékség és boltok sétatávolságra vannak. Szombathely autóval, vagy a jól kiépített buszközlekedéssel percek alatt elérhető.

Ne maradjon le erről a kivételes lehetőségről!

Jöjjön el, nézze meg személyesen és szeressen bele ebbe a tágas, otthonos házba!
Várom hívását a hét bármely napján!
Mutass többet
Általános adatok
Építés éve:
1990
Belső szintek száma:
Nincs megadva
Épület külső állapota:
3 - Lakható
Épület belső állapota:
3 - Lakható
Fényviszonyok:
Nincs megadva
Nézet:
Nincs megadva
Fűtés:
Gáz cirkó
Szerkezet:
Tégla
Energetikai besorolás:
Nincs megadva
Víz:
Telken belül
Gáz:
Telken belül
Villany:
Telken belül
Csatorna:
Telken belül
Lakáshitel kalkulátor – Spórolj velünk!
Kalkulálj most, és keresd pénzügyi szakértőinket, akik ingyenes tanácsadással segítenek megtalálni a számodra legjobb megoldást!

Hasonló ingatlanok

9751 Vép Kossuth Lajos utca közelében

HZ036908 | 4 szoba | 95 m²
37 500 000 Ft
Breglovics Andrea
Örökös tag értékesítő
Kapcsolatfelvétel
Hívom
Kapcsolatfelvétel
Kérjen egy személyes megtekintést az ingatlanra a Duna House értékesítőjétől
Válassz egy időpontot