.
Eladó Ház 2013 Pomáz
H514896
Eladó
Családi ház
Prémium
260 000 000 Ft
2013 Pomáz
5 szoba
286 m²
550 m² telek
Törlesztőrészlet Ft/hó
THM %
2 megtekintés az elmúlt 7 napban
Leírás
ELADÓ PANORÁMÁS, 3 SZINTES CSALÁDI HÁZ POMÁZ KIEMELT ZÖLDÖVEZETI RÉSZÉN

Eladásra kínálunk a Pomáz egyik csendes, zöldövezeti utcájában egy 286 m²-es, tégla építésű, háromszintes családi házat, 550 m²-es telken. Az ingatlan tágas tereivel, jó állapotával és örök panorámájával ideális választás nagycsaládosok vagy akár több generáció együttélésére.

A ház 1996-ban épült, stabil szerkezetű, jó állapotú, délkeleti tájolásának köszönhetően világos és napfényes.

Az ingatlan főbb jellemzői
•Lakótér: 286 m²
•Telek mérete: 550 m²
•Építés módja: tégla
•Szintek száma: 3 (pince + földszint + emelet)
•Szobák száma: 5
•Fürdőszobák: 3
•Külön WC: 2
•Fűtés: gáz cirkó
•Tájolás: délkelet
•35 m²-es terasz
•24 m²-es garázs
•Több tárolóhelyiség
•Aszfaltozott utcában található

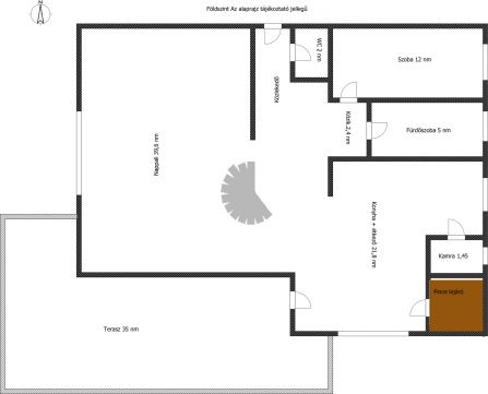
Helyiségek elosztása
Pince – 95,6 m²:
garázs, kazánház, több tárolóhelyiség, közlekedő és lépcsőház.

Földszint – 101,8 m²:
tágas, közel 40 m²-es nappali, konyha + étkező, szoba, kamra, WC, közlekedők, valamint egy panorámás terasz, amely ideális családi vagy baráti összejövetelekhez.

Emelet – 88,9 m²:
3 hálószoba, fürdőszoba, külön WC és előtér.

Környezet és elhelyezkedés
Az ingatlan csendes, zöldövezeti környezetben található, mégis kiváló infrastruktúrával. A környék nyugodt, családbarát, ugyanakkor Budapest könnyen és gyorsan megközelíthető, így ideális azok számára, akik a természet közelségét szeretnék ötvözni a főváros közelségével.
Az ingatlan tágas tereinek és elrendezésének köszönhetően kiválóan alkalmas többgenerációs otthonnak, vagy akár olyan családok számára, akik nagy életteret keresnek nyugodt környezetben.

Prémium irodai szolgáltatásaink
•Kedvezményes ügyvédi háttér
•Ingyenes hitel- és CSOK-ügyintézés
•Teljes körű ügyintézési támogatás az adásvétel minden lépésében
Mutass többet
Általános adatok
Építés éve:
1996
Belső szintek száma:
Nincs megadva
Épület külső állapota:
4 - Jó
Épület belső állapota:
4 - Jó
Fényviszonyok:
Nincs megadva
Nézet:
Nincs megadva
Fűtés:
Gáz cirkó
Szerkezet:
Tégla
Energetikai besorolás:
Nincs megadva
Víz:
Telken belül
Gáz:
Telken belül
Villany:
Telken belül
Csatorna:
Telken belül
Lakáshitel kalkulátor – Spórolj velünk!
Kalkulálj most, és keresd pénzügyi szakértőinket, akik ingyenes tanácsadással segítenek megtalálni a számodra legjobb megoldást!

Hasonló ingatlanok

2013 Pomáz Pomáz panorámás részén

HZ083670 | 4 szoba | 180 m²
132 000 000 Ft

2013 Pomáz Bodza utca

HZ070822 | 8 szoba | 274 m²
129 000 000 Ft

2013 Pomáz

HZ069237 | 5 szoba | 243 m²
199 000 000 Ft

2013 Pomáz Pomáz rózsadomb

HZ039261 | 5 szoba | 153 m²
179 000 000 Ft

2013 Pomáz

HZ048578 | 6 szoba | 208 m²
199 500 000 Ft

2013 Pomáz Messelia

HZ080444 | 4 szoba | 160 m²
175 000 000 Ft

2013 Pomáz

HZ012591 | 4 szoba | 128 m²
64 000 000 Ft

2013 Pomáz

LK093484 | 4 szoba | 131 m²
94 000 000 Ft

2013 Pomáz Boglárka utca

HZ090196 | 4 szoba | 110 m²
85 000 000 Ft

2013 Pomáz POMÁZ PANORÁMÁS RÉSZÉN

HZ023729 | 1 szoba | 44 m²
36 000 000 Ft

2013 Pomáz Füge utca 20

TK035599 | 1034 m²
45 000 000 Ft

2013 Pomáz Pomáz- Majdán fejlődő részén, ÖRÖKPANORÁMÁS , 720 nm-es LAKÓÖVEZETI , építési telek

TK049754 | 720 m²
44 900 000 Ft

2013 Pomáz Pomáz- ÖRÖKPANORÁMÁS, építési telek

TK063515 | 719 m²
47 570 000 Ft

2013 Pomáz Pomáz- MESSALIA HEGYEN , PANORÁMÁS, lakóövezeti építési telek eladó

TK041462 | 558 m²
41 900 000 Ft

2013 Pomáz ÖRÖKPANORÁMÁS LAKÓÖVEZETI telek

TK078541 | 1215 m²
47 500 000 Ft

2013 Pomáz

H504577 | 3 szoba | 95 m²
88 900 000 Ft

2013 Pomáz

HZ027329 | 8 szoba | 240 m²
199 000 000 Ft

2013 Pomáz

H509612 | 5 szoba | 194 m²
149 900 000 Ft

2013 Pomáz

H510463 | 4 szoba | 72 m²
31 500 000 Ft

2013 Pomáz Majdán hegy oldalában

HZ072167 | 3 szoba | 86 m²
145 950 000 Ft
Domjánné Puskás Margit
Örökös tag franchise partner
Kapcsolatfelvétel
Hívom
Kapcsolatfelvétel
Kérjen egy személyes megtekintést az ingatlanra a Duna House értékesítőjétől
Válassz egy időpontot