.
Eladó Ház 1037 Budapest 3. kerület
H508315
Eladó
Családi ház
Prémium
309 000 000 Ft
1037 Budapest 3. kerület
4 szoba
162 m²
423 m² telek
Törlesztőrészlet Ft/hó
THM %
9 megtekintés az elmúlt 7 napban
Leírás
Finoman megkomponált otthon, ahol a fény és a csend egy nyelvet beszél. - Üdv itthon!

RÖVID ÖSSZEFOGLALÓ
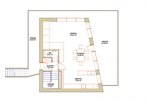
Budapest III. kerületében, a méltán kedvelt, és keresett Testvérhegy a Jablonka útján vált elérhetővé ez a 2020-ben épült családi ház. Az épület háromszintes, 162 m²-es, négyszobás elrendezésű, két fürdőszobával és egy vendégmosdóval, tágas terasszal és erkélykapcsolattal, valamint saját kerttel.
Fűtését gázcirkó látja el padlófűtés és radiátor kombinációjával, a nyári komfortot klíma biztosítja.

A házhoz 423 m²-es kert, és két garázshely tartozik, melynek árát a vételár tartalmazza, csak úgy, mint a beépített bútorzatot, és gépesítést.

LOKÁICIÓ ÉS KÖRNYEZET
A Jablonka út környéke a III. kerület egyik legkedveltebb családiházas övezete – közel a csodás hegyvidéki erdőkhöz, kiránduló helyekhez, - mint a Virányos-nyereg, a Vihar-hegyi kilátópont vagy a híres Guckler Károly-kilátó - mégis néhány percnyire a várostól.

Napjaink legkeresettebb lokációi bírnak ezzel a két fontos tulajdonsággal. Az utóbbi évtizedben nem várt módon felértékelődött a természetközeli helyek értéke, azonban a modern életstílus megköveteli, hogy könnyen és gyorsan elérhető legyen a város annak minden szolgáltatásával.

Ez a kombináció verhetetlen napjaink ingatlanpiacán, és a Jablonka út ennek egyik ékes példája.

Néhány perc alatt elérhető az Árpád -híd és a Margit sziget, a
Reggel, amikor elindul az ember otthonról, egy ismerős arc köszön az utcán – ez a fajta közvetlenség jellemzi a környéket.

A mindennapi élethez szükséges szolgáltatások (boltok, gyógyszertár, iskola, óvoda) minden itt van kézközelben.

ÉPÜLET
A 2020-ben épült ház kortárs, visszafogott eleganciát képvisel.
Világos homlokzatát grafitszürke részletek és üvegkorlátok tagolják, a tágas nyílászárókon át pedig minden évszak a maga hangulatában írja újra az otthon képét.

Tavasszal a kert ébredése az első fényekkel együtt indul: az ablakokon beáradó friss zöld illat a ház minden szintjét átjárja, a nappali teréből nézve a fák rügyezése lassan kibontott festménynek tűnik.
Nyáron a terasz a nappali természetes folytatásává válik – a kert zöldje visszatükröződik az üvegfelületeken, a levegőben grillezés, friss fű és esti bor illata keveredik. Ilyenkor a ház valóban együtt él a kinttel.
Ősszel az erdő közelsége új színt hoz: a domboldal aranyló levelei a homlokzatról visszaverődő fényekkel játszanak, a teraszról kilépve érezni a nedves föld és a lehulló levelek illatát – ez a ház ilyenkor különösen otthonos, bensőséges.
Télen a panoráma megváltozik, a kert letisztul, a ház belsejéből pedig a kinti csend még mélyebbnek tűnik. A meleg fények, a padlófűtés finom hője és a közös nyugodt esték meghitt hangulatot teremtenek – ez az időszak, amikor az otthon szó valódi értelmet nyer, amire évekkel később is jó visszaemlékezni.

Az épület minden részletében az arány és a funkcionalitás találkozik: a garázs két autó számára kínál fedett helyet, a kert pedig teraszosan követi a domboldalt, így a ház minden szintjén megmarad a kapcsolat a zölddel és a kilátással.
A ház nemcsak egy hely, hanem egy évszakokon átívelő élmény, ahol a természet ritmusa és az emberi élet ritmusa egymásra hangolódik.

AZ OTTHON BELSŐ VILÁGA
Belépve a térbe, az első benyomás a nyugalom és az arányok rendje.
Világos tónusok, meleg fa felületek és finoman textúrált anyagok fonódnak össze, mintha minden részlet azt suttogná: „jó itthon lenni”.

A földszint a családi élet természetes központja.
A nappali, az étkező és a konyha egyetlen áramló térben kapcsolódik össze — ott, ahol az illatok, a fények és a nevetések találkoznak.
A modern, beépített konyha a sötét és világos fa árnyalataival játszik, az étkezősziget körül pedig mindig történik valami: a reggeli készülődés izgalma, a délutáni beszélgetés biztonsága, közös vacsorák hangulata ad értelmet a funkcionalitásnak.

A felső szint csodás panorámával és erkélykapcsolattal kényezteti a család minden tagját, itt három külön bejáratú hálószoba és két fürdőszoba kapott helyet.
A gyerekszobákban van hely a rendnek és a játéknak is, szülői háló pedig a kert felé fordul — itt a csend nem üresség, hanem nyugodt megérkezés.
A fürdőszobák márványhatású burkolatai és lágy fényei az esti rituáléknak ad letisztult, kellemes, tiszta teret.

A padlófűtés és radiátor kombinációja télen finom, egyenletes meleget ad, a klíma pedig nyáron is hűvösen tartja a tereket. A gardrób és a háztartási helyiség csendben végzi a dolgát – támogatja a családot abban, hogy minden a helyén maradjon, miközben az élet zajlik körülötte.

ÖSSZEGZÉS ÉS KAPCSOLATFELVÉTEL
Ez az otthon a modern családi élet kényelmének esszenciája – egyszerre elegáns és természetes, praktikus és meghitt. Aki ide belép, az nemcsak házat lát, hanem egy olyan életteret, ahol minden részlet a kiegyensúlyozott életet szolgálja.

Ha szeretné megtapasztalni, milyen érzés, amikor az otthon valóban az élet középpontja,
keressen bizalommal, és szívesen bemutatom személyesen ezt a különleges házat a Jablonka úton.
Mutass többet
Általános adatok
Építés éve:
2020
Belső szintek száma:
Nincs megadva
Épület külső állapota:
5 - Nagyon jó
Épület belső állapota:
5 - Nagyon jó
Fényviszonyok:
Nincs megadva
Nézet:
Nincs megadva
Fűtés:
Gáz cirkó
Szerkezet:
Tégla
Energetikai besorolás:
CC
Víz:
Telken belül
Gáz:
Telken belül
Villany:
Telken belül
Csatorna:
Telken belül
Lakáshitel kalkulátor – Spórolj velünk!
Kalkulálj most, és keresd pénzügyi szakértőinket, akik ingyenes tanácsadással segítenek megtalálni a számodra legjobb megoldást!

Hasonló ingatlanok

1037 Budapest 3. kerület tetőteraszos, örökpanorámás minimál stílusú ház Testvérhegyen!

PR054679/HZ/10190 | 1 szoba | 188 m²
285 000 000 Ft

1037 Budapest 3. kerület tetőteraszos, örökpanorámás minimál stílusú ház Testvérhegyen!

PR054679/HZ/10191 | 1 szoba | 187 m²
345 000 000 Ft

1038 Budapest 3. kerület 3.kerület Józsefhegyen

HZ014582 | 4 szoba | 155 m²
279 000 000 Ft

1037 Budapest 3. kerület Eladó a 3.kerületben Aranyhegyen egy ikerház fél !!

HZ065960 | 4 szoba | 209 m²
288 000 000 Ft

1037 Budapest 3. kerület Eladó a 3.kerületben Aranyhegyen egy Családi ház!!

HZ060714 | 5 szoba | 241 m²
388 000 000 Ft

1031 Budapest 3. kerület

UZ075892 | 5 szoba | 260 m²
290 000 000 Ft

1039 Budapest 3. kerület

HZ029474 | 8 szoba | 214 m²
179 900 000 Ft

1038 Budapest 3. kerület III. kerület, Rókahegy legszebb részén

PR028777/HZ/21199 | 5 szoba | 149 m²
242 500 000 Ft

1038 Budapest 3. kerület III. kerület, Rókahegy legszebb részén

PR028777/HZ/21206 | 4 szoba | 151 m²
253 575 000 Ft

1038 Budapest 3. kerület III. kerület, Rókahegy legszebb részén

PR028777/HZ/21208 | 3 szoba | 151 m²
264 600 000 Ft

1039 Budapest 3. kerület Üdülő övezeti telek, üdülő épület a Római parton

HZ011153 | 1 szoba | 950 m²
410 000 000 Ft

1037 Budapest 3. kerület

HZ037189 | 7 szoba | 433 m²
429 000 000 Ft

1038 Budapest 3. kerület Rókahegy lábánál

HZ014335 | 6 szoba | 342 m²
249 000 000 Ft

1039 Budapest 3. kerület Csillaghegy Dunai oldalán , ÖNÁLLÓ családi ház

HZ072860 | 3 szoba | 200 m²
192 000 000 Ft

1038 Budapest 3. kerület Róka-hegy

HZ098095 | 6 szoba | 180 m²
161 500 000 Ft

1037 Budapest 3. kerület

HZ054482 | 5 szoba | 193 m²
265 000 000 Ft

1037 Budapest 3. kerület

HZ019504 | 5 szoba | 193 m²
265 000 000 Ft

1037 Budapest 3. kerület

HZ080023 | 5 szoba | 340 m²
457 000 000 Ft

1031 Budapest 3. kerület Keve utca

HZ014165 | 6 szoba | 220 m²
399 000 000 Ft

1031 Budapest 3. kerület Rámhegy utca

HZ023469 | 5 szoba | 300 m²
330 000 000 Ft
Pántya Mónika
Arany fokozatú értékesítő
Kapcsolatfelvétel
Hívom
Kapcsolatfelvétel
Kérjen egy személyes megtekintést az ingatlanra a Duna House értékesítőjétől
Válassz egy időpontot