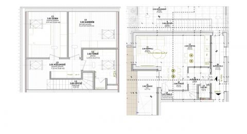
A lakás kialakítása a modern életmód igényeire szabott, tágas és praktikus elrendezéssel. A lakótér központjában található egy jól felszerelt konyha, amely közvetlen kapcsolatban áll az étkezővel és a világos, kényelmes nappalival, így tökéletes helyszínt biztosít a családi és baráti összejövetelekhez.
A társasházban további lakások is elérhetőek, érdeklődjön telefonon!
A lakás belső terei igény szerint módosíthatóak!
A lakásban egy fürdőszoba, egy különálló WC helyiség, valamint egy külön mosókonyha is helyet kapott, amelyek a mindennapi élet kényelmét szolgálják. A három különálló szoba biztosítja a magánszféra lehetőségét, legyen szó hálószobáról, dolgozószobáról vagy gyerekszobáról.
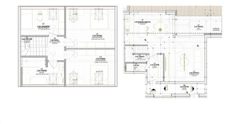
A lakáshoz tartozik egy hatalmas terasz, valamint egy nagy kert is, amely tökéletes helyszínt kínál a szabadidős tevékenységekhez, a gyerekek játékához vagy akár kerti összejövetelekhez, így még inkább növeli az otthon értékét és vonzerejét.
Az átgondolt elrendezés és a modern kialakítás garantálja, hogy otthona ne csak szép, de funkcionális is legyen.
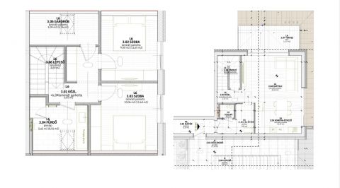
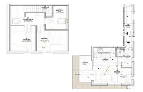
Helyiség lista:
Előtér - greslap - 7,37 m2
WC - greslap - 1,44 m2
Háztartási helyiség - greslap - 3,19 m2
Előtér - greslap - 1,79 m2
Konyha - greslap - 11,60 m2
Étkező - laminált parketta - 15,62 m2
Nappali - laminált parketta - 19,55 m2
Szoba - laminált parketta - 14,41 m2
Szoba - laminált parketta - 11,21 m2
Fürdő - greslap - 5,92 m2
Szoba - laminált parketta - 9,45 m2
Terasz - térkő - 12,53 m2
Kert - 72,00 m2
Műszaki tartalom:
- 30cm X-Therm vázkerámia falazó-blok, 12cm grafitos hőszigetelés
- 30cm födém szigetelés
- Hőszigetelt műanyag nyílászárók
- Földszinti gépházban kialakított hőszivattyús padlófűtésrendszer és lakásonként fan-coil gyors felfűtésre és hűtésre alkalmas rendszer, HMV körben kialakított használati meleg víz cirkulációs rendszer
- Konyhákban, fürdőszobákban, Wc-ben kialakított szellőztetőrendszer közvetlenül a szabadba vezetve
A társasházban további lakások is elérhetőek, érdeklődjön telefonon!
A lakás belső terei igény szerint módosíthatóak!
A lakásban egy fürdőszoba, egy különálló WC helyiség, valamint egy külön mosókonyha is helyet kapott, amelyek a mindennapi élet kényelmét szolgálják. A három különálló szoba biztosítja a magánszféra lehetőségét, legyen szó hálószobáról, dolgozószobáról vagy gyerekszobáról.
A lakáshoz tartozik egy hatalmas terasz, valamint egy nagy kert is, amely tökéletes helyszínt kínál a szabadidős tevékenységekhez, a gyerekek játékához vagy akár kerti összejövetelekhez, így még inkább növeli az otthon értékét és vonzerejét.
Az átgondolt elrendezés és a modern kialakítás garantálja, hogy otthona ne csak szép, de funkcionális is legyen.
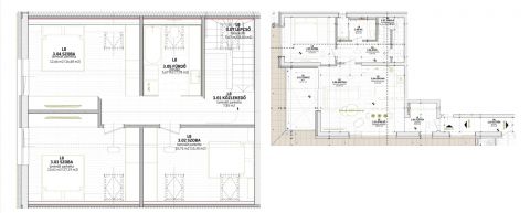
Helyiség lista:
Előtér - greslap - 7,37 m2
WC - greslap - 1,44 m2
Háztartási helyiség - greslap - 3,19 m2
Előtér - greslap - 1,79 m2
Konyha - greslap - 11,60 m2
Étkező - laminált parketta - 15,62 m2
Nappali - laminált parketta - 19,55 m2
Szoba - laminált parketta - 14,41 m2
Szoba - laminált parketta - 11,21 m2
Fürdő - greslap - 5,92 m2
Szoba - laminált parketta - 9,45 m2
Terasz - térkő - 12,53 m2
Kert - 72,00 m2
Műszaki tartalom:
- 30cm X-Therm vázkerámia falazó-blok, 12cm grafitos hőszigetelés
- 30cm födém szigetelés
- Hőszigetelt műanyag nyílászárók
- Földszinti gépházban kialakított hőszivattyús padlófűtésrendszer és lakásonként fan-coil gyors felfűtésre és hűtésre alkalmas rendszer, HMV körben kialakított használati meleg víz cirkulációs rendszer
- Konyhákban, fürdőszobákban, Wc-ben kialakított szellőztetőrendszer közvetlenül a szabadba vezetve