Debrecen Homokkertben hamarosan költözhető belső 2 szintes, gyönyörű, tágas nappali + 4 szobás ikerházi lakások!
A teljes telek méret 1280 nm. Az egyes ingatlanokhoz kb. 600m2-es telekterületek.
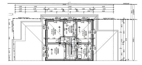
A mai kor elvárásainak megfelelő minőségben megépített ikerházak több, mint 160 m2 alapterületekkel rendelkeznek. Kiválkó alaprajzi elrendezéssel, nappali+ 4 hálószobával !
A földszinten a 19m2-es garázs( melyből közvetlenül a lakásba is van bejárat), a közel 50 m2-es tágas nappali+étkező-konyha egy hatalmas, 16m2-es szülői háló a hozzá tartozó gardrób és privát fürdő, valamint a vendég mosdó található.
Az emeleten további 3 hálószoba, hatalmas fürdő (dupla mosdó, fürdőkád és épített zuhany), külön háztartási helyiség kapott helyet.
A ház homlokzati képe a modern, mediterrán stílust képviseli, kellemes meleg hangulatot áraszt.
Műszaki jellemzői:
- 30-as téglafalazat
- 15-ös szigeteléssel
- 3 rétegű nyílászárók
- hőszivattyús fűtés (padlózati leosztással, H tarifával))
- szekcionált garázskapu
- elektromos redőnyök
- napelemrendszer előkészítéssel
Szeretne többet megtudni erről a nagyszerű lehetőségről?
Kérdéseivel és megtekintéssel kapcsolatban várom hívását!
A teljes telek méret 1280 nm. Az egyes ingatlanokhoz kb. 600m2-es telekterületek.
A mai kor elvárásainak megfelelő minőségben megépített ikerházak több, mint 160 m2 alapterületekkel rendelkeznek. Kiválkó alaprajzi elrendezéssel, nappali+ 4 hálószobával !
A földszinten a 19m2-es garázs( melyből közvetlenül a lakásba is van bejárat), a közel 50 m2-es tágas nappali+étkező-konyha egy hatalmas, 16m2-es szülői háló a hozzá tartozó gardrób és privát fürdő, valamint a vendég mosdó található.
Az emeleten további 3 hálószoba, hatalmas fürdő (dupla mosdó, fürdőkád és épített zuhany), külön háztartási helyiség kapott helyet.
A ház homlokzati képe a modern, mediterrán stílust képviseli, kellemes meleg hangulatot áraszt.
Műszaki jellemzői:
- 30-as téglafalazat
- 15-ös szigeteléssel
- 3 rétegű nyílászárók
- hőszivattyús fűtés (padlózati leosztással, H tarifával))
- szekcionált garázskapu
- elektromos redőnyök
- napelemrendszer előkészítéssel
Szeretne többet megtudni erről a nagyszerű lehetőségről?
Kérdéseivel és megtekintéssel kapcsolatban várom hívását!