.

Projekt részletek

Info:
*** ÖRÖKPANORÁMÁS VÍZPARTI LUXUS APARTMANOK***

BALATONI ELEGANCIA, MAXIMÁLIS KÉNYELEM, KÖZVETLEN VÍZPARTI ÉLETÉRZÉS EGÉSZ ÉVBEN

Fedezze fel Siófok, sőt talán a Balaton legelbűvölőbb, érintetlen szépségű részét  az Ezüstparton. Ez az exkluzív újépítésű projekt mindazt kínálja, amit a Balaton szerelmesei álmaikban elképzelnek.

Egy hely, ahol a Balaton valódi hangulata ötvöződik a korszerű apartmanok kényelmével. A közvetlen vízparti elhelyezkedés, az igényes kialakítás és a prémium kivitelezés garantálja, hogy új otthona nemcsak pihenésre, hanem hosszú távú értékmegőrzésre is tökéletes választás.

Örökpanoráma: Minden lakásból lélegzetelállító kilátás nyílik a Balaton végtelen kékjére, hogy minden reggel a természet szépségében gyönyörködhessen.

Vízparti elhelyezkedés: Az otthonából egyetlen lépés a tóparti sétány vagy a szabadstrand.

Luxus életérzés: Modern, prémium kialakítású lakások magas színvonalú belsőépítészeti megoldásokkal, ahol a kényelem és az elegancia harmóniában találkozik.

Praktikum és kényelem: Nyitott parkolóhelyek, saját gépkocsibeálló

Balatoni életérzés: Egy hely, ahol a naplementék, a pezsgő tóparti élet és a nyugalom tökéletes egyensúlyban találkozik.

Legyen Ön is részese a Balaton nyújtotta életérzésnek!
Foglalja le álmai otthonát most, és élvezze a Balaton örökké változó, mégis mindig lenyűgöző hangulatát minden évszakban.

Érdeklődjön még ma, hogy az elsők között választhasson!

Panoráma:
Minden apartman elvehetetlen balatoni örök panorámával rendelkezik.

Nyílászárók:
3 rétegű argon gázzal töltött GEALAN profilú nyílászárók.

Hűtés-fűtés:
Az apartmanok hűtése-fűtése VRF inverteres levegő-levegő hőszivattyús rendszer

Lift:
Szintenként 8 személyes OTIS felvonó

Intelligens otthonok:
A Balaton partján úttörőként, a projekt luxus apartmanjai egy igazón jövőbe mutató és sokoldalú intelligens rendszerrel rendelkeznek. A vezeték nélküli technológiának köszönhetően rugalmasan, vésés, bontás és kábelezés nélkül bővíthető FIBARO okos otthon maximális kényelmet, biztonságot és energiatudatos életvitelt biztosít leendő tulajdonosának.
A telefonos applikáció segítségével Ön bárhol, bármikor ellenőrizheti otthona biztonságát, irányíthatja hűtés-fűtését, világítását, sőt, elektromos eszközeit is.

Ingatlanok: 19
Árak: 117 300 000 Ft - 232 900 000 Ft
Méretek: 46 - 96 m2
Emeletek: Földszint - 2
Befejezés dátuma: 2026-12-31

Eladó lakás, ház

(19)
Kérek értesítést, ha a megadott szempontoknak megfelelő új ingatlan kerül feltöltésre.

Ezüstpart

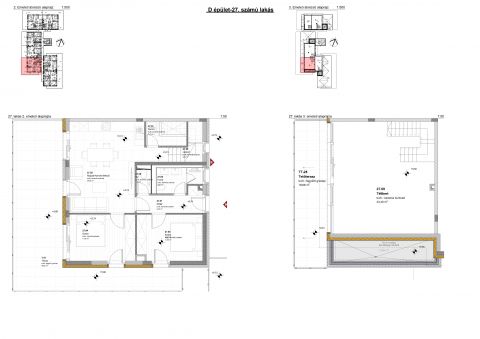
PR029267/LK/26887 | 3 szoba | 66 m²
222 700 000 Ft

Ezüstpart

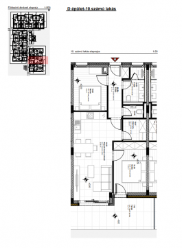
PR029267/LK/26885 | 2 szoba | 46 m²
117 300 000 Ft

Ezüstpart

PR029267/LK/26883 | 4 szoba | 78 m²
166 600 000 Ft

Ezüstpart

PR029267/LK/26879 | 5 szoba | 94 m²
232 900 000 Ft

Ezüstpart

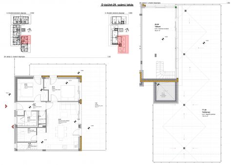
PR029267/LK/26861 | 3 szoba | 77 m²
195 500 000 Ft

Ezüstpart

PR029267/LK/26859 | 5 szoba | 96 m²
215 900 000 Ft

Ezüstpart

PR029267/LK/26855 | 2 szoba | 50 m²
139 400 000 Ft

Ezüstpart

PR029267/LK/26853 | 3 szoba | 61 m²
130 900 000 Ft

Ezüstpart

PR029267/LK/26851 | 3 szoba | 58 m²
117 300 000 Ft

Ezüstpart

PR029267/LK/26847 | 3 szoba | 61 m²
136 000 000 Ft

Ezüstpart

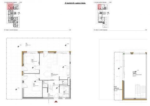
PR029267/LK/26845 | 3 szoba | 58 m²
119 000 000 Ft

Ezüstpart

PR029267/LK/26843 | 3 szoba | 58 m²
119 000 000 Ft

Ezüstpart

PR029267/LK/26841 | 3 szoba | 60 m²
141 100 000 Ft

Ezüstpart

PR029267/LK/26839 | 3 szoba | 58 m²
119 000 000 Ft

Ezüstpart

PR029267/LK/26837 | 3 szoba | 59 m²
139 400 000 Ft

Ezüstpart

PR029267/LK/26833 | 3 szoba | 62 m²
147 900 000 Ft