.
Kiadó Vendéglátás 1088 Budapest 8. kerület
€ 26 000
1088 Budapest 8. kerület
2700 m²
5 megtekintés az elmúlt 7 napban
Leírás
Az ingatlan néhány évvel ezelőttig hostelként, előtte zenés-táncos szórakozóhelyként működött. Alapterülete 2.700 nm, 5 szintes (pince, földszint + 3 szint). 2005-ben teljes körű műszaki felújításon esett át. 2015-2016-ban belső felújítások történtek, burkolatok cseréje, festés, tapétázás, 2019-ben a fűtést korszerűsítették.

Elhelyezkedés:
A Palotanegyedben, belvárosi környezetben található a Rákóczi út mellékutcájában. Környezetében lakóházak, oktatási intézmények, irodák, kereskedelmi egységek vannak. Több buszjárat, és metro megállója is a közelben van.

Elrendezése:
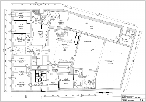
A pinceszinten kapott helyet a konyha és egy hangszigetelt söröző.
A földszinten előadó terem, oktató terem, a recepció és 7 db szoba található.
Az első emeleten 17 db szoba, egy részben fedett terasz és büfé/kávézó kapott helyet.
a 2. és 3. emeleteken 16 + 16 db szoba került kialakításra A szobák 2-6 személyesek, csoportonként közös vizes helyiségekkel.

Az épület fűtése központi gázkazánokkal, radiátorokon keresztül, hűtése központi klímával megoldott. A központi klíma 100 kW/h hűtési teljesítményt tud. Schrack rendszerű tűzjelző hálózat van kiépítve.

jelenlegi elosztás: 56 db szoba 170-180 férőhely, konyha, hangszigetelt söröző, konferencia termek, részben fedett terasz.

A tulajdonos hosszú távra szeretné kiadni, legalább 5 évre. Az átalakítás megfelelő egyeztetések mentén lehetséges. 
Mutass többet
Általános adatok
Ingatlan állapota:
4 - Jó
Építés éve:
1889
Legutóbbi felújítás éve:
2005, 2016
Fűtés:
Gáz kazán
Energetikai besorolás:
Nincs megadva
Keresd szakértőinket a legmegfelelőbb pénzügyi megoldásért!
A kapcsolatfelvétel nem jelent számodra semmilyen kötelezettséget.
Patlók László
Briliáns fokozatú franchise partner
Kapcsolatfelvétel
Hívom
Kapcsolatfelvétel
Kérjen egy személyes megtekintést az ingatlanra a Duna House értékesítőjétől
Válassz egy időpontot