.
Eladó Vendéglátás 7815 Harkány
178 000 000 Ft
7815 Harkány
966 m²
2 megtekintés az elmúlt 7 napban
Leírás
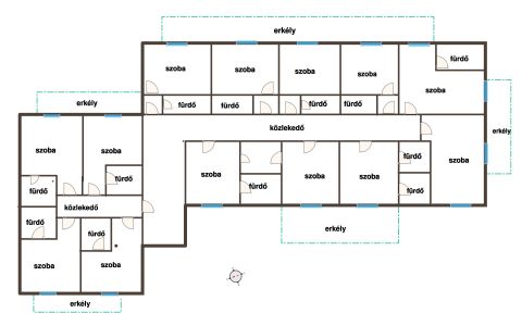
Eladó Harkány központjában, 5 perc sétára a strand főbejáratától egy 21 szobás hotel.
A földszinten egy hatalmas társalgó-étterem,  konyha, 8 db szoba fürdővel és kiszolgáló helyiségek találhatóak. 
Az első szinten 13 szoba fürdővel, közlekedő és kiszolgáló helyiségek. 
A második, tetőtéri szint bármikor beépíthető, közművek felvezetve, lépcső kialakítva, tervrajzok is megvannak további 7 szoba kialakítására.
Az ingatlan egy közel 3000 nm-es, körbekerített, parkosított telken fekszik,  az udvarban parkolók kialakítva, akár buszokkal is kényelmesen lehet parkolni.
Az épület karbantartott, jó állapotú, jelenleg is hotelként üzemel.
Kiváló befektetés lehet, üzemeltethető tovább jelenlegi állapotában hotelként,  de akár lakások kialakítása is könnyedén megoldható, esetleg nyugdíjas ház is kialakítható belőle. 
Bővebb információkért hívjon bizalommal!


Mutass többet
Általános adatok
Ingatlan állapota:
4 - Jó
Építés éve:
1980
Legutóbbi felújítás éve:
Nincs megadva
Fűtés:
Gáz cirkó
Energetikai besorolás:
Nincs megadva
Keresd szakértőinket a legmegfelelőbb pénzügyi megoldásért!
A kapcsolatfelvétel nem jelent számodra semmilyen kötelezettséget.

Hasonló ingatlanok

7815 Harkány

HZ086858 | 4 szoba | 260 m²
51 900 000 Ft

7815 Harkány

HZ056197 | 8 szoba | 248 m²
97 900 000 Ft

7815 Harkány

VL055270 | 8 szoba | 1801 m²
333 929 400 Ft
Grecht Béla
Ezüst fokozatú értékesítő
Kapcsolatfelvétel
Hívom
Kapcsolatfelvétel
Kérjen egy személyes megtekintést az ingatlanra a Duna House értékesítőjétől
Válassz egy időpontot