.
Eladó Vendéglátás 7121 Szálka
VL017064
Eladó
Panzió
Új
Prémium
189 000 000 Ft
7121 Szálka
450 m²
3 megtekintés az elmúlt 7 napban
Leírás
Kivételes befektetési lehetőség Szálka szívében eladó a Trófea Étterem és Panzió!

Ha egy kiváló adottságokkal rendelkező ingatlant keres, festői környezetben, akkor ez az ingatlan ideális választás lehet. Szálka központjában kínáljuk megvételre a Trófea Étterem és Panzió épületét, amely a településen áthaladó főút mellett található, így könnyen megközelíthető és jól látható helyen fekszik.

A 2972 m²-es telken elhelyezkedő, 450 m² hasznos alapterületű épület vendéglátó- és szálláshelyként működött, így akár azonnal tovább üzemeltethető, de számos más turisztikai vagy rendezvénycélú hasznosításra is kiválóan alkalmas. A hangulatos, térkövezett terasz különleges atmoszférát biztosít a vendégek számára a melegebb hónapokban.

Az ingatlan 2006-ban épült, majd 2015-ben tetőtér-beépítéssel bővült. Masszív tégla falazat, 5 cm hőszigetelés, kiváló állapotú tetőszerkezet Bramac cserépfedéssel gondoskodik az épület tartósságáról. A komfortot hőszigetelt fa nyílászárók, 2 kondenzációs gázkazán radiátoros fűtéssel, valamint 4 klímaberendezés biztosítják. Az elektromos hálózat 3 fázisú, 150 Amper kapacitású, amely a vendéglátóipari működéshez is megfelelő. Az épület riasztórendszerrel védett.

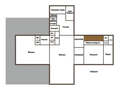
A földszinten található az étterem több mint 104 m²-es vendégtere, amely akár 100 fő egyidejű fogadására alkalmas ideális családi rendezvények, céges események vagy turistacsoportok számára. A vendégtérhez bárpult, konyha és a működéshez szükséges kiszolgáló helyiségek kapcsolódnak. Ezen a szinten található továbbá recepció, személyzeti öltöző és vizesblokkok is.

Az emeleten 10 világos, napfényes szoba került kialakításra, mindegyik saját fürdőszobával, így a panzió összesen 25 vendég kényelmes elszállásolását teszi lehetővé.

Az ingatlanhoz saját, szilárd burkolatú parkoló tartozik, valamint az udvarban további parkolóhelyek kialakítására is van lehetőség, ami különösen fontos nagyobb vendégforgalom esetén.

A környék rendkívül népszerű a természetkedvelők körében: a közeli tó és a gyönyörű táj horgászat, úszás, túrázás és kerékpározás lehetőségét kínálja, így a hely egész évben vonzó úti cél a turisták számára.

Ez az ingatlan nem csupán egy épület, hanem egy kész lehetőség: egy hely, ahol a vendéglátás, a turizmus és a természet közelsége találkozik.

Amennyiben az ingatlan felkeltette érdeklődését, várom megtisztelő hívását!
Mutass többet
Általános adatok
Ingatlan állapota:
4 - Jó
Építés éve:
2006
Legutóbbi felújítás éve:
Nincs megadva
Fűtés:
Gáz cirkó
Energetikai besorolás:
Nincs megadva
Keresd szakértőinket a legmegfelelőbb pénzügyi megoldásért!
A kapcsolatfelvétel nem jelent számodra semmilyen kötelezettséget.
Molnár Viktória
Arany fokozatú értékesítő
Kapcsolatfelvétel
Hívom
Kapcsolatfelvétel
Kérjen egy személyes megtekintést az ingatlanra a Duna House értékesítőjétől
Válassz egy időpontot