.
Eladó Üzlethelyiség 2083 Solymár
UZ062252
Eladó
Utcai bejárattal
154 800 000 Ft
2083 Solymár
129 m²
4 megtekintés az elmúlt 7 napban
Leírás
LEGYEN SAJÁT ÜZLETE, VAGY ADJA BÉRBE !

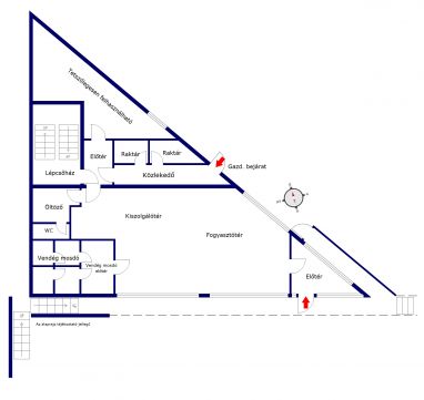
Solymár kapujában, karnyújtásnyira a Budapest táblától eladó egy 129 nm alapterületű vadonatúj üzlethelyiség !
Az épület  két oldalán 25 m hosszú portállal rendelkező  ingatlan egy új építésű, mindössze két lakást és ezt az üzlethelyiséget magában foglaló épület földszintjét foglalja el.

Különleges megjelenése alkalmassá teszi exkluzív bemutatóterem, vagy értékesítési pont létrehozására, de irodának, vagy szalonnak is megfelelhet !

Műszakilag lehetséges akár 3 kisebb üzlethelyiségre is bontani, így kiválóan bérbeadható és állandó jövedelmet biztosíthat Önnek !

Az utca felől 4 db gépkocsiparkoló is tartozik hozzá.

Különleges design, kiváló anyagok, magas minőségi kivitelezés jellemzi. Energiatakarékos, hőszivattyús fűtés biztosítja a komfortos hőmérsékletet.
Átadása 2026. végén várható, így most még az Ön ízléséhez igazítható ! Kérésre szívesen küldök további műszaki jellemzőket.

Az épület kivitelezője számos referenciával rendelkezik.
Esetleges hiteligénylésében is díjmentesen segítünk.

Hívjon és lássa vállalkozása jövőjét !

Mutass többet
Általános adatok
Üzlethelyiség állapota:
6 - Új. ép.
Építés éve:
2026
Lift:
Nincs Lift
Épület külső állapota:
6 - Új. ép.
Épület belső állapota:
6 - Új. ép.
Parkolás:
Üzlethelyiség saját parkolójában
Portál szélessége:
25.00 m
Fűtés:
Hőszivattyú
Energetikai besorolás:
Nincs megadva
Keresd szakértőinket a legmegfelelőbb pénzügyi megoldásért!
A kapcsolatfelvétel nem jelent számodra semmilyen kötelezettséget.
Hajnáczki Edina
Arany fokozatú értékesítő
Kapcsolatfelvétel
Hívom
Kapcsolatfelvétel
Kérjen egy személyes megtekintést az ingatlanra a Duna House értékesítőjétől
Válassz egy időpontot