.
Eladó Telek 1086 Budapest 8. kerület , Azonnal kezdhető projekt 55 lakás+fszti helyiségek, parkolók
TK040714
Eladó
Lakóövezeti telek
950 000 000 Ft
1086 Budapest 8. kerület , Azonnal kezdhető projekt 55 lakás+fszti helyiségek, parkolók
1407 m²
Törlesztőrészlet Ft/hó
THM %
28 megtekintés az elmúlt 7 napban
Leírás
FEJLESZTŐKNEK !!!

A Nemzeti Közszolgálati Egyetem közelében eladó egy azonnal indítható projekt.
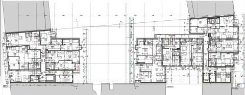
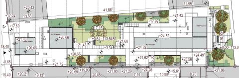
Az engedély két épületben 55 lakásra, bruttó 5611nm-en, a földszinten klubhelyiségekre, (bicikli)tárolókra, stb., az 1-7. emeletig lakásokra szól.
A parkolószinten 31 db beálló(nem kell résfalazni), valósulhat meg, a maradék parkolókra megállapodás született a helyi önkormányzattal.
4500nm plusz 280nm erkély, ill. a parkoló értékesíthetők.
Az építési napló 2022.12 hónapban megnyílt, az építkezés befejezésére 6 év áll rendelkezésre.
Projekt eladás, vagy a telek eladása van az építési engedéllyel, ill. a kiviteli tervekkel.
Hívjon a részletekért !

Mutass többet
Általános adatok
Víz:
Ingatlanban
Gáz:
Ingatlanban
Villany:
Ingatlanban
Csatorna:
Ingatlanban
Lakáshitel kalkulátor – Spórolj velünk!
Kalkulálj most, és keresd pénzügyi szakértőinket, akik ingyenes tanácsadással segítenek megtalálni a számodra legjobb megoldást!

Hasonló ingatlanok

1089 Budapest 8. kerület Orczy Tér

TK020786 | 695 m²
289 000 000 Ft

1084 Budapest 8. kerület

TK073025 | 719 m²
425 000 000 Ft

1086 Budapest 8. kerület Jogerős ép. eng. 50 lakásra

TK016349 | 1036 m²
590 000 000 Ft

1084 Budapest 8. kerület 1084 BudapestJózsef utca 51

TK090248 | 689 m²
450 000 000 Ft
Surányi László
Örökös tag értékesítő
Kapcsolatfelvétel
Hívom
Kapcsolatfelvétel
Kérjen egy személyes megtekintést az ingatlanra a Duna House értékesítőjétől
Válassz egy időpontot