.
Eladó Telek 1142 Budapest 14. kerület
T041034
Eladó
Lakóövezeti telek
Prémium
139 900 000 Ft
1142 Budapest 14. kerület
464 m²
Törlesztőrészlet Ft/hó
THM %
6 megtekintés az elmúlt 7 napban
Leírás
Alsórákos zöldövezeti részén eladó egy 464 négyzetméteres telek egy félkész házzal!

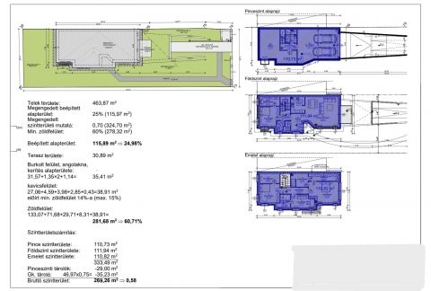
A garázs szint 111,94 m², a földszint 110,73 m², az emelet 110,84 m², összesen 333,49 m² terület van.
A ház az Lk-2/8 építési övezetben van, szintterületi mutató nélküli része a 14.kerületnek.
30% beépíthetőség felszín felett, 40% felszín alatt, 55% zöldfelület, 8 méteres maximális párkánymagasság.
Az ár magában foglalja az ÁFÁT.

A ház befejezésével, egy kitűnő lokációban lévő hatalmas kertes házat kapunk.
Az Erzsébet Királyné útjának közelsége miatt kitűnő a tömegközlekedési lehetőség, M3 -as bevezető szintén közel van.
Boltok bevásárlási lehetőség séta távolságra.

Jöjjön el és tekintse meg ezt a ritka lehetőséget.
Mutass többet
Általános adatok
Víz:
Telken belül
Gáz:
Utcában
Villany:
Telken belül
Csatorna:
Telken belül
Lakáshitel kalkulátor – Spórolj velünk!
Kalkulálj most, és keresd pénzügyi szakértőinket, akik ingyenes tanácsadással segítenek megtalálni a számodra legjobb megoldást!

Hasonló ingatlanok

1147 Budapest 14. kerület Lőcsei úton 283 m2 telken családi ház!

HZ037083 | 3 szoba | 100 m²
125 000 000 Ft

1141 Budapest 14. kerület Alsórákos,Álmos vezér udvar!

HZ099400 | 3 szoba | 60 m²
168 000 000 Ft
Széllné Baji Gabriella
Ezüst fokozatú értékesítő
Kapcsolatfelvétel
Hívom
Kapcsolatfelvétel
Kérjen egy személyes megtekintést az ingatlanra a Duna House értékesítőjétől
Válassz egy időpontot