.
Eladó Telek 2141 Csömör
T039676
Eladó
Lakóövezeti telek
Prémium
59 900 000 Ft
2141 Csömör
804 m²
Törlesztőrészlet Ft/hó
THM %
3 megtekintés az elmúlt 7 napban
Leírás
CSÖMÖRÖN, CSENDES UTCÁJÁBAN! Eladó egy szerkezetkész ház, teljes tervdokumentációval!

Eladásra kínálunk egy 804 nm-es, összközműves telket, melyen található egy szerkezetkész ingatlan, amely egyedi tervek alapján készült, masszív, stabil alapra, ami egy igazán különleges otthon alapjait képezi.
Az ingatlan egy nyugodt, csendes utcában helyezkedik el. Ideális választás mindazok számára, akik szeretnék saját elképzeléseik szerint befejezni új otthonukat.

Ingatlan paraméterek:
Telek mérete: 804 m²
A házhoz teljeskörűen megtervezett építési és engedélyezési tervek állnak rendelkezésre, amik a településképi véleményezés által is el lettek fogadva, így az új tulajdonosnak már csak a kiviteli terveket kell megcsináltatnia.
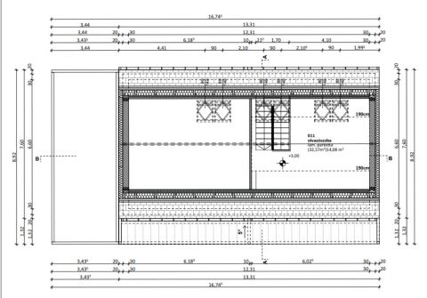
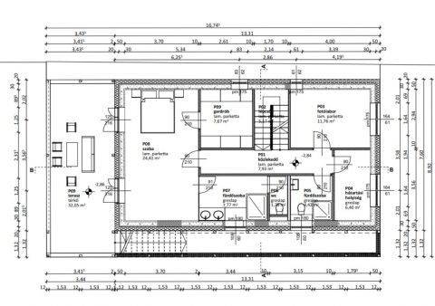
Tervezett ingatlan paraméterei: 3 x 77 nm, egy nyitott galériával, ahol ki lehet alakítani akár szobákat is. A fűtés hőszivattyúval van megtervezve.
Kivitelezési lehetőségek: Az épület modern, egyedi tervek szerint készült, amik az optimális térkihasználást és funkcionalitást célozzák meg, mégis maximálisan lehetőséget biztosítanak a személyre szabott kivitelezésre.
Kiemelt előnyök:
Csendes környék, a telek egy nyugodt, forgalommentes utcában található, ahol a mindennapi élethez szükséges kényelmet és nyugalmat biztosítja a környezet.
Közel a városhoz, a buszvégállomáshoz, boltokhoz, óvodához, mégis a természet közelében: Az ingatlan elhelyezkedése ideális azoknak, akik a város közelségét szeretnék élvezni, de értékelik a zöld környezetet és a nyugodt lakóhelyet.
Ez a kivételes ingatlan lehetőséget biztosít arra, hogy a leendő tulajdonos egy saját igényeire szabott, prémium minőségű otthont valósítson meg.

Az ingatlan felépítését is tudjuk vállalni, kulcsrakész állapotban az ára: 169 Mft.

Ne hagyja ki ezt a ritka lehetőséget és lépjen kapcsolatba velünk további információkért!
Mutass többet
Általános adatok
Víz:
Telken belül
Gáz:
Nincs
Villany:
Telken belül
Csatorna:
Utcában
Lakáshitel kalkulátor – Spórolj velünk!
Kalkulálj most, és keresd pénzügyi szakértőinket, akik ingyenes tanácsadással segítenek megtalálni a számodra legjobb megoldást!

Hasonló ingatlanok

2141 Csömör Jól megközelíthető, központi, csendes helyen

TK018624 | 1121 m²
58 000 000 Ft

2141 Csömör

TK069024 | 765 m²
52 700 000 Ft

2141 Csömör Tulipán utca

TK018350 | 860 m²
35 000 000 Ft

2141 Csömör

TK092706 | 2073 m²
24 500 000 Ft

2141 Csömör

TK032252 | 8952 m²
95 000 000 Ft

2141 Csömör Csömör telek

TK032572 | 2143 m²
20 500 000 Ft

2141 Csömör

TK081829 | 2433 m²
18 000 000 Ft

2141 Csömör Szent László utca 1

IP044614 | 3989 m²
85 000 000 Ft

2141 Csömör Külterületi szántó

TK073438 | 2066 m²
7 000 000 Ft

2141 Csömör Külterületi szántó

TK083029 | 1011 m²
4 000 000 Ft

2141 Csömör Külterületi szántó

TK088472 | 551 m²
3 000 000 Ft
Tolnai Hajnalka Krisztina
Értékesítő
Kapcsolatfelvétel
Hívom
Kapcsolatfelvétel
Kérjen egy személyes megtekintést az ingatlanra a Duna House értékesítőjétől
Válassz egy időpontot