.
Eladó Lakás 9400 Sopron , Várkerület
PR068430/LK/27059
Eladó
Lakás
Prémium
Újépítésű
54 900 000 Ft
9400 Sopron , Várkerület
2 szoba
47 m²
Tégla
Törlesztőrészlet Ft/hó
THM %
6 megtekintés az elmúlt 7 napban
Leírás
Azonnal birtokba vehető Új kialakítású lakások eladóak, Sopron történelmi belvárosában!

Az épület Sopron belvárosának emblematikus helyén, az Orsolya teret a Várkerülettel összekötő Hátsókapu utca tört vonalának belső, városmag felőli részét foglalja el. A korai historizmus klasszicizáló stílusában épült kétemeletes lakóház Hasenauer Márton tervei alapján készült, ez volt Sopron első bérháza.

Az elmúlt időszakban fejeződött be az ingatlan teljeskörű korszerűsítése a Műemlékvédelmi hivatal Útmutatásai és szoros kontrollja alatt. Födémfelújítás-Teljes belső átépítés-Nyílászárók cseréje-Gépészet teljeskörű korszerűsítése (elektromos, víz, gáz és fűtésrendszer)-Homlokzatfelújítás-Burkolatok-Szaniterek-stb... Rendelkezésre áll az épület használatbavételi engedélye és a Társasház Alapító Okirat is elkészült. A teljesen újjávarázsolt épület A és B épületrészből áll, belső udvarral rendelkezik, mely a vársétány koncepció szerves része.

A közös használatú épületrészek:
- Közlekedők (kerámia burkolattal), LED-es mozgásérzékelős világítás a lépcsőházakban és közlekedőkben.
- Hulladék- és kerékpártárolók külön helyiségekben
- Az épületgépészeti helyiség a pinceszinten kiépítve (2 db nagy teljesítményű kondenzációs gázkazán, kétkürtős SCHIEDEL kéménnyel)
- A pinceszinten különböző méretű, teljesen elszeparált és zárható privát tárolók lettek kialakítva, melyek a lakásokhoz megvásárolhatók.

Az impozáns lakóházban összesen húsz, különböző alapterületű  lakás került kialakításra, egy kettő és három szobás elrendezéssel, földszinti, első és második emeleti valamint tetőtéri lakások választhatók. Minden ingatlan kulcsrakész állapotban várja leendő tulajdonosát.

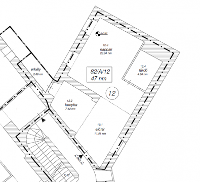
A12 lakás: A második emeleti ingatlan 47 m2 alapterületű, előtér, nappali, konyha-étkező, fürdőszoba és egy erkély kapott helyet benne. A hangulatos lakás csendes, udvari tájolású.

Az ingatlanok megfelelnek a 3%-os OTTHON Start Hitel feltételeinek! További információkért keressen bizalommal!
Mutass többet
Általános adatok
Ingatlan állapota:
6 - Új. ép.
Építés éve:
2025
Emelet:
2
Emeletek száma:
2
Lift:
Nincs Lift
Épület külső állapota:
6 - Új. ép.
Épület belső állapota:
6 - Új. ép.
Fényviszonyok:
Nincs megadva
Parkolás:
Nincs
Erkély/Terasz:
Van
Nézet:
Nincs megadva
Tájolás:
ÉNY
Fűtés:
Házközponti egyedi mérővel
Energetikai besorolás:
E
Lakáshitel kalkulátor – Spórolj velünk!
Kalkulálj most, és keresd pénzügyi szakértőinket, akik ingyenes tanácsadással segítenek megtalálni a számodra legjobb megoldást!

Hasonló ingatlanok

9400 Sopron Piac közelében

IR077272 | 62 m²
74 400 000 Ft

9400 Sopron Piac és a belváros közelében

TR072150 | 78 m²
85 000 000 Ft

9400 Sopron

LK030552 | 4 szoba | 86 m²
73 000 000 Ft

9400 Sopron Várkerület: Festő közi parkolónál, tőbbcélúvá alakítható....

LK074503 | 2 szoba | 56 m²
38 000 000 Ft

9400 Sopron Ágfalvi lakópark kedvelt részén, utca fronti üzlet eladó!

UZ018702 | 31 m²
29 500 000 Ft

9400 Sopron Ágfalvi lakópark kiemelt részén üzlet eladó!

UZ043708 | 37 m²
34 900 000 Ft

9400 Sopron Ágfalvi lakópark forgalmas részén 34 m2-es üzlet eladó!

UZ077166 | 34 m²
31 900 000 Ft

9400 Sopron Frekventált helyen, két üzlethelyiség eladó!

UZ059184 | 68 m²
62 500 000 Ft

9400 Sopron Belváros és a piac közelében

IR099241 | 45 m²
54 000 000 Ft

9400 Sopron Belváros közeli 2 szintes polgári lakás eladó

LK024020 | 4 szoba | 74 m²
44 900 000 Ft

9400 Sopron Belváros központjában 3 lakás kialakítására alkalmas padlástér eladó

LK067861 | 320 m²
9 900 000 Ft

9400 Sopron A Belvárosában, közkedvelt utcában

LK049566 | 5 szoba | 127 m²
87 000 000 Ft

9400 Sopron Deák tér közeli

LK090722 | 3 szoba | 94 m²
59 900 000 Ft

9400 Sopron kétszintes/négylakásos társasház kialakítására alkalmas épület....

UZ014888 | 199 m²
29 990 000 Ft

9400 Sopron

LK026567 | 4 szoba | 94 m²
69 600 000 Ft

9400 Sopron Ágfalvi lakópark frekventált részén, üzlethelyiség eladó!

UZ011304 | 102 m²
73 900 000 Ft

9400 Sopron Alsólőverek

LK093321 | 2 szoba | 59 m²
19 999 999 Ft

9407 Sopron Sopronkőhidán eladó földszinti 64m2-es lakás nagy kerttel.

LK025002 | 2 szoba | 64 m²
49 900 000 Ft

9400 Sopron Belváros

LK067011 | 2 szoba | 99 m²
60 500 000 Ft

9400 Sopron

LK056211 | 3 szoba | 78 m²
98 000 000 Ft
Goldschmidt Ferenc
Örökös tag értékesítő
Kapcsolatfelvétel
Hívom
Kapcsolatfelvétel
Kérjen egy személyes megtekintést az ingatlanra a Duna House értékesítőjétől
Válassz egy időpontot