.
PR020094/HZ/29459
Eladó
Családi ház
Újépítésű
94 900 000 Ft
8900 Zalaegerszeg , Zalagyöngye lakópark
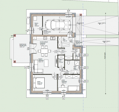
3 szoba
104 m²
600 m² telek
Törlesztőrészlet Ft/hó
THM %
0 megtekintés az elmúlt 7 napban
Leírás
ZALAGYÖNGYE LAKÓPARK: 8 külön álló családi házas projekt!

Erdő, patak, madárcsicsergés mégis pár percre Zalaegerszeg belvárosától az egyik legkedveltebb, dinamikusan fejlődő városrészében, Nekeresden valósul meg ahol a természet közelsége és a modern, energiatakarékos otthon kényelme találkozik. Egy lakópark, amelyet hosszú távra terveztek

A ZALAGYÖNGYE Lakóparkban épülő ingatlan nem csupán egy új építésű ház hanem egy hosszú távú, biztonságos otthon a család számára.

A Lakóparkban két fajta és méretű ingatlanok kerülnek kivitelezésre:

1., "KŐRIS HÁZ" : 
- 130 m2 alapterület
- nappali + 3 szoba
- garázs
- autóbeálló
- kb.700 m2 telek

2., " JUHAR HÁZ" : 
- 110 m2 alapterület
- nappali + 2 szoba
- garázs
- autóbeálló
- kb. 600 m2 telek

Természetközeli élet
Nyugodt, zöld környezet Nekeresden, ahol a természet közelsége és a városi élet kényelme találkozik.

Energiahatékonyság
Modern hőszivattyús fűtési rendszer és korszerű szigetelés biztosítja az alacsony fenntartási költséget.

Kulcsrakész otthon
Teljesen elkészült, költözhető állapotban átadott házak, amelyeknél már csak a beköltözés élménye vár Önre.

Jövőálló családi otthonok:
Olyan családi házakat hozunk létre, amelyek a természet közelségét ötvözik a modern építészeti megoldásokkal, biztosítva a kényelmes és fenntartható mindennapi életet.

Minőség kompromisszumok nélkül:
Célunk, hogy energiahatékony, kulcsrakész otthonokat adjunk át átlátható műszaki tartalommal, megbízható kivitelezéssel és hosszú távon értékálló megoldásokkal.

Műszaki leírás:
-A homlokzati falak Porotherm 30 N+F neo Rapid Dryfix téglából készülnek, melyre 20 cm vastagságban XPS hőszigetelés kerül!
-A nyílászárók műanyag szerkezetűek, külső felületük a fa szerkezet színével megegyező barna fóliázással készül, 3 rétegű hőszigetelő üvegezéssel.
-A redőnyök a homlokzatképzésbe süllyesztve kerülnek beépítésre szúnyoghálóval.
-A tetőlefedésre Bramac Tectura Novo antracit tetőcserép kerül.
-A lakóépületekben Bosch hőszivattyú kerül beépítésre, mely padlófűtést és melegvízet üzemeltet.
-A fürdőszobai szerelvények Ravak és Grohe termékcsaládból szabadon választhatók.
-A hideg és meleg burkolatok igény szerint 5.000-10.000 Ft értékben állnak rendelkezésre!

Az épületek kulcsrakész állapotban kerülnek átadásra, melyek tartalmazzák a házhoz vezető járda és kocsibejáró térkövezését!

A tervezés során a mindennapi komfort és az élhető terek állnak a középpontban.


Miért a ZALAGYÖNGYE ? :

-Átgondolt tervezés, megbízható kivitelezés és emberközpontú szemlélet biztosítja, hogy új otthona valódi biztonságot és kényelmet nyújtson.
-Megbízható fejlesztői háttér
-Tapasztalt szakemberek és átlátható folyamatok garantálják a minőségi megvalósítást.
-Minőség minden részletben
-Gondosan kiválasztott alapanyagok és precíz kivitelezés a hosszú távú értékért.
-Otthonközpontú szemlélet


Várható átadás: 2026. november 30.



Mutass többet
Általános adatok
Építés éve:
2026
Belső szintek száma:
Nincs megadva
Épület külső állapota:
6 - Új. ép.
Épület belső állapota:
6 - Új. ép.
Fényviszonyok:
Nincs megadva
Nézet:
Nincs megadva
Fűtés:
Padlófűtés,Hőszivattyú
Szerkezet:
Tégla
Energetikai besorolás:
A
Víz:
Ingatlanban
Gáz:
Nincs
Villany:
Ingatlanban
Csatorna:
Ingatlanban
Lakáshitel kalkulátor – Spórolj velünk!
Kalkulálj most, és keresd pénzügyi szakértőinket, akik ingyenes tanácsadással segítenek megtalálni a számodra legjobb megoldást!

Hasonló ingatlanok

8900 Zalaegerszeg Zalaegerszeg, belváros közeli családi házas övezet

HZ087383 | 3 szoba | 196 m²
160 000 000 Ft

8900 Zalaegerszeg Zalaegerszeg-Andráshidán Üzleti / Lakóingatlan Eladó

HZ045941 | 2 szoba | 78 m²
59 000 000 Ft

8900 Zalaegerszeg

HZ052579 | 2 szoba | 62 m²
23 000 000 Ft

8900 Zalaegerszeg

ME099355 | 2 szoba | 72 m²
12 900 000 Ft

8900 Zalaegerszeg

HZ031295 | 2 szoba | 18 m²
12 000 000 Ft

8900 Zalaegerszeg Csács

HZ054991 | 4 szoba | 163 m²
114 000 000 Ft

8900 Zalaegerszeg CSALÁDI HÁZAS, CSENDES ÖVEZET

HZ025914 | 3 szoba | 90 m²
95 000 000 Ft

8900 Zalaegerszeg

HZ064509 | 1 szoba | 80 m²
80 000 000 Ft

8900 Zalaegerszeg

HZ091343 | 1 szoba | 63 m²
12 000 000 Ft

8900 Zalaegerszeg

HZ047892 | 2 szoba | 68 m²
25 000 000 Ft

8900 Zalaegerszeg Becsaliban panorámás kilátással

HZ080692 | 5 szoba | 299 m²
159 900 000 Ft

8900 Zalaegerszeg

HZ057156 | 5 szoba | 310 m²
135 000 000 Ft

8900 Zalaegerszeg

TK075663 | 14000 m²
9 900 000 Ft

8900 Zalaegerszeg Bozsok

HZ084951 | 2 szoba | 79 m²
21 900 000 Ft

Új építésű családi házak Zala Vármegyében

PR028377/HZ/23548 | 4 szoba | 122 m²
79 319 500 Ft

Új építésű családi házak Zala Vármegyében

PR028377/HZ/23428 | 5 szoba | 129 m²
77 358 000 Ft

Új építésű családi házak Zala Vármegyében

PR028377/HZ/23438 | 4 szoba | 103 m²
61 560 000 Ft

8900 Zalaegerszeg Lakóparki ingatlan eladó

HZ068807 | 4 szoba | 100 m²
59 900 000 Ft

8900 Zalaegerszeg Eladó családi ház Zalaegerszeg Csácsihegyen

HZ099036 | 5 szoba | 300 m²
99 000 000 Ft

8900 Zalaegerszeg Duna House, Kossuth Lajos utcai iroda

HZ029331 | 2 szoba | 86 m²
57 999 000 Ft
Kontler Patrícia
Örökös tag értékesítő
Kapcsolatfelvétel
Hívom
Kapcsolatfelvétel
Kérjen egy személyes megtekintést az ingatlanra a Duna House értékesítőjétől
Válassz egy időpontot