.
Eladó Ház 8624 Balatonszárszó
NY012882
Eladó
Családi ház
Prémium
390 000 000 Ft
8624 Balatonszárszó
5 szoba
178 m²
814 m² telek
Törlesztőrészlet Ft/hó
THM %
4 megtekintés az elmúlt 7 napban
Leírás
A Balaton közvetlen közelében, mindössze 50 méterre a parttól, szabad strandtól, eladó egy modern megjelenésű, minimál stílusú nyaraló.

Az épület függőleges teherhordó rendszere SAN-Team rendszerű könnyűszerkezetes technológiával készült. A könnyűszerkezetes acélvázas falépítési rendszer lényege az 1 mm-s horganyzott acéllemezekből hidegen hengerelt U (150X50X1) és C (150X50X1) profilú pillérváz, amelyet építőlemezzel burkolnak. A falvázak jellemző 62 cm távolsága, a falpaneleket csavarozással rögzítik egymáshoz. A falpanelokat a fogadószinthez dübellel rögzítik. A földszint feletti közbenső födém fagerendás szerkezetű. Az épület lépcsője könnyűszerkezetes szerkezetű.

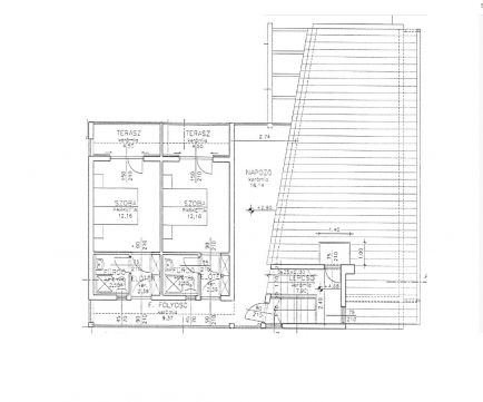
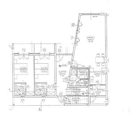
Az épületben közös használatos terek (előtér, konyha, étkező, nappali) 4 szeparált hálószoba (mindegyik külön fürdőszobával, gardróbbal), szauna - zuhanyzó (belső megközelítési lehetőséggel, szerszámkamra és élelmiszer kamra, és toronyszoba erkéllyel kerültek kialakításra.

Az épület akár egész évben használható. A gáz cirkó fűtéshez szükséges gázt, egy telepített konténeres gáztároló biztosítja.

A nyaraló világos, nagy üvegfelületekkel rendelkezik, így egész nap természetes fényben fürdik. A földszinten a kertből közvetlen rálátás van a Balatonra. A teraszról vagy az emeleti szobákból, erkélyekről páratlan balatoni panorámában gyönyörködhetünk.

A Balaton közelsége miatt kiváló lehetőség nyaralónak, de értékálló befektetésként is remek választás.
Balatonszárszó ideális célpont azoknak, akik pihenésre, kulturális élményekre vagy természet közeli kikapcsolódásra vágynak.
Mutass többet
Általános adatok
Építés éve:
2000
Belső szintek száma:
Nincs megadva
Épület külső állapota:
4 - Jó
Épület belső állapota:
4 - Jó
Fényviszonyok:
Nincs megadva
Nézet:
Panoráma
Fűtés:
Gáz cirkó
Szerkezet:
Könnyűszerkezetes
Energetikai besorolás:
Nincs megadva
Víz:
Telken belül
Gáz:
Telken belül
Villany:
Telken belül
Csatorna:
Telken belül
Lakáshitel kalkulátor – Spórolj velünk!
Kalkulálj most, és keresd pénzügyi szakértőinket, akik ingyenes tanácsadással segítenek megtalálni a számodra legjobb megoldást!

Hasonló ingatlanok

8624 Balatonszárszó Petőfi Sándor utca

HZ021016 | 3 szoba | 60 m²
64 900 000 Ft

8624 Balatonszárszó a tökéletes, vízparti balatoni nyaraló

HZ061768 | 4 szoba | 65 m²
69 900 000 Ft

8624 Balatonszárszó Balatonszárszó

HZ073704 | 7 szoba | 330 m²
220 000 000 Ft

8624 Balatonszárszó Szárszó és Földvár határán

HZ044376 | 3 szoba | 89 m²
44 700 000 Ft

8624 Balatonszárszó Balatontól 400 méterre Újépítésű ikerház Eladó!!

HZ070151 | 5 szoba | 170 m²
139 900 000 Ft

8624 Balatonszárszó Újépítésű Ikerház eladó Balatonszárszón 400 métertől a parttól

HZ063374 | 5 szoba | 167 m²
159 900 000 Ft

8624 Balatonszárszó Balatonon a parttól 400 méterre Újépítésű Ikerház Eladó.

HZ051510 | 5 szoba | 167 m²
169 900 000 Ft

8624 Balatonszárszó Balatontól 400 méterre Újépítésű ikerház Eladó!!

HZ061484 | 5 szoba | 167 m²
159 900 000 Ft

8624 Balatonszárszó Balaton közeli kétgenerációs ház

HZ030358 | 9 szoba | 240 m²
185 000 000 Ft

8624 Balatonszárszó Többgyermekes családnak tökéletes választás!

HZ085269 | 5 szoba | 178 m²
123 000 000 Ft

8624 Balatonszárszó Szárszón vendéglátóhely

HZ466179 | 9 szoba | 592 m²
350 000 000 Ft

8624 Balatonszárszó Jól menő vállalkozás színvonalas étteremmel és apartmanokkal Balatonszárszó központjában!

VL037165 | 6 szoba | 600 m²
295 000 000 Ft

8624 Balatonszárszó

IH089243 | 0 m²
59 455 000 Ft

8624 Balatonszárszó Csendes, családias környezetben lakás eladó

HZ099034 | 3 szoba | 80 m²
39 800 000 Ft

8624 Balatonszárszó UNIKÁLIS APARTMANHÁZ

HZ027591 | 10 szoba | 297 m²
327 000 000 Ft

8624 Balatonszárszó

HZ086018 | 12 szoba | 275 m²
125 000 000 Ft

8624 Balatonszárszó Vízpart közeli kompakt nyaraló

HZ067256 | 7 szoba | 161 m²
109 900 000 Ft

8624 Balatonszárszó Szárszó és Földvár határában

HZ071416 | 3 szoba | 56 m²
95 000 000 Ft

8624 Balatonszárszó festői környezet, hangulatos családi ház

HZ092677 | 6 szoba | 200 m²
98 000 000 Ft

8624 Balatonszárszó

H503136 | 4 szoba | 85 m²
58 000 000 Ft
Lázár Lénárd Fonyód
Platina fokozatú franchise partner
Kapcsolatfelvétel
Hívom
Kapcsolatfelvétel
Kérjen egy személyes megtekintést az ingatlanra a Duna House értékesítőjétől
Válassz egy időpontot